
🔥 Would you like to save this?
Specifications
- Sq. Ft.: 1,801
- Bedrooms: 3
- Bathrooms: 2
Floor Plan

In order to come up with the very specific design ideas, we create most designs with the assistance of state-of-the-art AI interior design software. Also, assume links that take you off the site are affiliate links such as links to Amazon. this means we may earn a commission if you buy something.
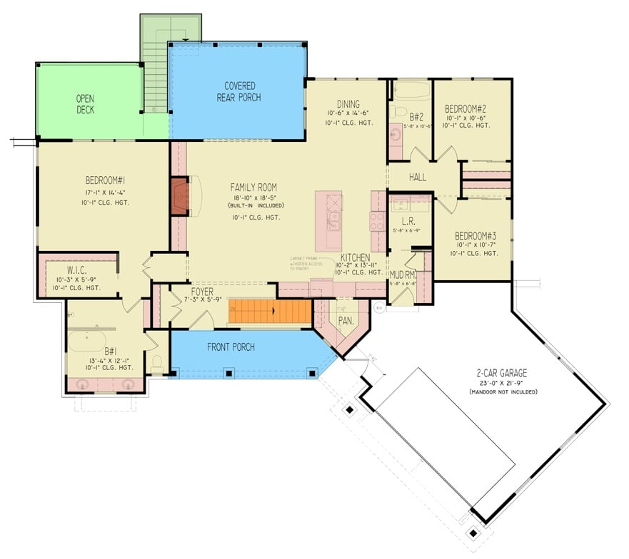
The single-story layout centers on an open family room connected to the kitchen and dining area. Bedroom #1 sits privately on the left wing with a walk-in closet and full bath. Bedrooms #2 and #3 share a hall on the right. A covered rear porch, open deck, front porch, and angled 2-car garage complete the plan.
Floor Plan

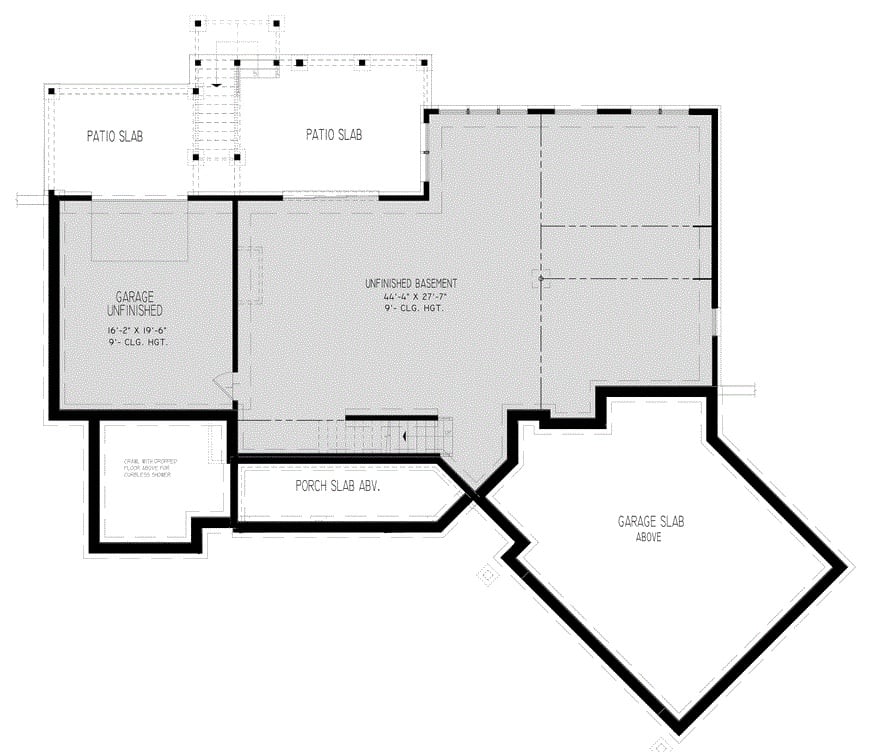
The basement level reveals unfinished space, garage, patio slabs, and a porch area with staircase access above.
Try This: Converting an unfinished basement later costs less when you rough in plumbing during initial construction. Ask your contractor to add a bathroom rough-in near the stair wall before pouring the slab. That small upfront investment saves significant money if you finish the space down the road.
Dark Siding Meets Warm Wood on a Modern Two-Story Rear Exterior
Charcoal shingle siding contrasts with natural wood porch columns and stair railings. A covered upper deck overlooks an in-ground pool framed by ornamental grasses and boulders.
Material Matters: Dark fiber cement or engineered wood siding absorbs more heat than light colors, making it a smart pairing with south-facing orientations in cooler climates. Warm-toned cedar or pine accents on columns and railings balance that visual weight without adding bulk. Both materials age differently, so sealing wood elements annually prevents color mismatch over time.
Slatted Wood Walls and Open Shelving Define a Collected Living Room

Vertical wood slat panels anchor built-in shelves lined with sculptural objects and small plants. A white fireplace surround with a wood mantel sits below a wall-mounted TV. Cream upholstered seating, black-framed accent chairs, and a copper side table pull the room together over light hardwood floors.
Worth Knowing: Slatted wood wall panels are typically installed over a standard drywall surface, making them a project that doesn’t require structural changes. Many versions come in pre-finished MDF or real wood veneer strips that click or nail into place. This approach delivers visual warmth without committing to a full wood feature wall that’s difficult to reverse.
Warm Wood Tones and Quartz Countertops Ground a Modern Kitchen Island

Four upholstered stools line a waterfall-edge island; greige flat-front cabinetry, pendant lights, and a stainless refrigerator complete the space.
Under-Cabinet Lighting as a Design and Function Tool
Warm LED strip lighting runs beneath the upper cabinets here, washing the backsplash tile in a soft glow that makes the stone pattern readable at night. Unlike recessed ceiling lights, under-cabinet strips eliminate shadows directly on the work surface, which matters most during food prep. Many homeowners add this lighting on a separate dimmer switch so the kitchen can shift from bright and task-focused to ambient without changing any overhead fixtures.
Pendant Lights and Fluted Columns Anchor a Modern Dining Room

Two black industrial pendants hang low over a fluted-base dining table surrounded by boucle and tan chairs. Narrow wood slat panels line the back wall behind a dark sideboard. Abstract geometric art adds contrast. Floor-to-ceiling windows flood the space with natural light, while potted plants reinforce the warm, organic palette.
Why It Works: Dining chairs with metal legs and upholstered seats offer a practical middle ground between comfort and easy cleaning. Boucle fabric is durable enough for daily use but benefits from a fabric protector spray applied twice yearly. Pairing two pendant lights instead of one creates balanced illumination without a chandelier footprint.
Slat Wall Backdrop and Layered Neutrals Shape a Primary Bedroom Suite

Warm walnut slat panels cover the accent wall behind an upholstered bed dressed in white bedding with brown bolster pillows. Light oak flooring anchors the space. A vintage-style area rug, a bouclé bench, and an accent chair with dark metal legs complete the sitting area near floor-to-ceiling windows.
Light oak flooring anchors the space while floor-to-ceiling windows pull natural light deep into the room.
Globe Pendants and Vessel Sinks Bring Character to a Double Vanity Bathroom

Oval vessel sinks sit on a white quartz countertop above a floating wood vanity. Gray large-format tile covers the walls and floor. Gold-framed mirrors reflect natural light from casement windows. A freestanding soaking tub anchors the far corner.
Smoked Glass Doors and Open Shelving Shape a Luxury Walk-In Closet

Bronze-tinted glass cabinet doors, dark wood shelving, and designer handbags on display define this corridor-style walk-in closet with recessed lighting.
Pin It

Exterior rendering shows a single-story modern home with dark siding, wood accents, and a circular driveway leading to an angled two-car garage. Below, the floor plan reveals three bedrooms, a central family room, covered front and rear porches, an open deck, mudroom, and kitchen with pantry access — all on one level.
