
🔥 Would you like to save this?
Specifications
- Sq. Ft.: 3,929
- Bedrooms: 3
- Bathrooms: 2.5
Floor Plan

In order to come up with the very specific design ideas, we create most designs with the assistance of state-of-the-art AI interior design software. Also, assume links that take you off the site are affiliate links such as links to Amazon. this means we may earn a commission if you buy something.
The main floor opens from a foyer into a living room, dining area, and kitchen with an island. A master suite sits to the left with a walk-in closet and full bath. A study, half bath, laundry room, and two-car garage round out the layout.
Floor Plan

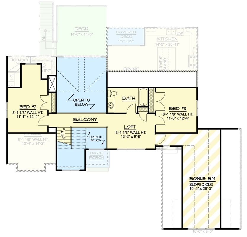
Upper level shows two bedrooms, a loft, a bath, a balcony, a bonus room, and an open-to-below stairwell.
Floor Plan
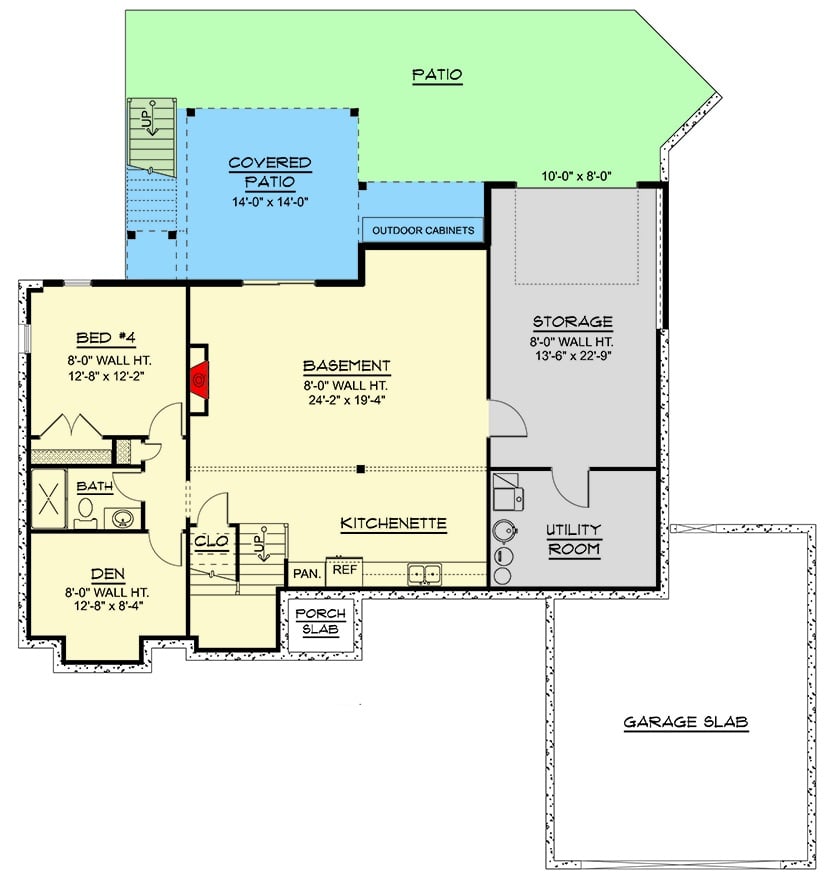
The basement level includes a large open basement area, a kitchenette, Bed #4, a den, a bath, storage, and a utility room. A covered patio and expansive open patio connect to the upper outdoor space, with a garage slab at the lower right.
Black Trim and White Board-and-Batten Define This Modern Farmhouse Rear Elevation

Bold black window trim contrasts with white vertical siding across three levels. A wood-and-metal staircase leads to an upper deck, while a glass garage door opens the walkout basement below.
Did You Know: Board-and-batten siding, originally a 19th-century barn construction technique, became a signature element of modern farmhouse architecture in residential design. Pairing it with black trim creates high contrast that reads sharply in both daylight and low-light conditions. Stone chimneys like the one visible here are often built with regionally quarried material to tie the home to its site.
Vaulted Ceilings and Brick Fireplace Anchor This Sun-Filled Great Room

Warm white sofas surround a round marble coffee table on a woven rug. Gray brick climbs floor to ceiling beside a wood-burning fireplace. An arched transom window floods the space with natural light. Gold pendant fixtures and walnut built-ins add contrast against crisp walls.
Material Matters: Brick used on interior fireplace surrounds is typically a different grade than exterior masonry, selected for heat tolerance rather than weather resistance. Tumbled or hand-molded brick, like the gray variety seen here, introduces texture that smooth contemporary materials cannot replicate. Pairing it with warm wood cabinetry keeps the look grounded rather than industrial.
Marble Countertops and Dark Wood Cabinetry Set the Tone in This Kitchen

Four barrel-back barstools line a waterfall island topped with veined marble. Upper cabinets feature glass fronts and brass pulls against white paint. Dark wood lower cabinetry anchors the space, while a curved range hood draws the eye toward the gas cooktop and marble backsplash.
Why Waterfall Edges Work in Kitchen Design
Waterfall countertops extend the surface material vertically down the sides of an island, creating a continuous slab effect that highlights stone veining. Marble and quartz are common choices because their pattern can be mitered at the corner to maintain visual flow. Beyond aesthetics, the waterfall edge protects the cabinet sides from moisture and daily wear.
Dining Area Pairs Gold Chair Frames with a Round White Table Under a Halo Pendant

Cream upholstered chairs with gold metal legs surround a round white pedestal table. Champagne flutes and plates dress the setting. A ribbed circular pendant hangs overhead. Light hardwood flooring and a black-and-white geometric rug anchor the space. Large sliding glass doors flood the open-plan dining area with natural light.
- Round pedestal tables eliminate corner seating awkwardness, making them practical for four to six diners
- Halo-style ring pendants work best when hung 30 to 34 inches above the tabletop
- Gold metal chair frames resist corrosion better than brass-plated alternatives, maintaining finish longer in high-humidity interiors
Contrast Wall and Rattan Lamp Give This Primary Bedroom Real Character

One charcoal accent wall anchors the bed without overwhelming the space. White linens and a light wood floor keep things airy. A rattan lamp on a white nightstand adds texture. Sheer curtains frame a black-trimmed window overlooking a green yard.
Budget Tip: Painting a single accent wall rather than all four cuts your paint cost significantly and uses roughly 25 percent of the material. Choosing a deep neutral like charcoal also means fewer coats than saturated colors, saving both time and labor.
Gold Fixtures and Navy Walls Make This Double Vanity Hard to Ignore

Oval mirrors with brass frames hang above rectangular undermount sinks on a marble countertop. Dark wood cabinetry with gold pulls grounds the vanity, while frosted glass panels enclose the shower beyond.
Designer’s Secret: Marble countertops perform best when sealed every six to twelve months, depending on use. Without sealing, the stone absorbs moisture and soaps that cause staining over time. A simple water bead test tells you when resealing is due.
Circular Chandelier and Brick Fireplace Pull This Open Living Space Together

Rope-wrapped Edison bulbs on a wagon wheel chandelier set the entire mood before you even sit down.
Sectional seating in ivory anchors the living area. Dark wood cabinetry lines the kitchen behind it. Light hardwood floors run through both zones. A brick surround frames the fireplace, while open stairs lead to the floor above.
Pin It

Exterior rendering shows a modern farmhouse facade above a main-floor plan featuring open living spaces, master suite, study, and two-car garage.
Quick Fix: Placing the laundry room adjacent to the garage entry cuts down on tracking dirt through the house after outdoor work. Positioning it near the half bath also lets you run a single plumbing wall for both spaces, reducing pipe runs and labor costs during construction.
