
Would you like to save this?
Specifications
- Sq. Ft.: 2,280
- Bedrooms: 3
- Bathrooms: 3.5
- Stories: 1
- Garage: 3
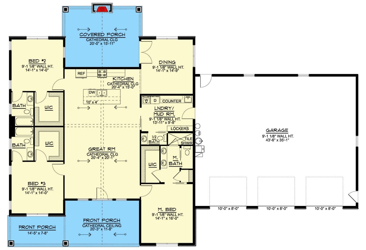
The Floor Plan

Front-Right View

๐ฅ Create Your Own Magical Home and Room Makeover
Upload a photo and generate before & after designs instantly.
ZERO designs skills needed. 61,700 happy users!
๐ Try the AI design tool here
Rear-Right View

Rear-Left View

Front-Left View

Front Entry

Would you like to save this?
Great Room

Great Room

Great Room and Kitchen

Kitchen

Kitchen

Dining Area

Bedroom

Bedroom

๐ฅ Create Your Own Magical Home and Room Makeover
Upload a photo and generate before & after designs instantly.
ZERO designs skills needed. 61,700 happy users!
๐ Try the AI design tool here
Bathroom

Bathroom

Bedroom

Bedroom

Bathroom

Would you like to save this?
Laundry Room

Mudroom

Details
This modern ranch features a long, low profile with clean siding lines, dark roofing, and a bold front porch framed by heavy timber-style trusses. Large glass garage doors and simple window placement give the exterior a crisp, contemporary feel without losing the warmth of a classic single-level layout.
Inside, the plan is centered around a spacious great room with a cathedral ceiling that connects directly to the kitchen and dining spaces. The kitchen includes an island and keeps the main gathering area open for easy conversation, serving, and daily use. A covered rear porch is positioned just off the main living area, creating a natural extension for outdoor dining and downtime.
The bedrooms are arranged in a split layout that supports privacy and flexibility. Two secondary bedrooms sit together, and each includes a walk-in closet and direct access to a full bath, giving these rooms a suite-like setup that works well for guests, kids, or shared living. The primary bedroom is located on the opposite side of the home and includes a private bath with a tile shower and a walk-in closet.
The home also includes a dedicated laundry and mudroom zone with built-in storage and a counter workspace, helping keep household routines organized. A nearby half bath adds everyday convenience, especially when coming in from the garage. The oversized garage provides ample room for multiple vehicles, gear, and storage, making it a strong fit for homeowners who want extra space for hobbies or equipment.
Pin It!

Architectural Designs Plan 135408GRA
