
🔥 Would you like to save this?
Specifications
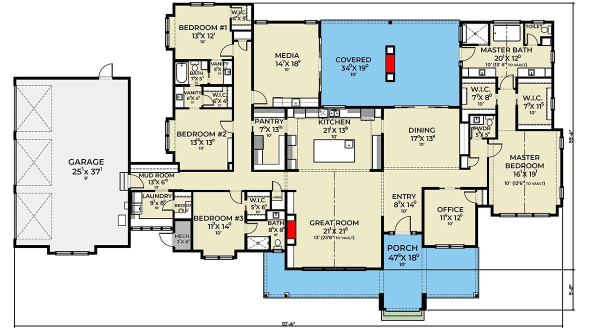
- Sq. Ft.: 3,982
- Bedrooms: 3-4
- Bathrooms: 3.5
Floor Plan

In order to come up with the very specific design ideas, we create most designs with the assistance of state-of-the-art AI interior design software. Also, assume links that take you off the site are affiliate links such as links to Amazon. this means we may earn a commission if you buy something.
This single-story layout features a master suite with dual walk-in closets on the right, three additional bedrooms on the left, and central living spaces. A covered patio and porch extend outdoor living areas, while the three-car garage offers generous storage.
Vaulted Living Room with Mountain Views and Gray Brick Fireplace

Vaulted ceilings draw the eye upward to transom windows that flood the space with natural light. A gray brick fireplace anchors the room beside built-in shelving and a wall-mounted television. Large sliding doors frame panoramic views of green fields and distant mountains. The beige sectional sits atop light wood flooring, complemented by sage green drapery panels.
Pro Tip: When installing a fireplace on a two-story wall, extend the hearth materials past the mantel height to create visual weight. This prevents the fireplace from looking undersized in a tall space and helps anchor the room’s focal point.
Open Concept Living Space with Wood Beam Portal and Kitchen Views
A white sectional sofa anchors the living area, facing a rustic coffee table styled with greenery and navy accents. The dark wood beam frames the kitchen beyond, where white upper cabinets pair with natural wood lowers. Black pendant lights hang above the island. A wood plank ceiling adds warmth to the recessed kitchen zone.
White and Natural Wood Kitchen with Coffee Bar and Dark Wood Ceiling

White upper cabinets contrast with natural wood lower cabinets and island. Dark stained wood ceiling adds warmth above. Coffee station features espresso machine and open shelving with subway tile backsplash.
Comfortable Sectional Sofa Facing Gray Brick Fireplace and Wood Beam Kitchen

Cream sectional anchors living room with brick fireplace, built-in shelves, and kitchen beyond featuring wood beams overhead.
Pin It

Modern farmhouse exterior showcases vertical board and batten siding with mixed stone accents beneath towering evergreens. Below, the floor plan reveals four bedrooms, office, media room, and covered outdoor spaces across an expansive single-story layout.
🔥 Would you like to save this?
Two-Story 4-Bedroom Budget Friendly Modern Farmhouse with Bonus Room (Floor Plan)
Sq. Ft.: 2,077 | Bedrooms: 3-4 | Bathrooms: 2.5-3.5
Discover This Spacious 4,127 Sq. Ft. 4 Bedroom Home – Designed for Sloped and Corner Lots (Floor Plan Inside)
Sq. Ft.: 4,127 | Bedrooms: 4 | Bathrooms: 4.5
Step Inside This Captivating 4-Bedroom Modern Barn-Style Home With Rustic Charm (Explore This 2,900+ Sq. Ft. Floor Plan)
Sq. Ft.: 2,904 Bedrooms: 4 Bathrooms: 3
Modern Style Single-Story 4-Bedroom Home with Double Garage and Open Living Area (Floor Plan)
Sq. Ft.: 2,757 Bedrooms: 4 Bathrooms: 3.5
Discover the Striking Beauty of This 4-Bedroom Contemporary Gem with a Bold Roofline and Upstairs Wraparound Deck (Explore This 2,006 Sq. Ft. Floor Plan)
Sq. Ft.: 2,006 | Bedrooms: 3-4 | Bathrooms: 2.5

