
🔥 Would you like to save this?
Specifications
- Sq. Ft.: 1,444
- Bedrooms: 1-3
- Bathrooms: 1-2
Floor Plan: The Primary Suite Tucks Into Its Own Wing With a Walk-In Closet

In order to come up with the very specific design ideas, we create most designs with the assistance of state-of-the-art AI interior design software. Also, assume links that take you off the site are affiliate links such as links to Amazon. this means we may earn a commission if you buy something.
The primary bedroom occupies the left front corner of the home, separated from common areas by a private bathroom and generous walk-in closet. This layout creates a quiet retreat while keeping the laundry room steps away. The kitchen anchors the center, flowing into both the dining room and living room. A covered terrace extends the living space outdoors. The mudroom and pantry flank the staircase, creating an efficient drop zone. A stoop at the rear provides a second entry point.
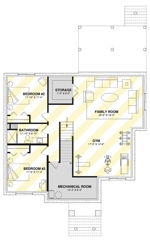
Basement Floor Plan: Three Bedrooms Downstairs Give Kids Space to Spread Out Away From Adults

Bedrooms 2 and 3 anchor opposite corners of this lower level, separated by a full bathroom and central staircase. A family room spans 20 feet wide, offering room for sectionals and media storage. A gym fits workout equipment without crowding the hallway. Storage and mechanical rooms flank the rear, keeping utilities accessible but out of sight.
Basement Floor Plan: A Staircase Anchors the Center So Every Room Radiates Outward
Central stairs create a natural hub that organizes the entire level. A bathroom sits near the base of the steps for easy access. Open space wraps around the stairwell, offering flexibility for recreation, storage, or future buildout. Two small utility areas flank the lower corners. This layout keeps circulation tight while maximizing usable square footage around the perimeter.
The Psychology Behind This: Centering the stairs prevents long hallways and dead-end corridors. It also means you never have to walk through one room to reach another, which keeps noise and foot traffic from disrupting activities. That radial flow makes unfinished basements feel more deliberate and less like leftover space.
Vaulted Wood Plank Ceilings Give This Open Floor Plan a Defined Center

Wood plank ceiling treatment over the living area creates visual separation without walls. White shiplap walls contrast with black-framed windows and doors. A linear fireplace anchors the seating zone beneath a flat-screen TV.
Pendant Lights Over the Island Define the Kitchen Without Walling It Off

Glass cylinder pendants hang over a white island with black lower cabinets, marking kitchen territory in an open floor plan. Light wood dining chairs and a live-edge table extend the dining zone. Vaulted wood planks angle across the ceiling above. Stainless appliances and white upper cabinets line the back wall. Recessed lights balance the task lighting from the pendants.
Light Wood Cabinets and Black Window Frames Anchor a Neutral Kitchen Built for Families

Light oak cabinetry wraps three walls and pairs with white quartz counters that extend into a seating island for six. Black-framed windows above the sink match pendant lights hung at varied heights. Stainless appliances and a marble backsplash keep finishes practical. Open shelving breaks up upper cabinets near the range.
Sage Green Cabinets and Wood Counters Turn a Laundry Room Into Usable Space

Sage green upper and lower cabinets frame two front-loading washers beneath a continuous wood countertop. White vertical paneling behind the machines keeps the backsplash simple. A black wall-mounted sconce and faucet add contrast. A woven basket sits on the counter for sorting, and a vase with greenery softens the utility-focused layout.
Frameless Glass and Black Hardware Carve Out a Shower That Feels Open Yet Defined

Frameless glass panels with matte black fixtures create a shower enclosure that separates wet from dry without closing off the space. Neutral stone surrounds the walls while white floor tile extends throughout. A freestanding tub anchors the corner near windows dressed in woven shades. Open shelving in natural wood holds linens and baskets.
Pin It

A contemporary split-level home pairs dark vertical siding with cream brick and black-trimmed windows at twilight. Below, the main floor plan reveals a bedroom suite tucked left of the foyer, while the kitchen, dining room, and living spaces open to a covered terrace. A pantry buffers the bedroom wing from cooking noise.
Why It Works: Split-level designs like this one solve the problem of sloped lots by stacking living space vertically instead of sprawling outward. You get more square footage without eating up yard space, and the basement level gets natural light from windows that sit above grade.
