
🔥 Would you like to save this?
Specifications
- Sq. Ft.: 4,576
- Bedrooms: 4
- Bathrooms: 4.5
- Stories: 1
- Garage: 3
[su_spacer]
In order to come up with the very specific design ideas, we create most designs with the assistance of state-of-the-art AI interior design software. Also, assume links that take you off the site are affiliate links such as links to Amazon. this means we may earn a commission if you buy something.
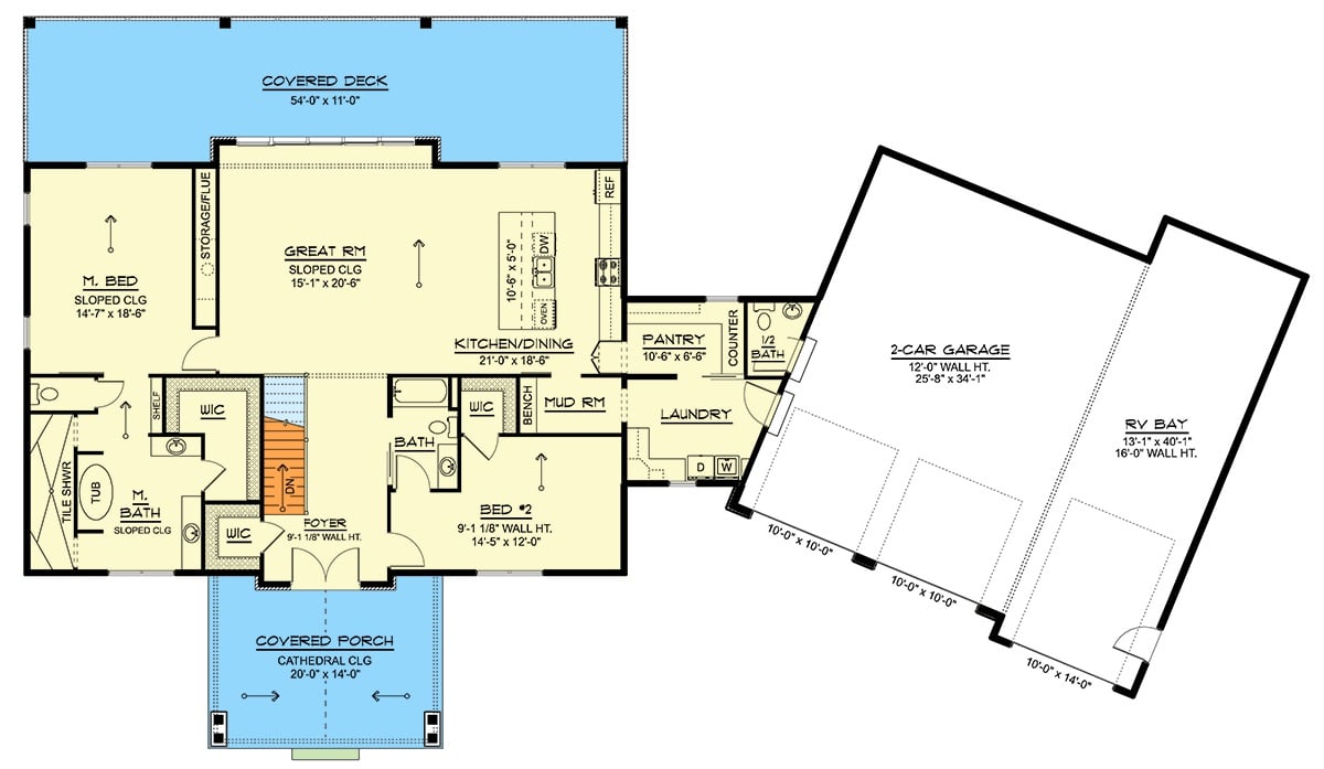
Main Level Floor Plan

Second Level Floor Plan

[su_spacer]
Front View
Front-Left View

Rear View

Rear-Right View

Front View

Great Room

Dining Area and Kitchen

Kitchen

Primary Bedroom

Primary Bathroom

Primary Bathroom

[su_spacer]
Details
This modern mountain home features a clean, contemporary form defined by crisp lines, dark exterior finishes, and a wide roofline that creates covered outdoor spaces on both levels. Large window groupings and exposed structural elements give the home a modern, grounded presence while keeping the overall design straightforward and functional.
Inside, the main level is centered around an open great room that connects directly to the kitchen and dining area, creating a clear, efficient flow for everyday living. The kitchen is laid out for practicality with a spacious pantry and direct sightlines into the main living space, while wide openings lead to a covered deck that extends the usable living area.
The primary bedroom is located on the main level and includes a dedicated bath and walk-in closet, offering convenience and privacy. A second bedroom and full bath on this level provide flexibility for guests or shared living. The mudroom, laundry, and garage access are grouped together to keep daily routines organized and contained.
The lower level adds a spacious family room suited for casual gathering, recreation, or media use. Two additional bedrooms and a shared bathroom are positioned on this level, creating a comfortable and functional layout for family or guests. Storage and mechanical spaces are tucked out of the way, and access to a covered patio helps keep the lower level connected to the rest of the home.
Pin It!
Architectural Designs Plan 135406GRA
🔥 Would you like to save this?
4-Bedroom Two-Story Mountain Farmhouse with Bonus Room Above the 3-Car Garage (Floor Plan)
Sq. Ft.: 2,113 | Bedrooms: 3-4 | Bathrooms: 2.5
Experience a 4,616 Sq. Ft. 4 Bedroom Home Perfectly Designed for Family Living – Floor Plan Included
Sq. Ft.: 4,616 | Bedrooms: 4 | Bathrooms: 3.5
Get Inspired by This 2,950 Sq. Ft. Home with 4 Bedrooms and a Floor Plan You’ll Love
Sq. Ft.: 2,950 Bedrooms: 2-4 Bathrooms: 2.5-5.5
Introducing a 2,784 Sq. Ft. 4 Bedroom Home Blending Style & Functionality – Get Inspired by the Floor Plan
Sq. Ft.: 2,784 | Bedrooms: 4 | Bathrooms: 4
Tour this Handsome 4-Bedroom Contemporary Home, aka “The Gleneden Home” (3,026 Sq. Ft. Floor Plan)
Sq. Ft.: 3,026 | Bedrooms: 4 | Bathrooms: 3.5
