
Would you like to save this?
Specifications
- Sq. Ft.: 2,460
- Bedrooms: 4-5
- Bathrooms: 3
- Stories: 2
- Garage: 3
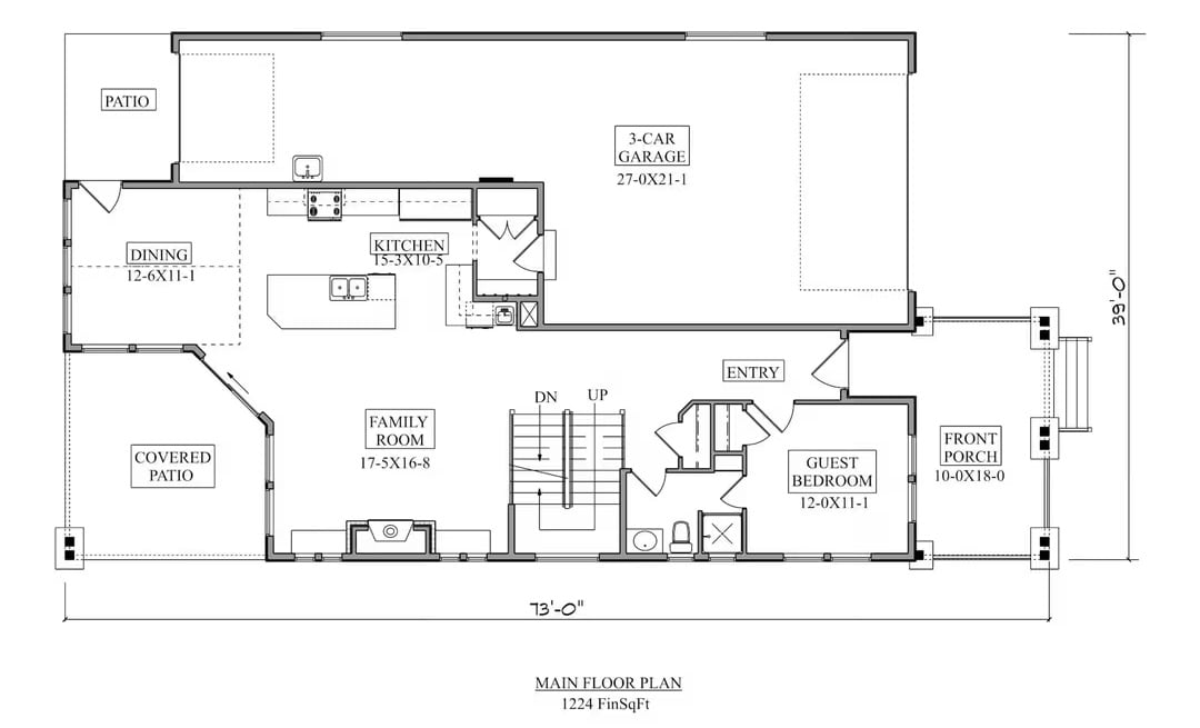
Main Level Floor Plan

Second Level Floor Plan

๐ฅ Create Your Own Magical Home and Room Makeover
Upload a photo and generate before & after designs instantly.
ZERO designs skills needed. 61,700 happy users!
๐ Try the AI design tool here
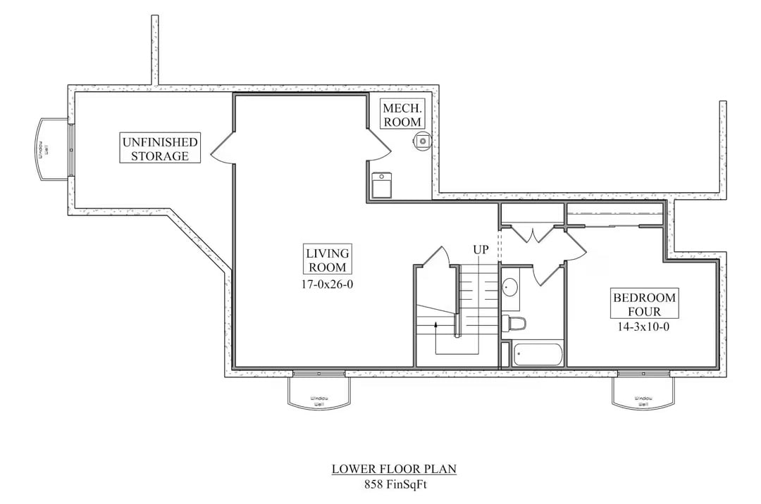
Lower Level Floor Plan

Covered Patio

Family Room

Kitchen

Would you like to save this?
Primary Bathroom

Details
This home offers a smart three-level layout that balances open gathering spaces with comfortable private areas. A modern craftsman exterior includes a welcoming front porch and an attached three-car garage for everyday convenience.
The main floor is built around an open kitchen that flows into the dining area and family room, making it easy to cook, connect, and entertain. A large island adds extra prep space and casual seating, while the dining area opens to the patio for simple indoor-outdoor living. A guest bedroom on this level sits near a full bathroom, making it ideal for visitors or flexible everyday use.
Upstairs, the primary suite is set apart for added privacy, with its own bathroom and a private deck. Two additional bedrooms share a full bathroom, and the laundry room is conveniently placed on the same level.
The lower level adds a spacious second living area that works well as a media room or game space. A fourth bedroom and full bathroom create a private setup for guests or older kids, while unfinished storage provides extra room to stay organized.
Pin It!

The Plan Collection Plan 161-1240
