
🔥 Would you like to save this?
Specifications
- Sq. Ft.: 1,071
- Bedrooms: 0
- Bathrooms: 1.5
- Stories: 2
- Garage: 3-4
[su_spacer]
In order to come up with the very specific design ideas, we create most designs with the assistance of state-of-the-art AI interior design software.
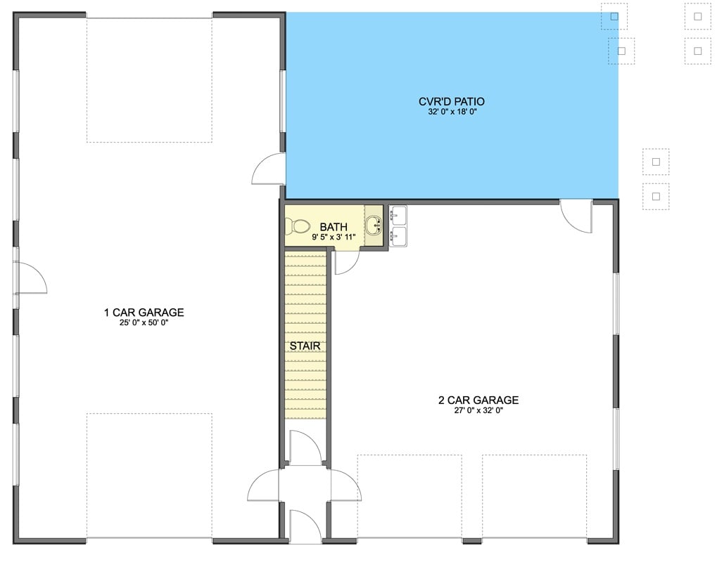
Main Level Floor Plan

Second Level Floor Plan

[su_spacer]
Front-Right View
Rear-Right View

Rear View

Rear-Left View

Front-Left View

Open-Concept Living

Kitchen and Dining Area

Living Room and Billiards Area

Billiards Area

Front Elevation

Right Elevation

Left Elevation
Rear Elevation

[su_spacer]
Details
This modern garage structure features a clean, minimalist exterior defined by simple horizontal siding, sharp rooflines, and contrasting trim. The asymmetrical roof design gives the building a contemporary profile while clearly expressing the different interior volumes. Multiple garage doors are integrated seamlessly into the façade, reinforcing the structure’s purpose-driven design without unnecessary detail.
The main level is focused on vehicle storage and utility. Separate garage bays allow for flexible use, including oversized vehicles, equipment, or workshop needs. A centrally located stairway provides direct access to the upper level, while a bathroom and mechanical space are positioned for easy access without disrupting the garage layout. The level also connects to a covered patio, extending functionality beyond the interior.
The upper level is designed as a large, open loft intended for gathering and recreation. A kitchen area supports entertaining, while storage, a bathroom, and mechanical space are kept along the perimeter to maintain an open layout. Large openings lead to an expansive deck, creating a strong indoor-outdoor connection and making the space well-suited for hosting or flexible use rather than traditional living.
Pin It!

Architectural Designs Plan 61657UT
🔥 Would you like to save this?
Get Inspired by This 2,038 Sq. Ft. Home – 3 Bedrooms and Floor Plan Inside
Sq. Ft.: 2,038 | Bedrooms: 3 | Bathrooms: 2.5
Step Inside This 4 Bedroom Modern House with a Loft and Detached Garage (3,385 Sq. Ft. Floor Plan Included)
Sq. Ft.: 3,385 | Bedrooms: 4 | Bathrooms: 3.5
Modern 3-Bedroom Cumberland Home for a Corner Lot with Jack & Jill Bathroom (Floor Plan)
Sq. Ft.: 2,749 | Bedrooms: 3 | Bathrooms: 2.5
1-Bedrooom Modern Home with Open Living Space and Drive-Thru Garage (Floor Plan)
Sq. Ft.: 1,040 | Bedrooms: 1 | Bathrooms: 1.5
Discover This Striking Modern, 4-Bedroom Farmhouse with Bold Black Accents (Don’t Miss This 3,879 Sq. Ft. Floor Plan)
Sq. Ft.: 3,879 Bedrooms: 4 Bathrooms: 3
