
Would you like to save this?
Specifications
- Sq. Ft.: 2,949
- Bedrooms: 4
- Bathrooms: 3.5
- Stories: 1
- Garage: 3
Main Level Floor Plan

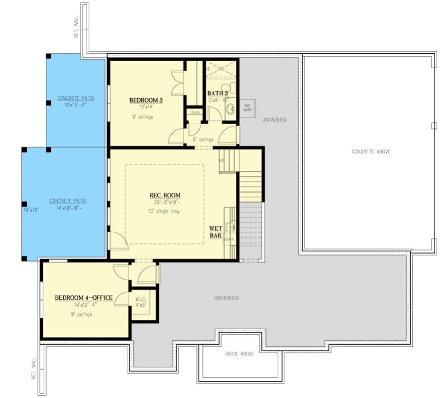
Lower Level Floor Plan

๐ฅ Create Your Own Magical Home and Room Makeover
Upload a photo and generate before & after designs instantly.
ZERO designs skills needed. 61,700 happy users!
๐ Try the AI design tool here
Front Entry

Great Room

Great Room

Kitchen

Would you like to save this?
Kitchen

Kitchen

Pantry

Primary Bedroom

Primary Bathroom

Primary Bathroom

Primary Closet

Laundry Room

๐ฅ Create Your Own Magical Home and Room Makeover
Upload a photo and generate before & after designs instantly.
ZERO designs skills needed. 61,700 happy users!
๐ Try the AI design tool here
Laundry Room

Basement

Bedroom

Bathroom

Bedroom

Would you like to save this?
Covered Porch

Covered Porch

Details
This modern farmhouse craftsman design features a confident exterior with crisp siding, stone accents, and a prominent gabled entry that creates a strong focal point. The covered front porch reinforces a welcoming entry and ties the architectural elements together.
The main level is organized around a vaulted great room that serves as the heart of the home. This space connects directly to the kitchen and dining area, creating a clear, open flow for everyday living. The kitchen includes an island, a hidden pantry, and direct access to the dining area, while covered outdoor spaces extend off the living and dining areas to support indoor-outdoor use.
The primary bedroom is privately positioned on this level and includes a tray ceiling, dedicated bath, and walk-in closet. A secondary bedroom, full bath, laundry room, and powder room are also located on the main level, along with access to the attached garage.
The lower level expands the living space with a large recreation room featuring a wet bar, making it ideal for gatherings or casual use. An additional bedroom and a flexible office or guest room are positioned nearby, along with a full bath.
Unfinished areas provide ample storage or future expansion opportunities, and exterior access leads to concrete patios that connect this level to the outdoors.
Pin It!

Architectural Designs Plan 24431TW
