
Would you like to save this?
Specifications
- Sq. Ft.: 1,979
- Bedrooms: 3-5
- Bathrooms: 3.5-4.5
- Stories: 1-2
- Garage: 2
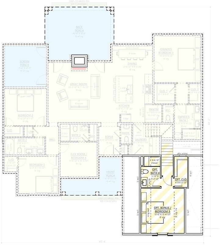
Main Level Floor Plan

Bonus Level Floor Plan

๐ฅ Create Your Own Magical Home and Room Makeover
Upload a photo and generate before & after designs instantly.
ZERO designs skills needed. 61,700 happy users!
๐ Try the AI design tool here
Front View

Left View

Rear View

Rear-Right View

Would you like to save this?
Rear-Left View






Details
This modern farmhouse presents a balanced exterior with crisp white siding, contrasting dark accents, and a mix of gabled rooflines that add depth without feeling busy. Stone elements ground the design, while black trim and simple shutters give the faรงade a clean, updated look.
Inside, the main level is centered around an open great room that connects directly to the kitchen and dining area. The kitchen features an island and a pantry and is positioned to keep daily activity flowing naturally between spaces.
The dining area sits nearby with easy access to the rear porch, creating a strong indoor-outdoor connection for everyday use and entertaining. The great room anchors the layout and maintains clear sightlines across the main living areas.
The ownerโs bedroom is privately placed and includes dual closets and a dedicated bath with a walk-in shower. Additional bedrooms are grouped on the opposite side of the home, sharing a full bath and maintaining separation from the primary suite. A flex room near the front of the house adds adaptable space for a home office, guest room, or secondary living area.
An optional upper-level bonus space expands the homeโs functionality with room for a fifth bedroom, additional bath, and storage. Covered porches at the front and back complete the layout, reinforcing a design that prioritizes comfort, flexibility, and everyday practicality.
Pin It!

Architectural Designs Plan 865030SHW
