
Would you like to save this?
Specifications
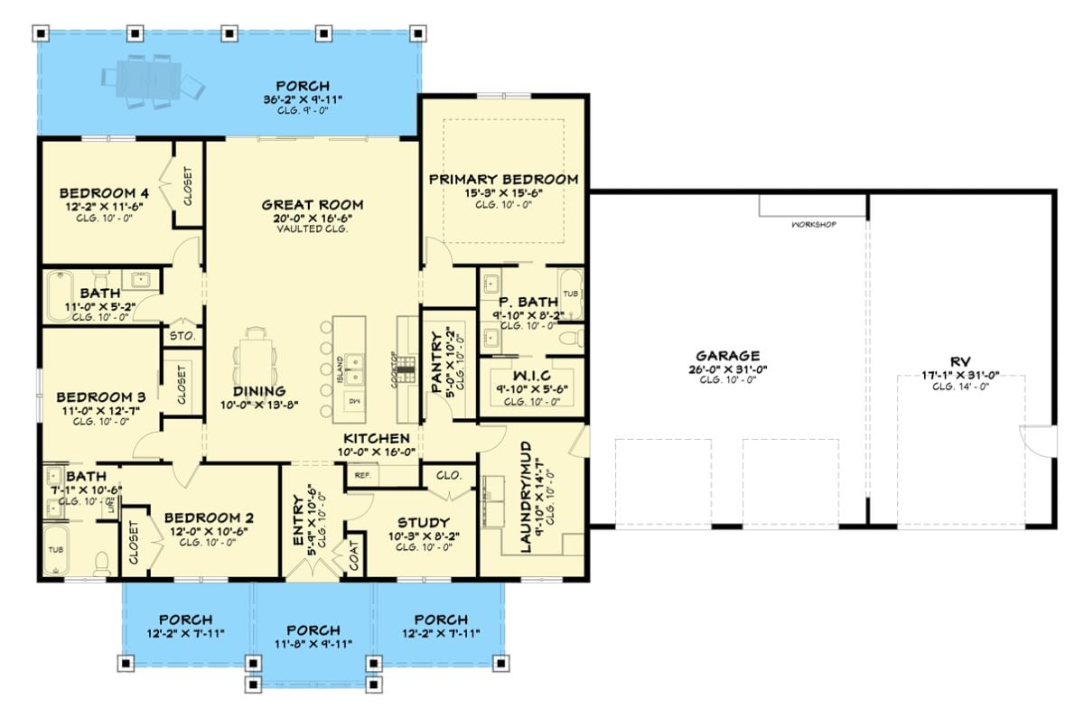
- Sq. Ft.: 2,152
- Bedrooms: 4
- Bathrooms: 3
- Stories: 1
- Garage: 3
The Floor Plan

Front-Right View

๐ฅ Create Your Own Magical Home and Room Makeover
Upload a photo and generate before & after designs instantly.
ZERO designs skills needed. 61,700 happy users!
๐ Try the AI design tool here
Left View

Right View

Front Entry

Great Room

Would you like to save this?
Great Room

Great Room

Great Room

Great Room

Great Room

Great Room

Kitchen

Dining Area

๐ฅ Create Your Own Magical Home and Room Makeover
Upload a photo and generate before & after designs instantly.
ZERO designs skills needed. 61,700 happy users!
๐ Try the AI design tool here
Details
This modern farmhouse presents a clean, expansive silhouette with a strong sense of balance and everyday livability. The covered front porch anchors the faรงade, offering a welcoming outdoor space that visually connects the main living areas to the landscape.
Inside, the layout centers on a vaulted great room that flows seamlessly into the kitchen and dining area, encouraging an open, airy feel ideal for gathering and daily life alike. The kitchen is thoughtfully arranged with generous prep space, a central island, and a walk-in pantry positioned for efficiency.
The primary suite is privately set apart, featuring a spacious bedroom, a large walk-in closet, and a well-appointed bath designed for comfort and ease. Additional bedrooms are grouped to provide flexibility for guests, family, or home office use, while a dedicated study adds a quiet, functional workspace.
Practical spaces such as the laundry and mudroom are smartly placed near the garage for smooth transitions in and out of the home. The oversized garage and workshop area extend the homeโs versatility, accommodating vehicles, storage, or hobby needs with ease.
Pin It!

Architectural Designs Plan 850019PKE
