
🔥 Would you like to save this?
Specifications
- Sq. Ft.: 3,065
- Bedrooms: 4
- Bathrooms: 3.5
Floor Plan

In order to come up with the very specific design ideas, we create most designs with the assistance of state-of-the-art AI interior design software. Also, assume links that take you off the site are affiliate links such as links to Amazon. this means we may earn a commission if you buy something.
The main floor centers on an open family room connecting directly to the dining area, kitchen, and a deck beyond. The owner’s suite sits privately on the right side with two walk-in closets and a dedicated bath. A mud room, hall bath, office, and pantry round out the layout. Garage space accommodates three cars total.
Floor Plan

Upper-level layout shows three numbered bedrooms plus an owner’s suite, each with walk-in closet access. A loft opens toward the staircase, with laundry tucked nearby. Two areas open to below keep the floor from feeling closed off. Dual garages anchor the lower portion of the plan.
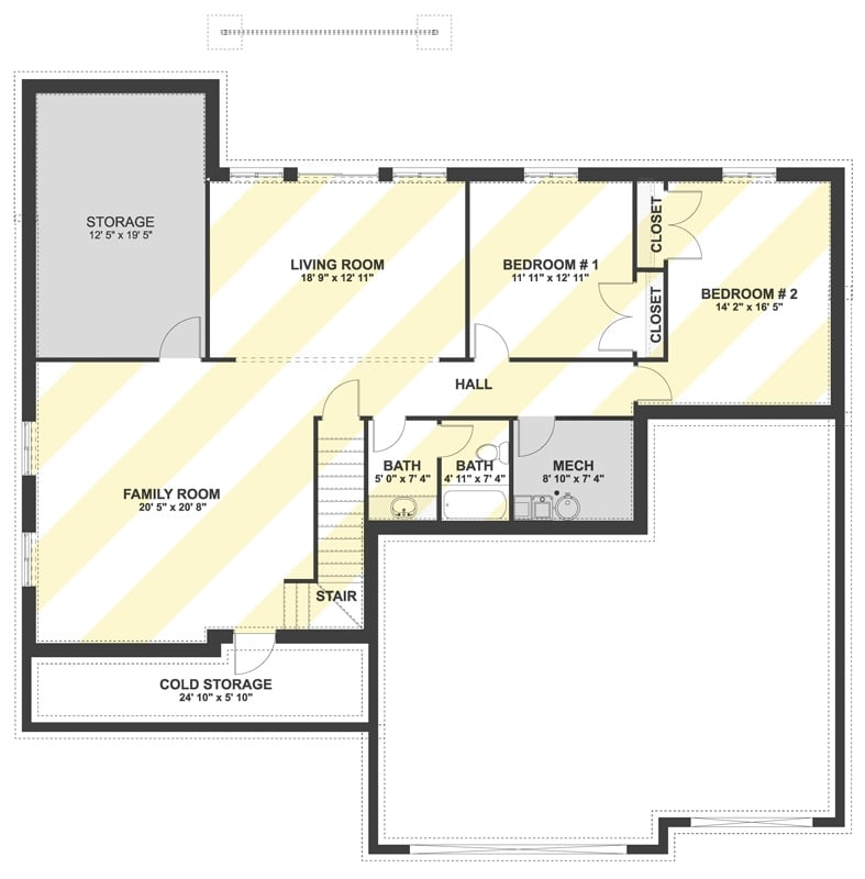
Floor Plan
The basement level includes two bedrooms, two baths, a family room, living room, storage, cold storage, and a mechanical room off the hall.
Elevated Rear Deck with Cable Rail and Walkout Access Below

Viewed from the backyard, the rear elevation shows a raised deck with cable railing and outdoor dining furniture tucked under an oversized window grouping. Stairs descend to a concrete patio at grade, while a walkout lower level sits beneath. White stucco, dark window frames, and a charcoal shingle roof keep the palette sharp without fuss.
Material Matters: Dark-framed windows against white stucco create contrast without added material cost. Cable railing on the deck keeps sightlines open from both interior and exterior vantage points. It’s a practical choice that also reads as modern rather than purely decorative.
Grand Foyer with Two-Story Staircase and Open Sightlines to the Living Room

Whitewashed spindles and a gray-painted handrail carry the eye straight up to the second-floor balcony. Below, a black console with cane-front doors grounds the space. Natural light pulls you forward toward the living room’s floor-to-ceiling windows.
Ask Yourself: Entryways with open sightlines to main living areas can make a home feel larger without adding square footage. Ask yourself how much visual access you want between your front door and your everyday living spaces before committing to an open-hall layout.
Built-In Arched Bookcases That Make the Home Office Feel Like a Private Library

Built-ins with arched niches aren’t just storage — they’re architecture.
Three floor-to-ceiling arched bookcase units anchor the far wall, their patterned backing adding depth without paint or wallpaper. A dark wood desk grounds the room while the white millwork keeps things from feeling heavy. Maps hung in a grid on the right wall reinforce the study aesthetic without overcrowding.
Dark Shiplap Accent Wall and Arched Built-Ins Define the Living Room

Floor-to-ceiling black board-and-batten draws the eye up in a room that already has double-height ceilings. The white built-ins flanking the TV use arched cabinet openings that soften all that vertical geometry. Wood-frame accent chairs keep the seating mix from feeling too monolithic against the pale sofa.
History Corner: The board-and-batten wall treatment has roots in 19th-century American barn construction, where vertical boards covered structural gaps between wall planks. Farmhouse-style interiors adopted the look as decorative paneling long after the functional need disappeared. Today, it’s one of the most cost-effective ways to add architectural detail to a flat wall.
Pendant Lights and a Waterfall Island Anchor This Open Kitchen-to-Dining Flow

Three dome pendants in matte black hang over a waterfall-edge island with seating for three. Shaker cabinets in a warm off-white run the full wall, and the dining area gets its own linear pendant near plantation shutters.
Did You Know: Kitchen islands with waterfall edges became widely popular in residential design after gaining traction in high-end hospitality spaces. The continuous stone surface wrapping down the side can help conceal cabinet hardware and base structure, giving the island a cleaner profile from the dining side.
Warm Wood Tones and a Tufted Bench Give This Primary Suite Its Character

The walnut bed frame pairs with a dark nightstand and a deeply tufted emerald bench at the foot of the bed. Plantation shutters filter light without blocking the greenery outside. A landscape painting above the dresser line adds color without demanding attention. Hardwood floors run uninterrupted into the ensuite beyond.
Color Story: Warm greige walls read differently depending on the light source, shifting cooler in morning light and warmer in the evening. It’s a practical choice for bedrooms, where the mood of the room changes throughout the day. Pairing it with wood tones keeps the palette grounded rather than cold.
Marble Shower Walls and a Soaking Tub That Earn Their Square Footage

Slab marble wraps the shower surround floor to ceiling, with veining bold enough to read as art. A freestanding tub tucks into the niche beside it. Black fixtures tie the vanity side to the shower side without feeling forced. Globe pendant lighting adds warmth where recessed cans would’ve felt clinical.
Globe pendant lighting adds warmth where recessed cans would’ve felt clinical.
Pin It

An exterior rendering shows a modern farmhouse with a three-car garage and board-and-batten siding. Below it, the main floor plan reveals an owner’s suite, two walk-in closets, a family room, and a rear deck.
