
🔥 Would you like to save this?
Specifications
- Sq. Ft.: 5,092
- Bedrooms: 4
- Bathrooms: 3.5
Floor Plan

In order to come up with the very specific design ideas, we create most designs with the assistance of state-of-the-art AI interior design software. Also, assume links that take you off the site are affiliate links such as links to Amazon. this means we may earn a commission if you buy something.
The main floor shows a master suite, an open family and dining area, a den, a mudroom, and two garages.
Floor Plan

Upper level holds four bedrooms, a loft open to below, two walk-in closets, and three bathrooms, with two decks accessible from opposite corners.
History Corner: The open-to-below loft concept gained popularity in American homes during the post-war construction boom of the 1950s, when builders began experimenting with vertical space to create a visual connection between floors. Farmhouse architecture traditionally kept upper levels closed off and utilitarian, so an exposed loft bridging living areas marks a clear departure from that heritage. The design reflects how modern builders blend historic rural forms with open, light-filled interiors.
Floor Plan
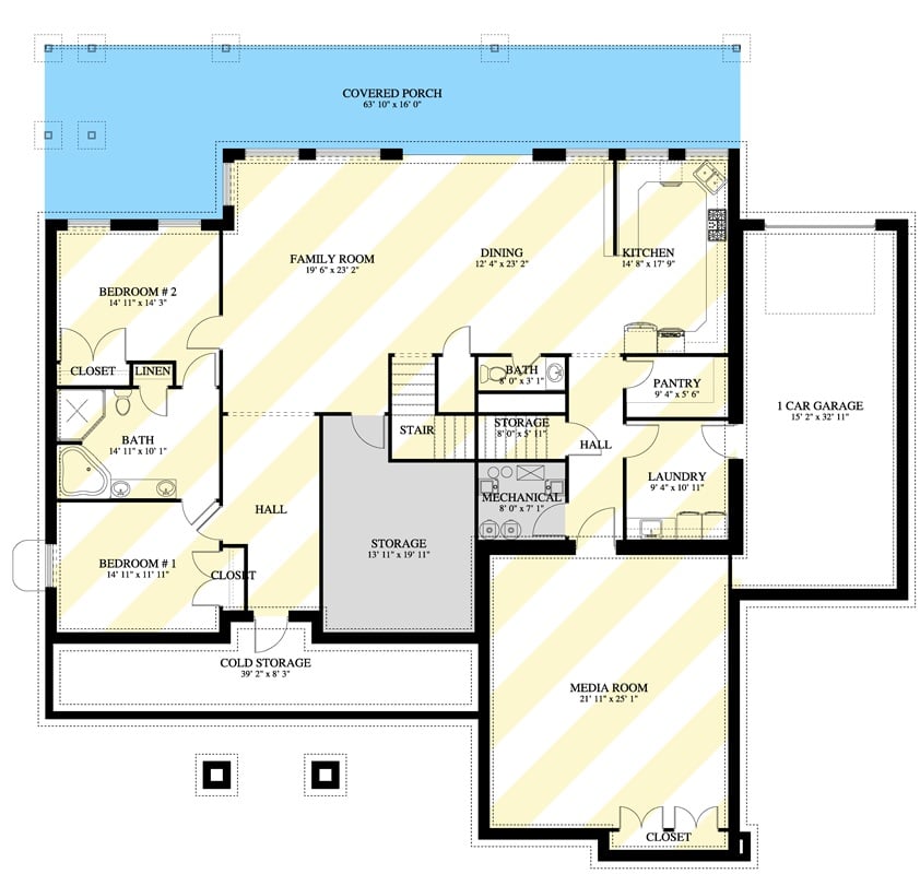
The basement level centers on a large storage room flanked by two bedrooms, a full bath, and cold storage along the rear wall. The media room anchors the southeast corner with its own closet. A hall connects the stairs tothe mechanical, laundry, pantry, and kitchen zones. The covered porch spans the full north face.
Wood-Paneled Entryway with Console Table and Round Mirror

Warm oak wall panels frame a black console table, a round mirror, and a patterned runner leading toward the stairs.
Try This: Pairing dark metal furniture against natural wood panels creates contrast without requiring paint or renovation work. Look for console tables with hairpin or slim square legs to keep the visual weight low in narrow entryways. A round mirror softens the rigid geometry of board-and-batten or flat-panel wall treatments.
Paisley Wallpaper and Dark Wood Desk Define a Classic Home Office

Damask wallpaper covers the back wall behind a triptych horse print, flanked by dark wood furniture, a bronze arc lamp, and a green armchair.
In The Details: Arc floor lamps with metallic shades first appeared in mid-century Italian design, popularized by Achille Castiglioni’s 1962 Arco lamp for Flos. The copper-toned finish on the lamp here reflects light differently than polished chrome, casting a warmer glow across the desk surface. Pairing it with dark wood rather than white keeps the room from reading as a period reproduction.
Double-Height Fireplace Wall Anchors a Light-Filled Great Room

The stone chimney rises to ceiling height, flanked by dark bookcases. Light sofas face a glass coffee table on a patterned rug. Plantation shutters filter afternoon light across hardwood floors.
- Place recessed lights 2 feet from walls to avoid harsh shadows on vertical surfaces
- Use adjustable-trim fixtures so beam direction can shift as furniture arrangements change
- Install dimmer switches on separate circuits for task zones and ambient zones
Mini List: Recessed lighting in double-height ceilings requires careful placement planning before drywall goes up. Repositioning a can light later means cutting into the finished ceiling, patching, and repainting. Getting the layout right during framing saves hundreds in repair costs.
Dark Cabinetry and a Wood Island Anchor an Open Kitchen-Dining Space

Espresso cabinets, light hardwood floors, pendant globe lights, and a wood dining table seat eight beneath a second-floor balcony railing.
Material Matters: Shaker-style cabinet doors in dark espresso finishes have surged in popularity as an alternative to painted cabinetry because they hide wear and grain variation better than solid colors. The wood range hood surround above the cooktop adds visual warmth without introducing a separate material into the palette. Pairing white countertops against dark bases keeps the contrast sharp while reflecting natural light from the plantation shuttered windows.
Marble Island and Dark Cabinets Set the Tone in a Modern Farmhouse Kitchen

Pendant globes hang above a marble-topped island with seating for four. Stainless appliances, wood hood, and light oak flooring complete the space.
Quick Fix: Marble countertops with heavy veining work best when cabinet colors are kept dark or neutral, since lighter cabinets can compete visually with the pattern. Quartz offers a lower-maintenance alternative with similar veining options and no sealing required. Slab thickness also matters — a 3cm top holds up better along island edges than a standard 2cm profile.
Woven Wall Baskets and Dark Curtains Give a Master Bedroom Earthy Depth

Three woven baskets arranged on the left wall add texture without paint or wallpaper. A wood platform bed pairs with a tufted rust bench at its foot. Dark curtains flank plantation shutters, and a black ceiling fan keeps the palette grounded throughout.
Budget Tip: Plantation shutters cost more upfront than blinds, but add measurable resale value because buyers recognize them as a permanent fixture rather than a removable accessory. Many lumber yards and home centers sell unfinished shutter panels that homeowners can paint or stain themselves, cutting installation costs by up to 40 percent compared to custom orders.
Gold Faucets and Marble Countertops Bring Contrast to a White Master Bath

Mixing black hardware with gold fixtures sounds risky, but this bathroom pulls it off.
Oval undermount sinks sit in a marble vanity top with gold faucets and a dark wood cabinet below. A Hollywood-style light bar runs the full width of the mirror. An arched doorway leads to a walk-in closet. The soaking tub rests beside shuttered windows.
Pin It

Exterior rendering shows a craftsman-style two-story home above a detailed first-floor plan featuring a master suite, family room, dual garages, and covered porch.
