
🔥 Would you like to save this?
Specifications
- Sq. Ft.: 3,554
- Bedrooms: 5-7
- Bathrooms: 4-5
- Stories: 2
- Garage: 3
[su_spacer]
In order to come up with the very specific design ideas, we create most designs with the assistance of state-of-the-art AI interior design software. Also, assume links that take you off the site are affiliate links such as links to Amazon. this means we may earn a commission if you buy something.
Main Level Floor Plan

Second Level Floor Plan

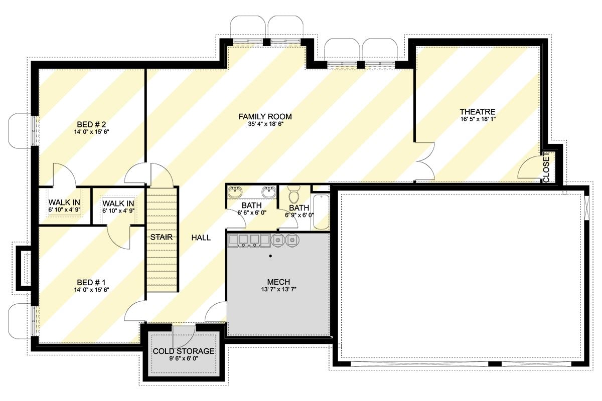
Lower Level Floor Plan
[su_spacer]
Front View

Garage

Dining Room

Dining Room

Living Room

Living Room

Kitchen

Kitchen

Laundry Room

Family Room

Family Room
Office

Family Room

Game Room

Game Room

Theater

Primary Bedroom

Primary Bedroom

Primary Bathroom

Primary Bathroom

Front Elevation

Right Elevation
Left Elevation

Rear Elevation

[su_spacer]
Details
This home features classic modern farmhouse styling with bright siding, crisp trim, and strong gable lines for a clean, timeless look. The covered front entry and attached garage create a practical layout that still feels inviting.
The main level is built for everyday comfort with an open kitchen and dining space that connects directly to the family room. A large kitchen island adds prep space and seating, while a nearby pantry keeps storage close at hand. The living room sits just off the main gathering area, offering a separate space for relaxing or entertaining, and the covered porch extends the living space outdoors.
A private guest room and full bath are positioned near the garage side of the home, making it a great setup for visitors or multi-purpose use. A dedicated home office is placed near the entry for quiet work or study, and a mudroom helps keep daily traffic organized as you come in from the garage.
Upstairs, the owner’s suite includes a spacious bedroom, a large walk-in closet, and a bath with a separate wet room. Two additional bedrooms share access to a full bath, and the laundry room is conveniently located on the same level. A central loft adds flexible bonus space for a second living area or homework zone.
The lower level expands the home with two more bedrooms, a full bath, and a large family room that can serve as a game space, media area, or casual hangout. A dedicated theatre room provides a separate space for movie nights, and extra storage areas keep the lower level functional and organized.
Pin It!

Architectural Designs Plan 61695UT
🔥 Would you like to save this?
Introducing a Spacious 11,715 Sq. Ft. 7 Bedroom Home with Arched Rooflines – Floor Plan Included
Sq. Ft.: 11,715 | Bedrooms: 7 | Bathrooms: 11
Modern 7-Bedroom Barndominium with Loft, Balcony, and Wraparound Porch (Floor Plan)
Sq. Ft.: 4,763 | Bedrooms: 7 | Bathrooms: 5
Step Into This Grand 7-Bedroom Craftsman Marvel with 8,339 Sq. Ft. of Timeless Design (Don’t Miss This Floor Plan)
Sq. Ft.: 8,339 | Bedrooms: 7 | Bathrooms: 6
Step Into This Breathtaking 7-Bedroom Modern Farmhouse Set Against a Majestic Mountain Backdrop (Discover the 3,748 Sq. Ft. Floor Plan Details)
Sq. Ft.: 3,748 Bedrooms: 5-7 Bathrooms: 3.5-4.5
Step Inside This 2,891 Sq. Ft. 7 Bedroom Home with a Stunning Floor Plan and Basement Expansion
Sq. Ft.: 2,891 | Bedrooms: 5-7 | Bathrooms: 3.5-5.5
