
🔥 Would you like to save this?
Specifications
- Sq. Ft.: 2,600
- Bedrooms: 3-4
- Bathrooms: 1
Floor Plan

In order to come up with the very specific design ideas, we create most designs with the assistance of state-of-the-art AI interior design software. Also, assume links that take you off the site are affiliate links such as links to Amazon. this means we may earn a commission if you buy something.
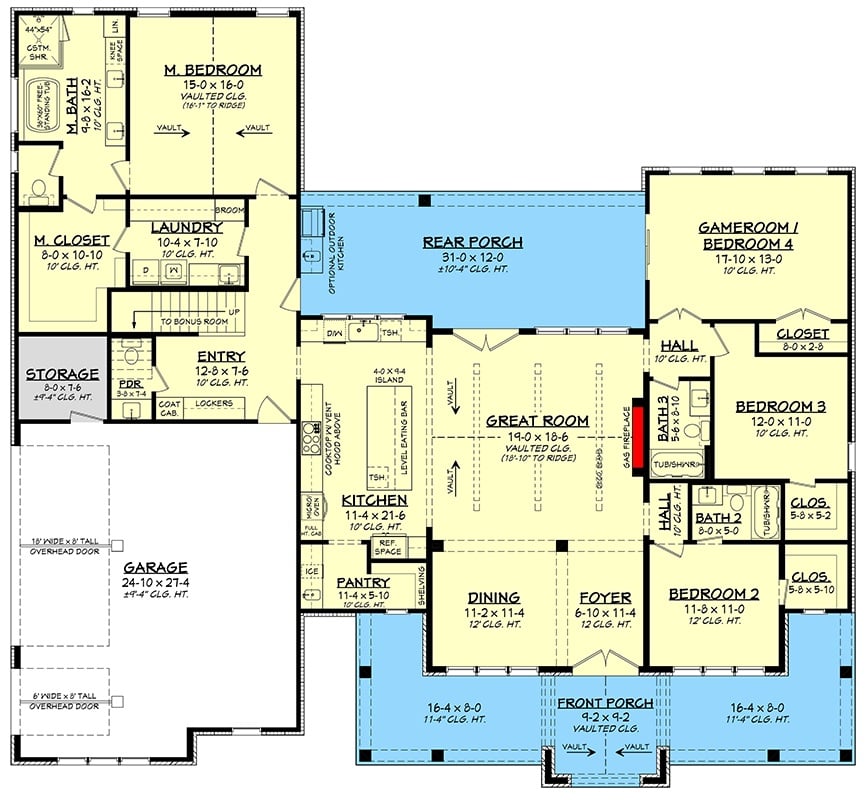
This single-story layout features a split bedroom arrangement with the master suite positioned on the left wing. The great room anchors the center with vaulted ceilings rising to 10 feet. A rear porch extends the living space outdoors. The kitchen connects to a walk-in pantry and dining area. Three additional bedrooms share a hall bath on the right side. A bonus room awaits upstairs above the garage.
Floor Plan

A two-story bonus room sits above the garage entry, accessed via staircase near the main entrance. The master bedroom occupies the upper left corner with an attached closet and laundry access. Three additional bedrooms cluster on the right side of the main floor, sharing two bathrooms. The kitchen flows into a great room and dining area.
Floor Plan
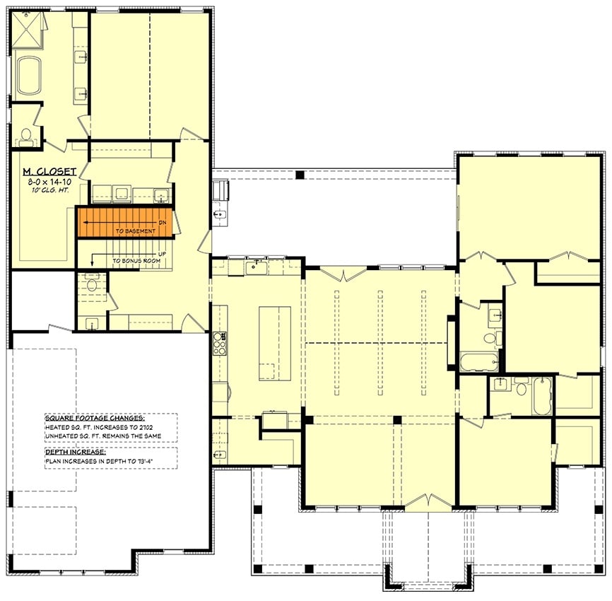
Upper level features master suite with walk-in closet, bonus room, additional bedrooms, and bathroom with separate water closet.
Did You Know: Walk-in closets in older homes rarely exceeded 6 feet by 8 feet, but modern master closets now average 100 to 150 square feet, reflecting our increased clothing storage needs and desire for organized dressing spaces.
Brick and Board-Batten Exterior with Grand Entry Stairs and Black Accents

Warm brick columns frame black board-and-batten siding across this welcoming facade. Multi-pane windows glow with interior light, highlighting the prominent glass entry doors. Brick and concrete steps lead visitors up through landscaped beds filled with boxwoods and colorful florals. Metal roofing tops the gabled sections while a covered porch extends across the front elevation.
Open-Concept Living with Vaulted Ceilings and Natural Wood Tones

Light oak flooring flows through dining and living areas anchored by white sofas, natural wood furniture, and botanical gallery walls above console.
Formal Dining Room with Black-Framed Doors and Neutral Palette

Natural oak chairs circle an oval table beneath modern chandelier. White curtains frame black French doors overlooking greenery. Neutral artwork and textured rug complete the serene space.
Vaulted Great Room with Stone Fireplace and Modern Farmhouse Furnishings

Cream sofas and tan leather ottomans surround a glass coffee table near the linear gas fireplace.
Bright Kitchen with White Cabinetry and Brass Pendant Lights

White shaker cabinets line the perimeter and reach the ceiling for maximum storage. Three brass pendant lights hang above the island, which features a wood base and white countertop. Four woven cane barstools provide seating. Gray subway tile creates the backsplash. The stainless refrigerator includes brass hardware that matches the faucet and lighting throughout the space.
Serene Primary Bedroom with Upholstered Bed and Arched Floor Mirror

Sage green and charcoal walls frame an upholstered bed dressed in layers of neutral linens. An arched windowpane mirror leans against the wall beside a potted fiddle leaf fig. Wood flooring and a cream area rug ground the space beneath a modern chandelier.
Spa-Inspired Primary Bath with Dark Subway Tile Shower and Gold Fixtures

Dark charcoal subway tiles cover the walk-in shower walls, contrasting with white cabinetry and marble countertops. Brushed gold faucets and sconces add warmth throughout. Wood-look flooring anchors the space beneath a freestanding tub positioned near expansive windows overlooking greenery.
Dark charcoal subway tiles cover the walk-in shower walls, contrasting with white cabinetry and marble countertops.
Pin It

Modern farmhouse exterior glows under a pink and orange sunset sky, featuring board-and-batten siding and expansive windows. Below, the floor plan reveals four bedrooms, a bonus room, great room with vaulted ceiling, and front and rear covered porches with detailed layouts.
🔥 Would you like to save this?
4-Bedroom Transitional Style Two-Story Home with Loft and Bonus Room (Floor Plan)
Sq. Ft.: 3,249 | Bedrooms: 4 | Bathrooms: 3.5
Step Inside This 4,065 Sq. Ft. 4 Bedroom Farmhouse with a Wraparound Porch & Must See Floor Plan
Sq. Ft.: 4,065 | Bedrooms: 4 | Bathrooms: 4.5+
Mountain Retreat: 4-Bedroom Home with Expansive Loft and 3-Car Garage (Floor Plan) – Home Stratosphere
Sq. Ft.: 3,907 | Bedrooms: 4 | Bathrooms: 4.5
4-Bedroom Two-Story Farmhouse for a Narrow Lot with a Loft (Floor Plan)
Sq. Ft.: 2,889 Bedrooms: 4 Bathrooms: 3.5
Introducing Your Dream Home: 2,587 Sq. Ft. Two Story House with Loft and Bonus Room (Floor Plan Included)
Sq. Ft.: 2,587 | Bedrooms: 4 | Bathrooms: 3.5

