
🔥 Would you like to save this?
Specifications
- Sq. Ft.: 1,622
- Bedrooms: 3
- Bathrooms: 2
Floor Plan

In order to come up with the very specific design ideas, we create most designs with the assistance of state-of-the-art AI interior design software. Also, assume links that take you off the site are affiliate links such as links to Amazon. this means we may earn a commission if you buy something.
The main level features an open concept living space with kitchen, dining, and living rooms flowing together under 9-foot ceilings. A wraparound covered porch extends from the living area. Bedroom 1 sits privately near the full bath and shower. The hall includes a drop zone with washer and dryer. An attached two-car garage provides direct access, while stairs lead to the upper loft area.
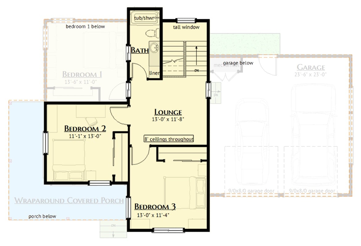
Floor Plan

Upper level shows three bedrooms surrounding a central lounge with tall window. Bath includes tub and shower. Stairs connect to lower level.
Modern Farmhouse Exterior with Vertical Board-and-Batten Siding
White vertical siding wraps the low-slung wings while natural wood cladding defines the tall central gable. Lavender and green shrubs edge the curved walkway leading to a minimalist entry door framed by clean geometric lines.
History Corner: Board-and-batten siding became popular in 19th-century rural America as a practical way to seal barn and farmhouse walls against harsh weather. Vertical boards were nailed to the frame, and thin battens covered the gaps between them, creating a distinctive pattern that modern farmhouse designs now celebrate as signature architectural detailing.
Family Room with Sectional Sofa and Garden Views

Warm afternoon light floods through black-framed windows, highlighting the L-shaped sectional in soft beige fabric. A rustic wood coffee table anchors the seating area atop light oak flooring. Dark green swivel chairs provide additional seating. Framed artwork decorates cream walls while a mounted television occupies the far corner. A table lamp glows beside the sofa.
Dining Area with Wood Table and Pendant Lighting

Natural wood tones define this casual dining space anchored by a square table and matching slat-back chairs. A drum pendant fixture hangs overhead, illuminating a fresh floral centerpiece. Dark cabinetry forms a backdrop while the adjacent kitchen features white appliances and neutral countertops. Light wood-look flooring extends throughout both spaces.
Two-Tone Kitchen with Dark Lower Cabinets and Creamy Upper Storage

Rich chocolate-toned base cabinets contrast with light cream uppers in this U-shaped kitchen layout. Marble countertops complement subway tile backsplash with under-cabinet lighting. Stainless appliances include a built-in dishwasher and refrigerator. Hardwood flooring adds texture beneath black-framed windows overlooking green lawn views.
Pin It

Combined exterior rendering and floor plan showcase this modern farmhouse design. Vertical board-and-batten siding in crisp white pairs with wood-look garage doors and porch supports above. Below, the main level layout reveals bedroom one with private bath, open living and dining spaces, kitchen with pantry access, and attached two-car garage with mechanical room.
🔥 Would you like to save this?
Discover This 3,709 Sq. Ft. 3-Bedroom Home with a Loft and Spacious 4 Bay Garage (Floor Plan Included)
Sq. Ft.: 3,709 | Bedrooms: 3 | Bathrooms: 3
3-Bedroom Contemporary Home with 3-Car Garage (2,176 Sq. Ft. Floor Plan)
Sq. Ft.: 2,012 | Bedrooms: 4 | Bathrooms: 2
Step Inside This 2,454 Sq. Ft. 3 Bedroom Home — Floor Plan Included
Sq. Ft.: 2,454 | Bedrooms: 3 | Bathrooms: 2.5
Cottage-Style 3-Bedroom Richardson Home with Double Garage and Bonus Expansion (Floor Plan)
Sq. Ft.: 1,689 | Bedrooms: 3 | Bathrooms: 2

