
🔥 Would you like to save this?
Specifications
- Sq. Ft.: 1,599
- Bedrooms: 2-4
- Bathrooms: 2-3
- Stories: 1
- Garage: 2
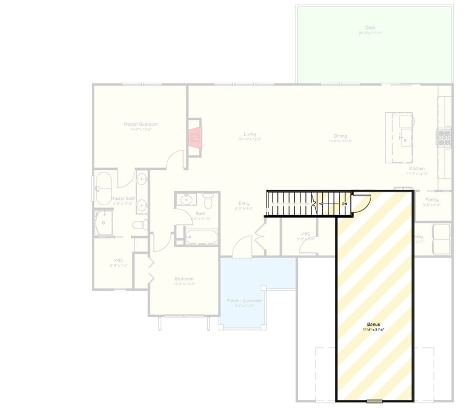
Main Level Floor Plan

In order to come up with the very specific design ideas, we create most designs with the assistance of state-of-the-art AI interior design software. Also, assume links that take you off the site are affiliate links such as links to Amazon. this means we may earn a commission if you buy something.
Bonus Level Floor Plan

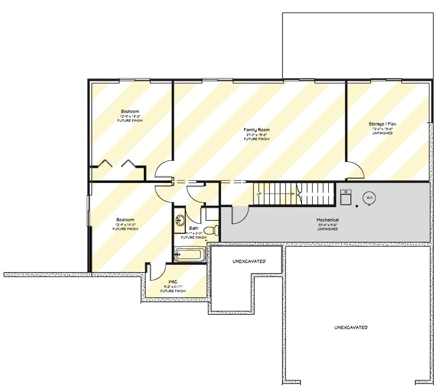
Lower Level Floor Plan
Rear View

Living Room

Living Room

Dining Area

Kitchen

Kitchen

Kitchen

Kitchen

Kitchen

Kitchen

Primary Bathroom
Primary Bathroom

Front Elevation

Right Elevation

Left Elevation

Rear Elevation

Details
This modern farmhouse home presents a clean, approachable exterior with simple gables, horizontal siding, and a covered front entry that gives the design a polished, contemporary feel. The attached garage is integrated smoothly into the layout, keeping the overall profile cohesive and practical.
The main level is centered on an open living space that brings together the kitchen, dining area, and living room in a straightforward, easy-to-use layout. The kitchen includes a large island, pantry, and direct connection to the dining area, while the living space opens toward the rear deck to extend everyday functionality.
The primary bedroom is positioned for privacy and includes a private bathroom and walk-in closet. A secondary bedroom and a full bathroom are located nearby, making the main level comfortable for daily living. A mudroom, laundry area, and interior access to the garage support efficient routines and storage needs.
A bonus level above the garage adds flexible space that can adapt to a variety of uses, such as a media room, office, or guest retreat. The lower level is designed for future expansion, with space planned for additional bedrooms, a bathroom, a large family room, and storage areas.
Pin It!

Architectural Designs Plan 149020AND
