
🔥 Would you like to save this?
Specifications
- Sq. Ft.: 2,070
- Bedrooms: 3
- Bathrooms: 3.5
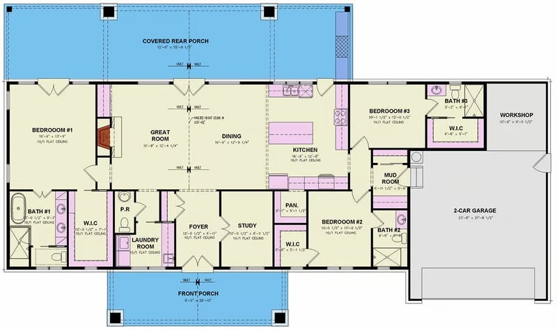
Floor Plan: The Primary Suite Hides Behind the Garage for Maximum Privacy

In order to come up with the very specific design ideas, we create most designs with the assistance of state-of-the-art AI interior design software. Also, assume links that take you off the site are affiliate links such as links to Amazon. this means we may earn a commission if you buy something.
The primary bedroom sits behind the two-car garage, isolated from the home’s busiest zones. A walk-in closet and private bath create a true retreat. The great room and dining area share an open center with sightlines to both porches. Bedrooms two and three anchor the opposite wing, separated by a shared bath and study. The kitchen angles between dining and a mudroom with laundry access. A pantry tucks beside the kitchen for storage. The foyer connects both bedroom wings without forcing traffic through living spaces.
Vaulted Ceilings and Exposed Beams Give This Living Room Scale Without Losing Warmth

Vaulted ceilings rise to exposed wood beams that frame the volume without making it feel cavernous. A circular chandelier hangs above the seating area, anchoring the vertical space. Floor-to-ceiling black-framed windows and doors connect the room to the lawn outside. A white fireplace with herringbone tile anchors the seating zone, flanked by glass-front cabinets that keep the walls open. Light wood floors and natural tones hold the room together.
Black-Framed Windows and a Cane-Back Dining Chair Set That Balances Heft and Airiness
Black frames anchor the space while cane chair backs lighten the visual load around a two-tone table. Copper pendants over the island add warmth. White cabinetry runs to the ceiling, and under-cabinet lighting keeps the workspace functional after dark.
Why It Works: Cane chair backs offer the structure of wood without the visual bulk, so the dining area feels defined but not closed off from the kitchen. The mix of black frames, natural wood, and metal finishes prevents the white walls from reading too sterile.
Copper Pendant Lights Drop Low Over the Island to Anchor the Kitchen

Copper pendant lights hang at staggered heights above a gray island with wood countertops and integrated seating for casual meals. White perimeter cabinetry with glass-front uppers wraps three walls. Under-cabinet LED strips illuminate a pale wood backsplash. A stainless steel range sits between cabinets, flanked by a custom hood. Double ovens occupy the far wall beside a glass-door refrigerator.
Cathedral Ceilings and Grid Windows Frame a Living Room Built for Gathering

Cathedral ceilings peak at the wood-planked gable, pulling eyes up and expanding volume without making the room feel cavernous. A wall of black-framed windows lines the far side, bringing in daylight and views while the French doors connect inside to outside. Gray upholstered chairs and a matching ottoman anchor the seating zone, balanced by a brown leather sofa that adds warmth. Pendant lights hang over the dining table in the open kitchen beyond, where white cabinetry and wood tones echo the ceiling treatment and keep material choices consistent across the open floor plan.
Pendant Lights Hang on Opposite Sides of the Bed to Free Up Nightstand Space

Suspended pendants flank this primary bedroom instead of traditional table lamps, leaving nightstand surfaces clear for books and plants. A cylindrical chandelier with glass rods hangs above the bed. Wood French doors with black grilles open to a view of greenery outside, reinforcing indoor-outdoor connection.
Recessed Ceiling Lighting and Vertical Paneling Draw the Eye Up Over the Tub

Recessed lighting sits inside a stepped ceiling detail that pulls attention upward, making the bathroom feel taller than its actual dimensions. White vertical paneling wraps the tub wall and continues across the space, creating rhythm. Two framed landscape prints hang above wall-mounted bronze faucets. A glass shower enclosure sits in a marble-tiled alcove with bronze fixtures and built-in niches. Plants in white ceramic holders soften the tub corner.
Pin It

Modern farmhouse exterior with timber-framed gable entry paired with a detailed floor plan showing room layout and flow.
