
Specifications
- Sq. Ft.: 1,398
- Bedrooms: 2
- Bathrooms: 1
- Stories: 1
- Garage: 1
The Floor Plan

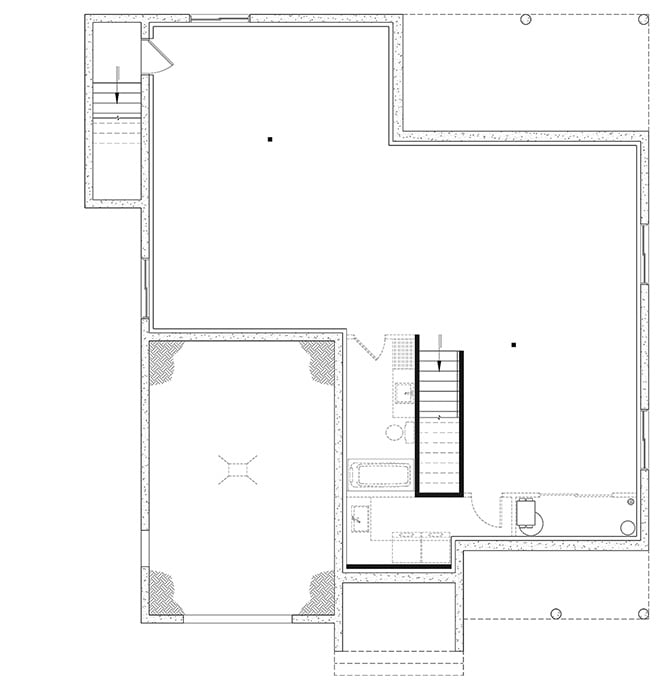
Unfinished Basement

Front View

Front-Left View

Open-Concept Living

Open-Concept Living

Living Room

Living Room

Kitchen

Kitchen and Dining Area

Bathroom

Bathroom

Rear Elevation

Details
This modern cottage features a balanced mix of light vertical siding and natural stone accents that add warmth and texture to the faรงade. A dark gable roof contrasts elegantly against the light walls, emphasizing the homeโs simple, refined lines. The front porch, supported by sturdy wooden beams, provides a welcoming entryway with space for seating and relaxation.
Inside, the foyer opens directly into a bright living room with cathedral ceilings, creating a spacious and airy atmosphere. This area flows seamlessly into the dining room and kitchen, forming an open-concept living space that encourages connection and ease of movement. The kitchen features a central island and direct access to a covered terrace at the back of the home, ideal for outdoor dining or entertaining.
The private section of the house includes a primary bedroom with a walk-in closet. A second bedroom sits nearby, perfect for guests or family members. Conveniently located between the living areas and bedrooms, a pantry and garage access point add practicality to the layout.
Pin It!

Architectural Designs Plan 22721DR
