
🔥 Would you like to save this?
Specifications
- Sq. Ft.: 3,379
- Bedrooms: 4-6
- Bathrooms: 5.5
- Stories: 2
- Garage: 2
[su_spacer]
In order to come up with the very specific design ideas, we create most designs with the assistance of state-of-the-art AI interior design software. Also, assume links that take you off the site are affiliate links such as links to Amazon. this means we may earn a commission if you buy something.
Main Level Floor Plan

Second Level Floor Plan

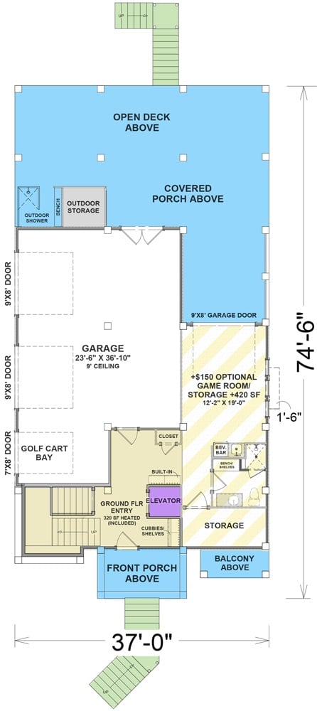
Lower Level Floor Plan
[su_spacer]
Front View

Front-Right View

Front-Left View

Veranda

Veranda

Balcony

Balcony

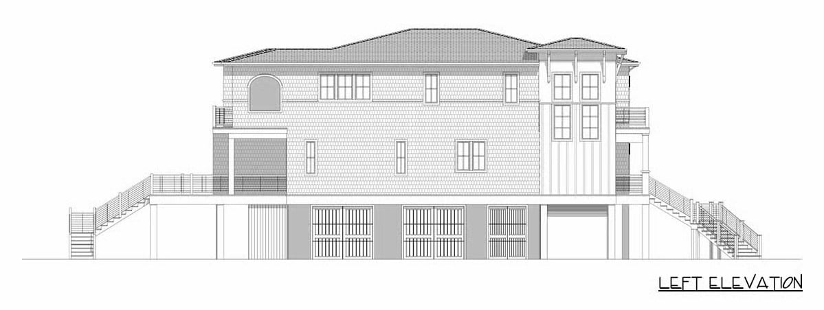
Right Elevation

Left Elevation

[su_spacer]
Details
This modern coastal home features a stacked, open exterior designed to take full advantage of outdoor living and elevated views. Clean horizontal lines, wide overhangs, and generous use of glass give the home a light, contemporary presence while maintaining a strong architectural structure. Multiple covered and open decks create a seamless connection between indoor and outdoor spaces across every level.
The main living level is designed for open flow and easy entertaining. The kitchen, dining, and family room are arranged in a continuous layout that opens directly to a covered veranda and rear deck through large glass doors. This level also includes the primary bedroom, positioned for privacy with direct access to outdoor space, along with a walk-in closet and laundry nearby.
A secondary bedroom or study sits toward the front of the home, offering flexibility for guests or work-from-home needs. An elevator and central stairs provide convenient access to all levels.
The upper level is dedicated to additional bedrooms and shared living space. Multiple bedrooms are arranged around a central landing, each with access to bathrooms and private or shared balconies. A flexible recreation room adds another gathering space, while open balconies extend the living experience outward from nearly every room.
The lower level focuses on function and recreation, anchored by a spacious garage with additional bays for storage or specialty vehicles. Adjacent spaces allow for optional game room use, storage, or casual hangout areas, all connected to outdoor covered areas beneath the main deck.
Pin It!

Architectural Designs Plan 765059TWN
