
🔥 Would you like to save this?
Specifications
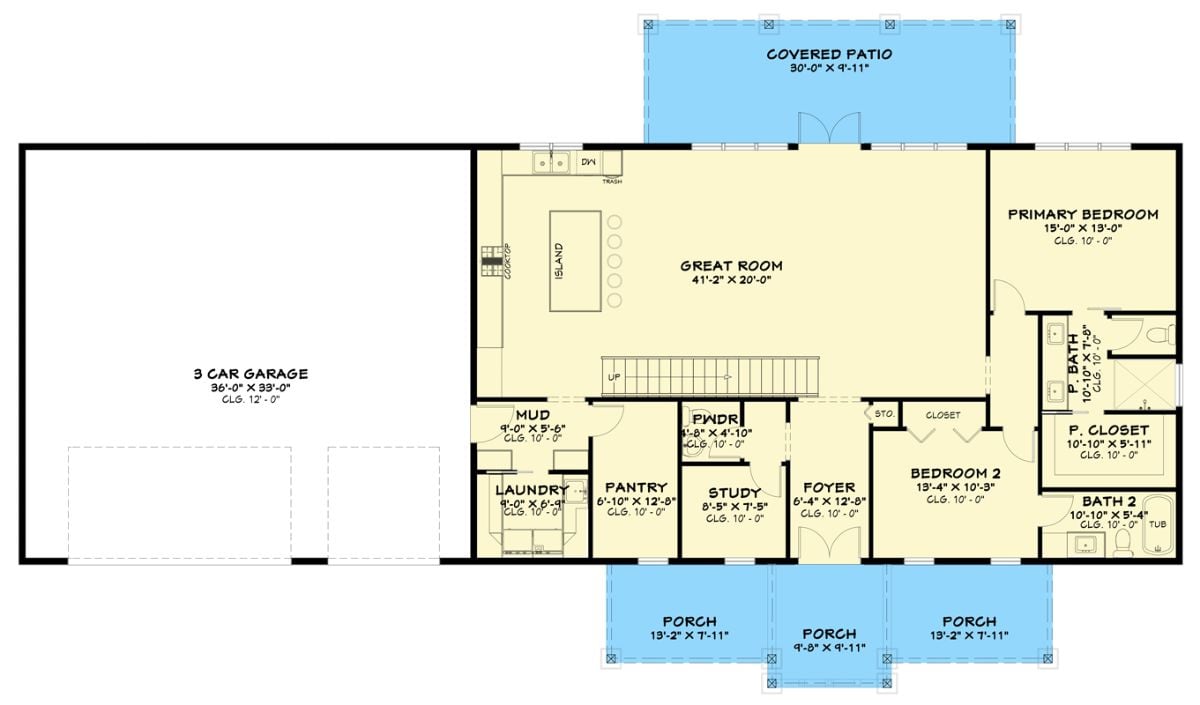
- Sq. Ft.: 3,105
- Bedrooms: 5
- Bathrooms: 4.5
Floor Plan

In order to come up with the very specific design ideas, we create most designs with the assistance of state-of-the-art AI interior design software. Also, assume links that take you off the site are affiliate links such as links to Amazon. this means we may earn a commission if you buy something.
The main floor centers on a 41×20 great room with an open kitchen and island. A primary bedroom, second bedroom, study, mudroom, laundry, pantry, and powder room complete the level. A covered patio and three porches extend outdoor living options.
Floor Plan

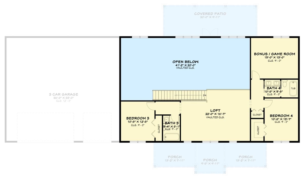
Upper level includes a loft, two bedrooms, a bonus game room, and two bathrooms. Stairs connect to an open-below vaulted area. Bedroom 3 sits near Bath 3, while Bedroom 4 shares a wall with Bath 4 and the game room.
Covered Back Porch Brings Warmth to a White Farmhouse Exterior
White board-and-batten siding sits above a dark brick base on this two-story barndominium. Warm lighting glows beneath a covered rear porch supported by wood columns. Large windows line both floors, pulling natural light deep into the home.
Warm Light and Low-Profile Seating Define This Living Room’s Mood

Beige sectional, earth-tone pillows, hardwood floors, abstract art, tall windows, potted tree.
Trend Alert: Low-profile sofas are gaining ground in living rooms designed for a relaxed, grounded feel. Paired with high ceilings, they create a visual contrast that makes spaces feel both open and intimate. Warm neutral upholstery in textured fabrics keeps the look current without chasing trends.
Warm Kitchen and Dining Area Anchored by Dark Wood and Red Accents

Dark wood table, iron chairs, red bar stools, and a bold red refrigerator anchor this open kitchen-dining space.
Editor’s Note: Bar-height stools at a kitchen island offer a casual seating option that keeps the cook connected to guests during meals. Mixing metal bar stools with a wood dining table, as shown here, creates visual contrast without requiring a complete furniture overhaul. Red upholstery adds a pop of color that ties back to the refrigerator finish for a cohesive look.
Open-Plan Living Anchored by Hardwood Floors and a Kitchen Island

Hardwood floors connect the living, dining, and kitchen zones. Red refrigerator, black granite counters, and green throw pillows add contrast throughout.
Designer’s Secret: Open-plan layouts benefit from distinct area rugs to visually separate living zones without building walls. A rug under the sofa and one under the dining table each claim their own territory, giving each space a defined boundary. Flooring continuity across all three zones keeps the overall space cohesive despite those divisions.
Hallway Art Wall Sets a Quiet, Considered Tone Before the Living Room

Framed geometric prints in green flank a wood-floored hallway leading toward French doors.
Framed geometric prints in green flank a wood-floored hallway leading toward French doors.
Blue Bedding and Layered Pillows Ground a Moody Primary Suite

Blue knit bedding anchors the room with texture, paired with rust and olive pillows for contrast. A low platform bed sits on a gray area rug over wood flooring. Two landscape paintings hang above the headboard. A digital clock reads 10:56.
Ask Yourself: Pairing a low platform bed with oversized wall art draws the eye upward and makes the ceiling feel taller than it is. If your bedroom walls feel flat, art hung slightly higher than expected can shift the entire sense of proportion in the space.
Pin It

Exterior rendering pairs with a first-floor plan showing a great room, two bedrooms, a study, and a three-car garage.
