
🔥 Would you like to save this?
Specifications
- Sq. Ft.: 2,692
- Bedrooms: 2
- Bathrooms: 2.5
- Stories: 1-2
- Garage: 3
[su_spacer]
In order to come up with the very specific design ideas, we create most designs with the assistance of state-of-the-art AI interior design software. Also, assume links that take you off the site are affiliate links such as links to Amazon. this means we may earn a commission if you buy something.
Main Level Floor Plan

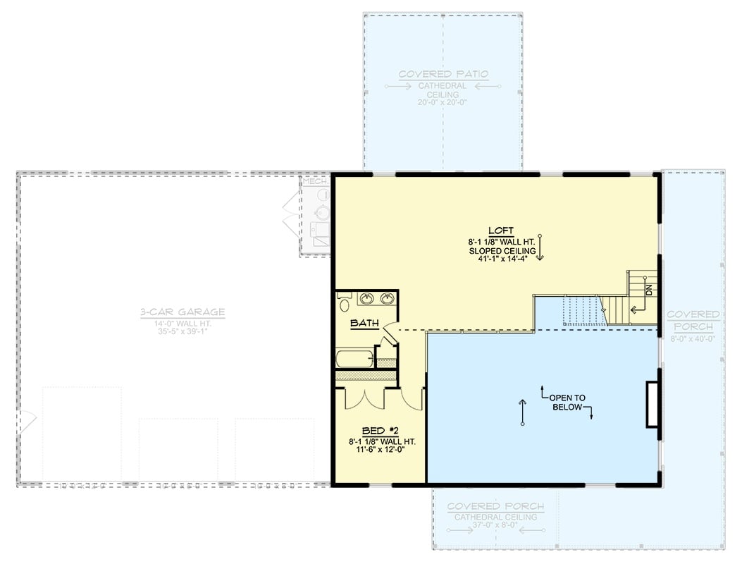
Second Level Floor Plan

[su_spacer]
Front-Left View
Rear-Left View

Rear-Right View

Front-Right View

Living and Dining Rooms

Living Room

Dining Area

Kitchen

Kitchen

Laundry Room

Living Room

Office
Primary Bedroom

Primary Bedroom

Primary Bathroom

Primary Bathroom

[su_spacer]
Details
This modern barndominium home features a long, low profile with clean lines, simple roof forms, and large garage doors that emphasize its functional design. The exterior blends modern structure with a straightforward, work-ready appearance that feels both durable and refined.
The main level centers on an open living and dining area with a dramatic two-story ceiling that creates a strong sense of space and connection. The kitchen sits just off the main living area, keeping everyday activity efficient while remaining visually connected.
A primary bedroom is located on the main level and includes a private bathroom and walk-in closet, offering separation from shared spaces. An office and laundry area are positioned nearby, supporting daily routines without interrupting the main living flow.
The upper level overlooks the living space below and includes a flexible loft area that can serve as additional living or recreational space. A second bedroom and full bathroom complete this level, making it comfortable for guests or extended household needs.
Covered outdoor areas on both levels extend the usable living space while reinforcing the home’s indoor-outdoor connection.
Pin It!

Architectural Designs Plan 135412GRA
🔥 Would you like to save this?
2-Bedroom Contemporary Barndominium with Pergola Patio and Open-Concept Living (Floor Plan)
Sq. Ft.: 1,651 | Bedrooms: 2 | Bathrooms: 2
Welcome to a 1,108 Sq. Ft. 2 Bedroom Home with a Must See Floor Plan
Sq. Ft.: 1,108 | Bedrooms: 2 | Bathrooms: 1
3-Bedroom Innovative Quonset Hut Barndominium with Loft Space and Open-Concept Living (Floor Plan)
Sq. Ft.: 2,490 | Bedrooms: 3 | Bathrooms: 2
Architect Designs Stunning Barndominium with Massive Warehouse-Like Garage that Looks Like a Regular House
Sq. Ft.: 2,096 | Bedrooms: 2 | Bathrooms: 2
Discover This 1,000 Sq. Ft. 2 Bedroom Barndominium with Seamless Open Living – Check Out the Floor Plan
Sq. Ft.: 1,000 | Bedrooms: 1-2 | Bathrooms: 1.5

