
🔥 Would you like to save this?
Specifications
- Sq. Ft.: 4,009
- Bedrooms: 3
- Bathrooms: 2.5
Floor Plan

In order to come up with the very specific design ideas, we create most designs with the assistance of state-of-the-art AI interior design software. Also, assume links that take you off the site are affiliate links such as links to Amazon. this means we may earn a commission if you buy something.
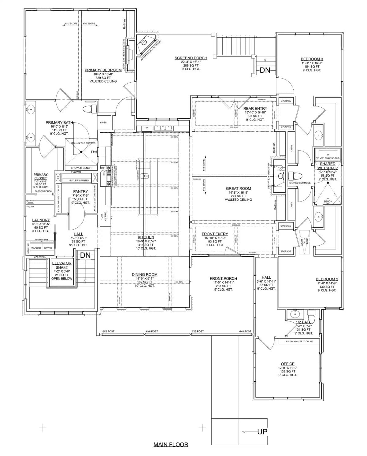
The main floor shows a primary suite, two bedrooms, an open kitchen, a great room, a screened porch, and an elevator shaft.
Floor Plan

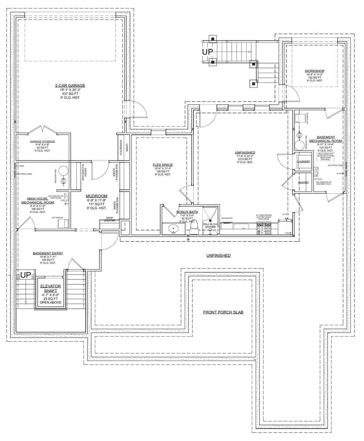
The basement level connects a 2-car garage, mudroom, flex space, and bonus bath with a roll-in tile shower. An elevator shaft and dedicated workshop add practical depth. Unfinished zones offer room to expand as needs grow.
Quick Fix: The roll-in tile shower in the bonus bath signals accessibility planning built into the structure from the start, not added later. Pairing it with the elevator shaft makes this basement genuinely functional for aging-in-place living.
Rear Elevation Reveals Covered Porch, Triple Garage Bays, and Stone Chimney
Board-and-batten siding, metal railings, wood garage doors, and a stone chimney define this rear exterior.
Trend Alert: Raised rear entries accessed by exterior stairs are gaining ground in sloped-lot builds across the Southeast. Homeowners get dry, protected parking underneath without excavating a traditional basement. The covered porch positioned above the garage level captures elevated views that a grade-level design would lose entirely.
This is Wild 👇
Floor-to-Ceiling Stone Fireplace Anchors an Open Living Room with Vaulted Ceilings

Light stone rises two stories above a wood-burning firebox. White sectional seating, a round iron-base coffee table, and natural wood shelves complete the space.
- Stone veneer running full ceiling height reads as structural, giving visual weight to the room’s center
- Open shelving beside the chimney avoids the cost and bulk of floor-to-ceiling millwork
- White upholstery works in high-ceiling rooms because natural light from tall windows reduces shadow contrast
mini_list: Floating wood shelves flanking a tall fireplace chimney are practical, not decorative. They solve the display problem that tall stone walls create without requiring built-in cabinetry. Spacing the shelves at uneven heights keeps heavier objects lower and lighter items up top.
Exposed Ceiling Beams and Stone Hood Define a Kitchen Built for Serious Cooking

Dark wood ceiling beams cross above white shaker cabinets with glass uppers. A stone range hood anchors the back wall. Six backless wood stools line a waterfall island clad in wood planking. Marble countertops and hardwood floors tie the materials together.
A stone range hood anchors the back wall.
Vaulted Ceilings and Warm Wood Tones Set the Tone in the Primary Suite

Espresso-finish furniture anchors white bedding and ivory pillows against white walls. Clerestory windows pull in natural light without sacrificing privacy. Hardwood floors reflect sun across a muted vintage-style area rug beneath the bed bench.
Style Math: Matching nightstands flanking a bed do more than look balanced — identical heights and drawer counts keep morning routines symmetrical for two people sharing the space. Pairing dark wood furniture with white walls is one of the oldest high-contrast combinations in residential design, and it works because neither element competes with the other.
Warm Wood Cabinetry and Marble Counters Anchor a Spacious Double-Vanity Bath

Rustic knotty wood cabinetry runs the full vanity wall, topped with veined marble. Two framed mirrors sit beneath wall sconces. A frameless glass shower with grab bars occupies the opposite side.
Material Matters: Knotty alder and knotty pine are the go-to cabinet woods for bathrooms designed to feel warm without going formal. The natural knots and grain variation mean no two cabinets look identical, which works in favor of a handcrafted aesthetic. Both species take stain well, holding color evenly across large vanity runs like this one.
Pin It

An exterior rendering shows a farmhouse-style ranch with board-and-batten siding and dormers. Below, the floor plan details three bedrooms, a screened porch, an elevator shaft, and a vaulted great room.
