
🔥 Would you like to save this?
Specifications
Sq. Ft.: 3,305
Bedrooms: 3
Bathrooms: 2.5
Stories: 2
Garage: 3
In order to come up with the very specific design ideas, we create most designs with the assistance of state-of-the-art AI interior design software. Also, assume links that take you off the site are affiliate links such as links to Amazon. this means we may earn a commission if you buy something.
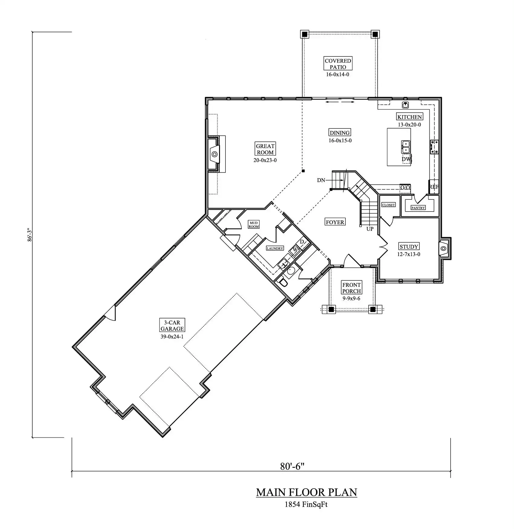
Main Level Floor Plan

Upper Level Floor Plan

Lower Level Floor Plan
Front View

Front Entry

Great Room

Great Room

Kitchen

Kitchen

Bar

Primary Bathroom

Bathroom

Powder Room

Details
This 3,305 square foot home brings together comfortable family living and plenty of usable space for daily routines. The main level offers an open floor plan with a warm family room, a defined foyer, and a great room that encourages gathering.
The kitchen features a generous island, an L-shaped layout, and a walk-in pantry designed to simplify busy days. Upstairs, the primary suite includes a sitting area, a double vanity bath, and a spacious walk-in closet for privacy and relaxation.
Two additional bedrooms are split for comfort, with easy access to the upper-level laundry. The covered front and rear porches extend living outdoors, while the lower-level unfinished area adds options for storage or future expansion.
With its side-located garage and practical front-entry setup, this home blends comfort, convenience, and flexible living for a welcoming everyday experience.
Pin It!
The House Designers Plan 12057
