
🔥 Would you like to save this?
Specifications
Sq. Ft.: 1,800
Bedrooms: 3
Bathrooms: 2
Stories: 1
Garage: 2
In order to come up with the very specific design ideas, we create most designs with the assistance of state-of-the-art AI interior design software. Also, assume links that take you off the site are affiliate links such as links to Amazon. this means we may earn a commission if you buy something.
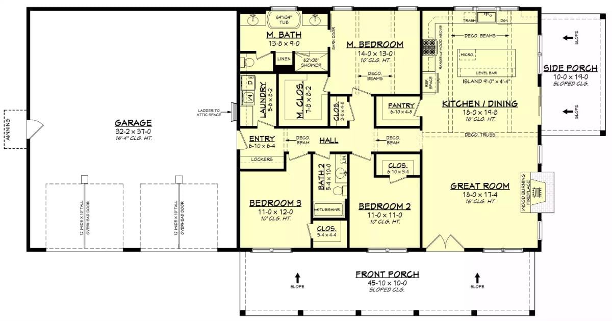
Main Floor Plan

Great Room

Great Room
Dining Room

Kitchen

Primary Bedroom

Primary Bathroom

Front Elevation

Left Elevation

Right Elevation

Rear Elevation

Details
The Magnolia Bluffs house plan is a thoughtfully designed 1,800 sq. ft. barndominium-style modern farmhouse that combines rustic charm with contemporary amenities.
This single-story layout includes 3 bedrooms and 2 bathrooms, featuring a private primary suite with a spacious walk-in closet and en-suite bathroom.
The heart of the home boasts an open-concept great room with 16-foot ceilings and a wood-burning fireplace, seamlessly flowing into the dining area and kitchen, creating an inviting living space.
The kitchen is equipped with a large island and a walk-in pantry, enhancing its functionality. An oversized 2-car garage offers ample storage and includes wall-mounted ladder access to an attic storage area above the main living space.
With its barndominium aesthetics and efficient layout, the Magnolia Bluffs plan caters to those seeking a stylish yet practical home.
Pin It!
The House Designers Plan 10564
🔥 Would you like to save this?
Country-Style Barndominium with 3 Bedrooms and Double Garage (Floor Plan)
Sq. Ft.: 2,089 | Bedrooms: 3 | Bathrooms: 2.5
Step Inside This 3-Bedroom Barn-Style Home with Rustic Charm and Modern Amenities (2,608 Sq. Ft. Floor Plan Included)
Sq. Ft.: 2,608 Bedrooms: 3 Bathrooms: 2.5
3-Bedroom Barndominium with 6-Car Garage and Open-Concept Living (Floor Plan)
Sq. Ft.: 3,884 | Bedrooms: 3 | Bathrooms: 3
Barndominium-Style 3-Bedroom Home with Covered Patios and a Loft (Floor Plan)
Sq. Ft.: 2,659 | Bedrooms: 3 | Bathrooms: 2.5

