
🔥 Would you like to save this?
Specifications
- Sq. Ft.: 3,052
- Bedrooms: 4
- Bathrooms: 2.5
Floor Plan

In order to come up with the very specific design ideas, we create most designs with the assistance of state-of-the-art AI interior design software. Also, assume links that take you off the site are affiliate links such as links to Amazon. this means we may earn a commission if you buy something.
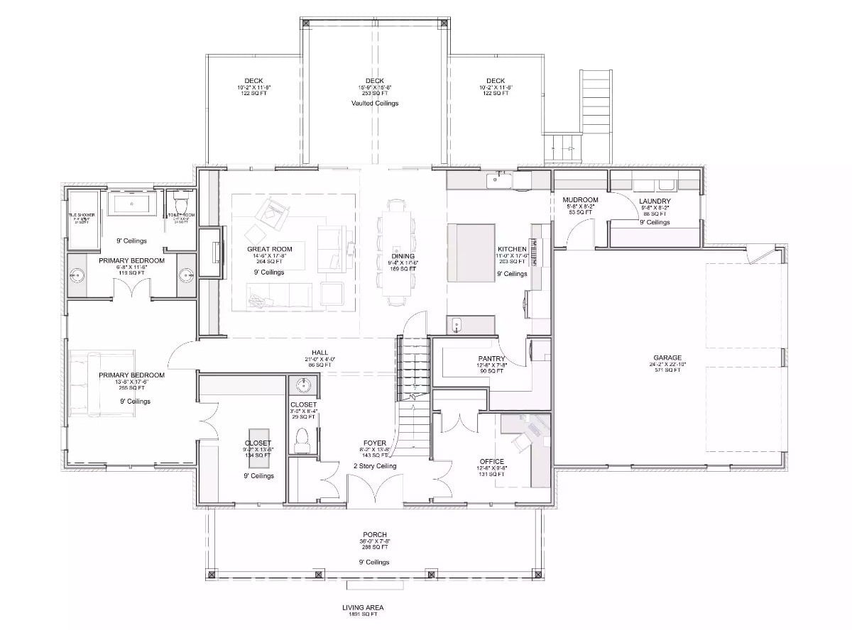
The main level centers on an open great room, dining area, and kitchen with 9-foot ceilings. Two primary bedrooms anchor the left wing. A foyer with a 2-story ceiling leads to the staircase. Notable spaces include a pantry, mudroom, laundry, office, and a 571-square-foot garage along the right side.
Floor Plan

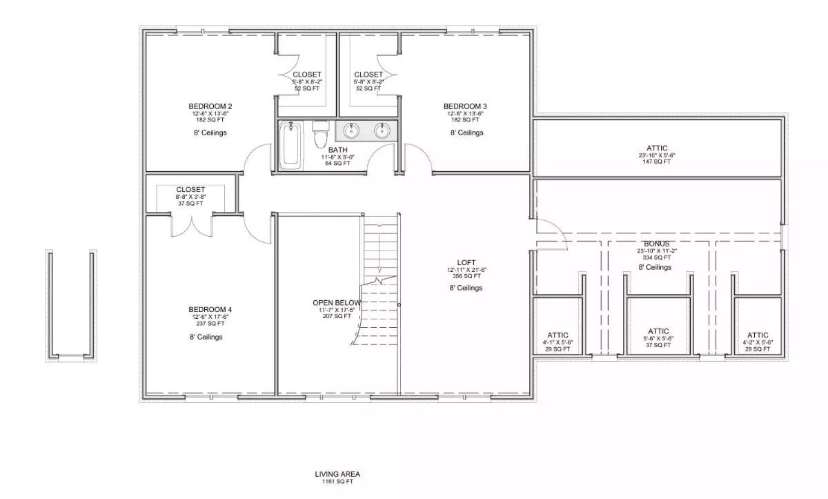
Upper level hosts four bedrooms, a loft, a shared bath, and a bonus room. Two closets adjoin bedrooms 2 and 3. Attic access appears on multiple sides, with an open-below stairwell connecting floors.
Covered Rear Deck with Gabled Pergola Frames Walkout Lower Level
White brick exterior pairs with dark window frames and wood deck boards. A gabled covered porch shelters outdoor dining above a ground-level patio with sliding glass doors.
Budget Tip: Choosing painted brick over traditional siding can save thousands on long-term maintenance costs. Brick holds paint well and resists moisture, making it a cost-effective finish for large two-story rear elevations. Budgeting for quality exterior paint upfront reduces repainting frequency significantly.
Black French Doors Anchor a Whitewashed Brick Facade on This Country Home

Gridded black French doors sit centered beneath a covered porch with a shiplap ceiling. Whitewashed brick runs from floor to soffit. Rounded boxwoods flank the steps. Black shutters frame flanking windows, tying the entry palette together with contrast.
Did You Know: French doors used as a primary entry make a strong architectural statement while letting natural light reach interior foyers and hallways. Steel-framed versions like these offer durability and a slim profile that suits both farmhouse and transitional styles. Homeowners often find that they add resale appeal by creating a more open, welcoming first impression than solid panel doors.
Arched Built-Ins and Dark Hardwood Ground a Light-Filled Country Living Room

Paired arched alcoves flank a whitewashed fireplace, each fitted with open wood shelving and gray cabinetry below. Dark hardwood floors contrast with pale walls. Charcoal sofas anchor the seating area around a low coffee table. A sideboard separates the living space from the dining area, where a round table sits near sliding glass doors.
Double Arched Alcoves as Architectural Storage
Built-in alcoves with arched tops serve both as display space and practical storage without requiring separate furniture pieces. The combination of open shelving above and closed cabinetry below gives homeowners flexibility to show decorative objects while concealing everyday clutter. Painted to match the surrounding walls, the alcoves read as part of the architecture rather than added-on millwork.
Open-Concept Kitchen and Dining Flow Toward a Curved Staircase

Gray cabinetry, white counters, hardwood floors, and a dark sofa anchor this open living, dining, and kitchen space with red accent pieces.
Common Mistake: Many open-concept layouts position the dining table too close to the kitchen island, leaving almost no room to pull chairs out comfortably. Plan for at least 36 inches between the island edge and dining seating. Tighter clearances create daily frustration that no amount of stylish furniture can fix.
Barn Door Hardware and Warm Wood Vanity Define a Modern Country Bath

Dark wood cabinetry grounds the double vanity beneath a marble countertop. A sliding barn door with matte black hardware opens to a walk-in shower with mosaic tile floors. Freestanding soaking tub sits below a large window, drawing natural light across hardwood floors.
Try This: Freestanding tubs look best positioned at least 18 inches from the nearest wall, giving enough room to clean behind them and making the fixture feel intentional rather than squeezed in. If your floor plan allows it, centering the tub under a window adds balance without requiring any additional materials.
Striped Bedding and Warm Wood Floors Anchor a Sun-Washed Country Bedroom

Sunlight cuts across hardwood floors in a pattern that does half the decorating work.
Striped bedding adds graphic contrast against soft taupe walls. Colorful geometric llama art injects personality without overwhelming the room’s calm palette.
Pin It

Rendered exterior shows a two-story country home with dormers, black shutters, and a full-width covered porch. Below it, the first-floor plan reveals a primary bedroom suite, great room, open dining and kitchen, pantry, office, mudroom, laundry, and a three-car garage totaling 3,801 square feet of living area.
Style Tip: Barn-style mudrooms placed between the garage and kitchen create a practical buffer zone that keeps dirt and clutter out of main living spaces. Adding built-in cubbies with hooks at two heights, one for adults and one for kids, makes daily drop zones functional for the whole household.
