
🔥 Would you like to save this?
Specifications
- Sq. Ft.: 988
- Bedrooms: 2
- Bathrooms: 2
Floor Plan

In order to come up with the very specific design ideas, we create most designs with the assistance of state-of-the-art AI interior design software. Also, assume links that take you off the site are affiliate links such as links to Amazon. this means we may earn a commission if you buy something.
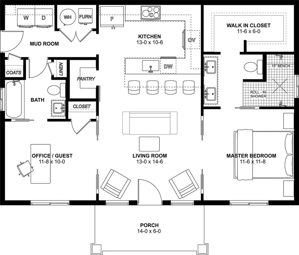
This single-story layout centers on an open kitchen and living room that share a natural flow. The master bedroom connects to a walk-in closet and a roll-in shower bath. A flexible office and guest room sit near the front. A mud room with a washer, dryer, and pantry anchors the rear entry. A front porch spans 14 feet wide.
Floor Plan

At 1,064 square feet, the layout centers on an open kitchen and living room with a front porch entry. The master bedroom connects to a walk-in closet and roll-in shower. A mud room with laundry, a full bath, a pantry, linen storage, and an office/guest room complete the single-level plan.
Floor Plan
Labeled as an alternate master bath layout, the plan shows a walk-in closet measuring 11-6 x 7-6 occupying the upper portion. Below it, the master bath includes dual sinks along the left wall, a toilet tucked behind a half wall, and a separate shower stall. A doorway connects both spaces.
Warm Neutrals and Natural Light Define This Ranch-Style Living Space

Cream sofa, caramel armchairs, and ottomans anchor the room. Hexagon-patterned rug, wood floors, and a black glass-panel front door complete the look.
Fun Fact: Ranch-style homes often feature low-pitched rooflines and wide front porches designed to blur the boundary between indoor living and the outdoors. The black front door here creates contrast against the warm beige palette, a popular choice in modern farmhouse interiors. Large grid windows flood the space with natural light, reducing the need for artificial lighting during daytime hours.
Fluted Wood Panels and Marble Countertops Meet in This Kitchen Island

Black stools line a kitchen island wrapped in vertical wood slats beneath a marble surface. Globe pendants hang from navy cords. Open shelves hold bowls and greenery. A chalkboard barn door displays a handwritten shopping list near the entry.
Did You Know: Kitchen islands with fluted or ribbed wood paneling became popular as homeowners looked for ways to add texture without paint or wallpaper. The vertical lines draw the eye upward, making ceilings feel taller in open-concept spaces. Pairing that wood detail with a light marble top creates contrast that keeps the design grounded rather than heavy.
Botanical Prints and Geometric Wallpaper Anchor a Sun-Drenched Ranch Bedroom

Warm oak flooring pulls natural light across the room toward a large grid-pane window dressed in linen drapes. Three botanical prints hang centered above white bedding layered with a fringed wool throw. Midcentury nightstands flank the bed, and a round upholstered ottoman sits near the window corner.
Three botanical prints hang centered above white bedding layered with a fringed wool throw.
Moving into the primary bath, the design choices carry the same warmth found throughout the rest of the home.
Gold Hardware and Botanical Wallpaper Set the Tone in This Double Vanity Bath

Natural maple cabinetry runs the full length of the vanity, fitted with brass cup pulls and faucets that repeat the gold finish overhead. Two round mirrors with brass frames hang against a hand-illustrated floral mural. Pendant lights with milk glass shades drop from above. White countertops provide contrast against the wood below.
Gold Hardware and Folded Linens Keep This Walk-In Closet Grounded

Built-in cabinetry in a muted greige finish lines the walls, with brass pulls adding contrast. Open shelves hold folded plaids and stacked linens. Below, low heels and flats sit in neat rows. Hanging rods carry sweaters, coats, and button-downs on wood hangers. Light hardwood flooring ties the storage wall to the rest of the space.
Quick Fix: Dedicating one rod exclusively to outerwear keeps heavier coats from crowding everyday pieces and makes morning dressing faster. Placing shoes on the lowest shelf rather than the floor protects them from dust and keeps the closet easier to sweep.
Murphy Bed Cabinetry and Gold Hardware Turn a Home Office Into a Guest Room

Built-in cabinetry conceals a Murphy bed beside a light wood desk and a gold-legged chair.
Why It Works: Murphy beds folded into cabinetry have made a comeback as homeowners prioritize rooms that serve more than one purpose. Matching the cabinet finish to the wall color keeps the hardware from reading as furniture, making the room feel open even when the bed is stored. Brass pulls add just enough contrast to keep the wall from looking flat.
Butcher Block Counters and Patterned Wallpaper Ground a Functional Laundry Room

Wood butcher block spans the full folding surface above two front-load GE machines. Rolled towels, an iron, and folded linens sit within reach. Geometric floral wallpaper covers the backsplash, while upper cabinets with matte black pulls provide storage overhead. Light hardwood flooring runs through to the adjacent hallway.
Trend Alert: Butcher block has become a go-to countertop material in laundry rooms because it handles moisture better than many homeowners expect when properly sealed. Unlike stone, it can be sanded down and re-oiled if it takes damage, giving it a longer practical lifespan in high-use utility spaces.
Pin It

An exterior rendering shows a ranch-style home with a covered front porch and gabled roofline. Below, the floor plan reveals an open-concept layout with two bedrooms, a walk-in closet, office, mudroom, and kitchen flowing into the living room.
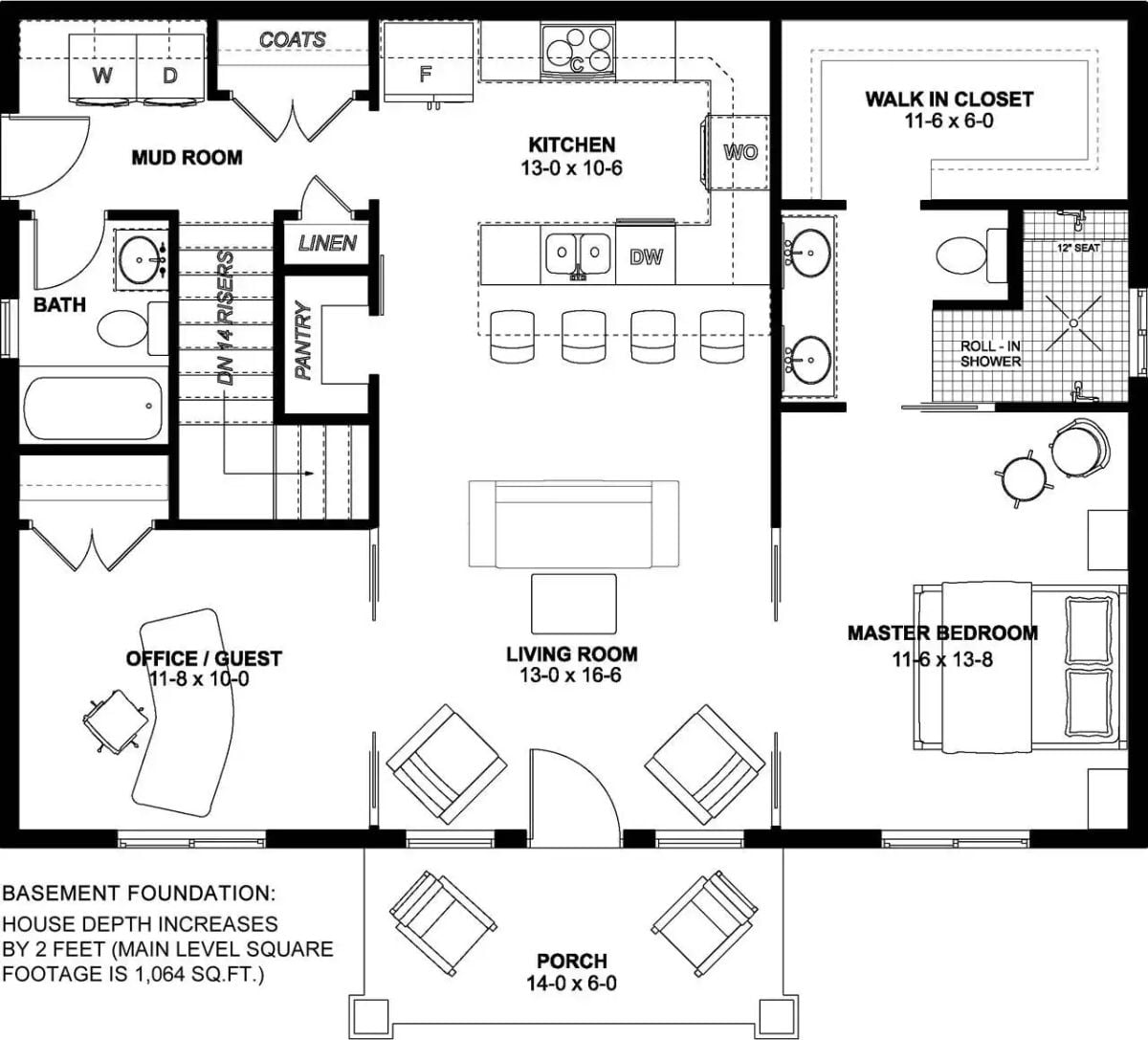
Worth Knowing: Open-concept floor plans reduce the number of load-bearing interior walls, which can lower framing costs during construction. Ranch homes benefit especially from this approach because the single-story layout already distributes structural load more evenly than a multi-story design.
