
🔥 Would you like to save this?
Specifications
- Sq. Ft.: 2,152
- Bedrooms: 4
- Bathrooms: 3
- Stories: 1
- Garage: 3
[su_spacer]
In order to come up with the very specific design ideas, we create most designs with the assistance of state-of-the-art AI interior design software. Also, assume links that take you off the site are affiliate links such as links to Amazon. this means we may earn a commission if you buy something.
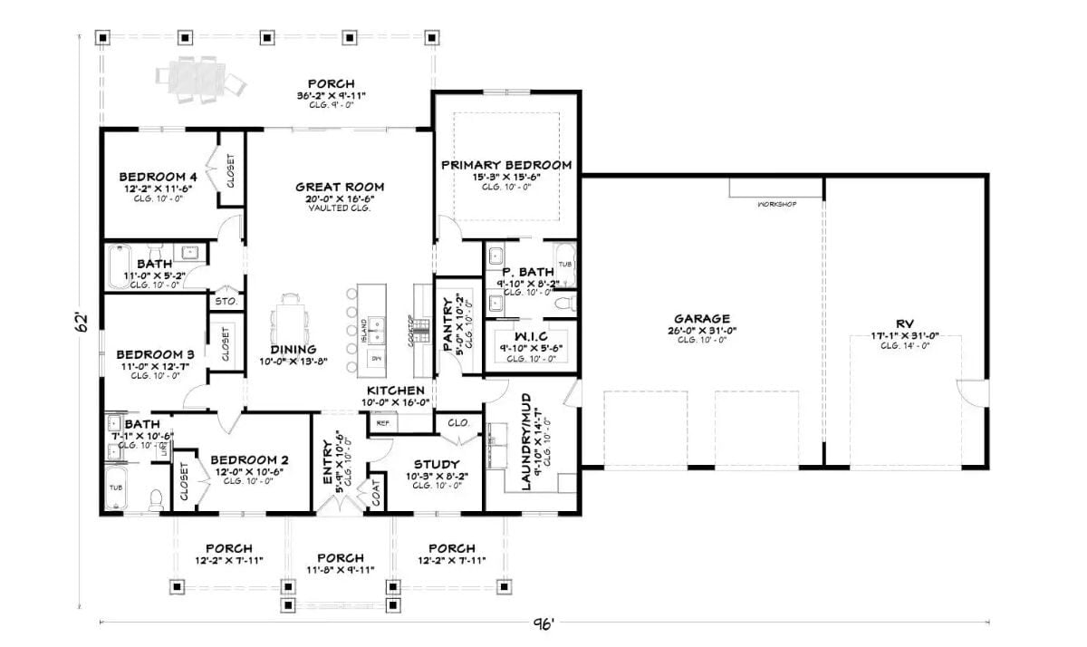
The Floor Plan

[su_spacer]
Front-Right View

Front-Left View
Right View

Left View

Entry Porch

Living Room

Living Room

Living Room

Living Room

Kitchen

Dining Area

[su_spacer]
Details
This modern farmhouse ranch features crisp light siding, a long low-profile roofline, and a covered front entry framed by timber-style posts and stone accents. The oversized garage and tall RV bay add a bold, functional finish that fits both daily living and weekend storage needs.
Inside, the home is organized around an open great room with vaulted ceilings that connects directly to the kitchen and dining area. A large island anchors the kitchen for prep and casual seating, while the rear porch extends the living space outdoors for easy entertaining.
The primary suite is set apart on its own wing and includes a private bathroom and a walk-in closet. Three additional bedrooms sit on the opposite side of the home, with two full bathrooms placed nearby to keep mornings running smoothly. A dedicated study adds flexible space for working from home or managing daily tasks.
The laundry and mudroom area creates a practical transition between the living space and garage entry. Beyond the attached garage, the plan includes a large shop area and separate RV parking bay, giving the home standout space for projects, equipment, and extra vehicles.
Pin It!

The House Designers Plan THD-12155
🔥 Would you like to save this?
4-Bedroom Single-Story Acadian Ranch with Wraparound Porch (Floor Plan)
Sq. Ft.: 3,690 Bedrooms: 4 Bathrooms: 3.5
Explore the 4 Bedroom Hardesty Stone Ranch: Timeless Design Meets Modern Comfort in This 2,124 Sq Ft. Home (View All the Floor Plans)
Sq. Ft.: 2,124 | Bedrooms: 4 | Bathrooms: 3
Transitional 4-Bedroom Ranch with Lower-Level Expansion and 3-Car Garage (Floor Plan)
Sq. Ft.: 3,027 | Bedrooms: 1-4 | Bathrooms: 1.5-3.5

