
🔥 Would you like to save this?
Specifications
Sq. Ft.: 3,760
Bedrooms: 4
Bathrooms: 4
Stories: 2
Garage: 2
In order to come up with the very specific design ideas, we create most designs with the assistance of state-of-the-art AI interior design software. Also, assume links that take you off the site are affiliate links such as links to Amazon. this means we may earn a commission if you buy something.
First Level Floor Plan

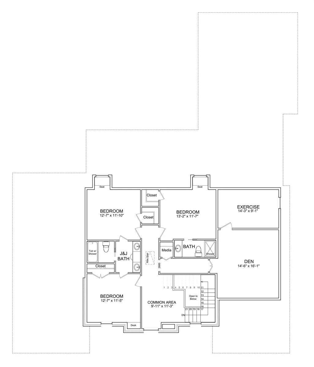
Second Level Floor Plan

Front Entry
Living Room

Family Room

Swimming Pool Area

Swimming Pool Area

Front Elevation

Left Elevation

Right Elevation

Rear Elevation

Details
Prepare to be amazed at the beauty that is this regal traditional European-style plan. Designed to look as though it was plucked straight from a chateau in the French countryside, this 2-story, 3,760 square foot plan is exceedingly special.
Every last detail was poured over in this 4-bed, 4-bath design, leaving you with a stunning home, sure to be the highlight of the neighborhood. Beyond the gorgeous white brick exterior, enter onto the first floor, where you are greeted by a sweeping grand staircase.
Beyond sits your family room, a large space that is flooded with natural light, thanks to the windows that line the back wall and look out onto the covered rear porch. The gourmet kitchen is directly nearby, as is the formal dining room and the cozy breakfast nook.
The amazing offerings don’t stop there, as the first floor is highlighted by the master suite, encompassing a full wing of the home. Here you’ll love the large spa bath, as well as the amazing walk-in closet, large enough for any wardrobe. The second floor is where you’ll find 3 more bedrooms, as well as a cozy family den and your very own home gym.
Pin It!
The House Designers Plan 7526
🔥 Would you like to save this?
Rustic Two-Story 4-Bedroom The Canterbury European Home with Balcony (Floor Plan)
Sq. Ft.: 3,012 | Bedrooms: 4 | Bathrooms: 3.5
Introducing a 3,402 Sq. Ft. 4 Bedroom Cape Cod Home – Get Inspired by the Floor Plan
Sq. Ft.: 3,402 | Bedrooms: 4 | Bathrooms: 2.5
Tour This Unique 3,537 Sq. Ft. European-Style Home with 4 Bedrooms, Modern Accents, and Spacious Living (Must-See Floor Plan)
Sq. Ft.: 3,537 | Bedrooms: 4 | Bathrooms: 4.5
Experience 4,834 Sq. Ft. of Open, Elegant Living in This 4 Bedroom European-Style Home – Floor Plan Inside
Sq. Ft.: 4,834 Bedrooms: 4 Bathrooms: 4.5
European-Style 4-Bedroom Home with Loft and Jack & Jill Bathroom (Floor Plan)
Sq. Ft.: 3,867 | Bedrooms: 4 | Bathrooms: 3.5

