
Specifications
- Sq. Ft.: 2,645
- Bedrooms: 2-5
- Bathrooms: 2.5 โ 4.5
- Stories: 1
- Garage: 4
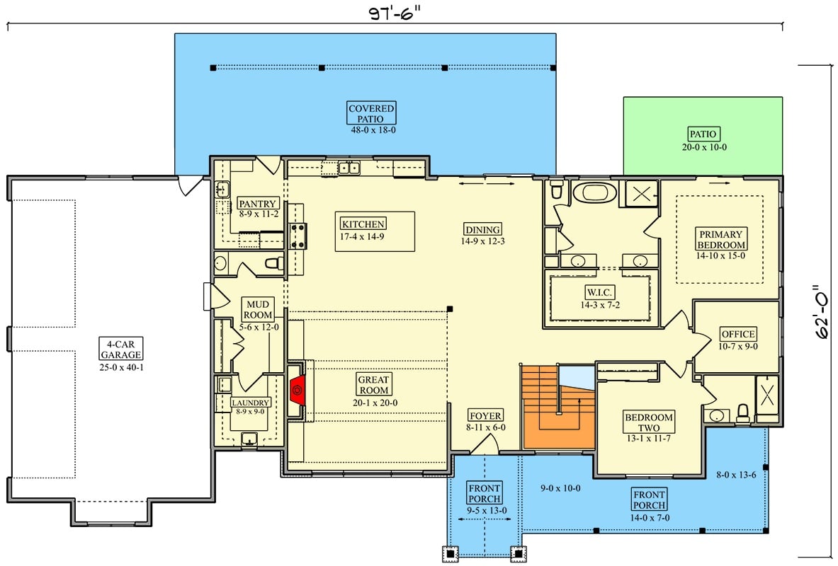
Main Level Floor Plan

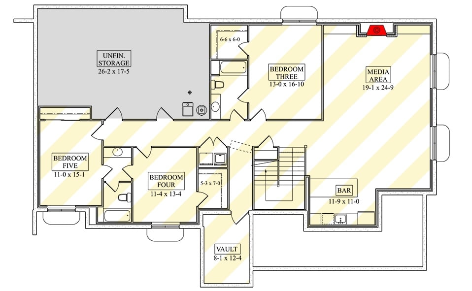
Lower Level Floor Plan

Front-Left View

Rear View

Covered Patio

Foyer

Great Room

Foyer

Kitchen

Great Room

Great Room

Dining Area and Kitchen

Primary Bedroom

Primary Bathroom

Mudroom

Basement

Study

Kitchenette

Details
This Hill Country modern home pairs rustic charm with clean contemporary design. The exterior showcases a sophisticated mix of stone and board-and-batten siding, unified by rich wood accents and dark trim that highlight its architectural depth. A welcoming front porch framed by timber posts adds a touch of traditional warmth, while the expansive covered patio at the back enhances outdoor living and entertaining.
Inside, the main level features an open and airy layout that flows seamlessly from room to room. The foyer leads into a vaulted great room centered around a fireplace, connecting effortlessly to the kitchen and dining areas. The kitchen includes a spacious island, a walk-in pantry, and direct access to the outdoor patio, creating a natural gathering space for family and guests.
The primary suite offers a private retreat with a luxurious bath, a large walk-in closet, and an adjacent office. A guest bedroom, full bath, and laundry room are conveniently located nearby, while a mudroom connects to the four-car garage for practical entry and storage.
The lower level extends the homeโs versatility with multiple living zones. A media area with a bar provides the perfect space for entertaining, while three additional bedrooms share access to well-appointed bathrooms. A large unfinished storage area offers flexibility for future customization, and a secure vault adds a functional touch.
Pin It!

Architectural Designs Plan 95323RW
