
🔥 Would you like to save this?
Specifications
- Sq. Ft.: 2,564
- Bedrooms: 3
- Bathrooms: 3
- Stories: 1
[su_spacer]
In order to come up with the very specific design ideas, we create most designs with the assistance of state-of-the-art AI interior design software. Also, assume links that take you off the site are affiliate links such as links to Amazon. this means we may earn a commission if you buy something.
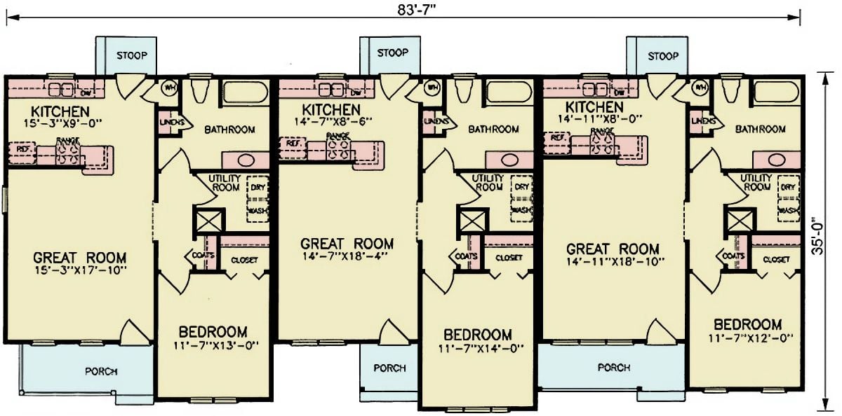
The Floor Plan

[su_spacer]
Front View

Front-Left View
Front-Right View

Left Elevation

Rear Elevation

[su_spacer]
Details
Smart design and everyday functionality come together in this single-story triplex offering a total of 2,564 square feet of heated living space. Designed for investors, rental properties, or multi-generational living, the plan features three private one-bedroom, one-bathroom units, each thoughtfully arranged for comfort and efficiency while maintaining attractive curb appeal.
Each residence varies slightly in size to accommodate different needs. Unit A provides 864 square feet of heated space with a 75-square-foot front porch, Unit B offers 859 square feet with a 30-square-foot porch, and Unit C includes 841 square feet along with a 77-square-foot porch. Inside, every unit features an open-concept great room, a full first-floor laundry area, a walk-in closet, and a private 21-square-foot rear stoop for added convenience and outdoor access.
The exterior showcases classic siding paired with a 7:12 pitch truss roof and 8-foot-1-inch ceiling heights, creating a clean, traditional profile. Spanning 83 feet 7 inches in width and built on a single level, this triplex is straightforward to construct, efficient to maintain, and well-suited for long-term investment potential.
Pin It!

Garrell Associates Plan ST25061
🔥 Would you like to save this?
Welcome to Your Dream Home: 2,456 Sq. Ft. with Optional Bonus Room and Floor Plan Included
Sq. Ft.: 2,456 | Bedrooms: 3 | Bathrooms: 3.5
The Forest Haven 3-Bedroom Modern Farmhouse for a Corner Lot with Bonus Room (Floor Plan)
Sq. Ft.: 1,580 | Bedrooms: 3 | Bathrooms: 2
3-Bedroom Traditional Home with RV Garage and Dual Porches (Floor Plan)
Sq. Ft.: 2,518 | Bedrooms: 3 | Bathrooms: 2.5
Introducing a 1,953 Sq. Ft. 3 Bedroom Home – See the Floor Plan That Brings It All Together
Sq. Ft.: 1,953 | Bedrooms: 3 | Bathrooms: 2

