
🔥 Would you like to save this?
Specifications
- Sq. Ft.: 2,027
- Bedrooms: 3
- Bathrooms: 3
- Stories: 2
Main Level Floor Plan

In order to come up with the very specific design ideas, we create most designs with the assistance of state-of-the-art AI interior design software. Also, assume links that take you off the site are affiliate links such as links to Amazon. this means we may earn a commission if you buy something.
Bonus Level Floor Plan

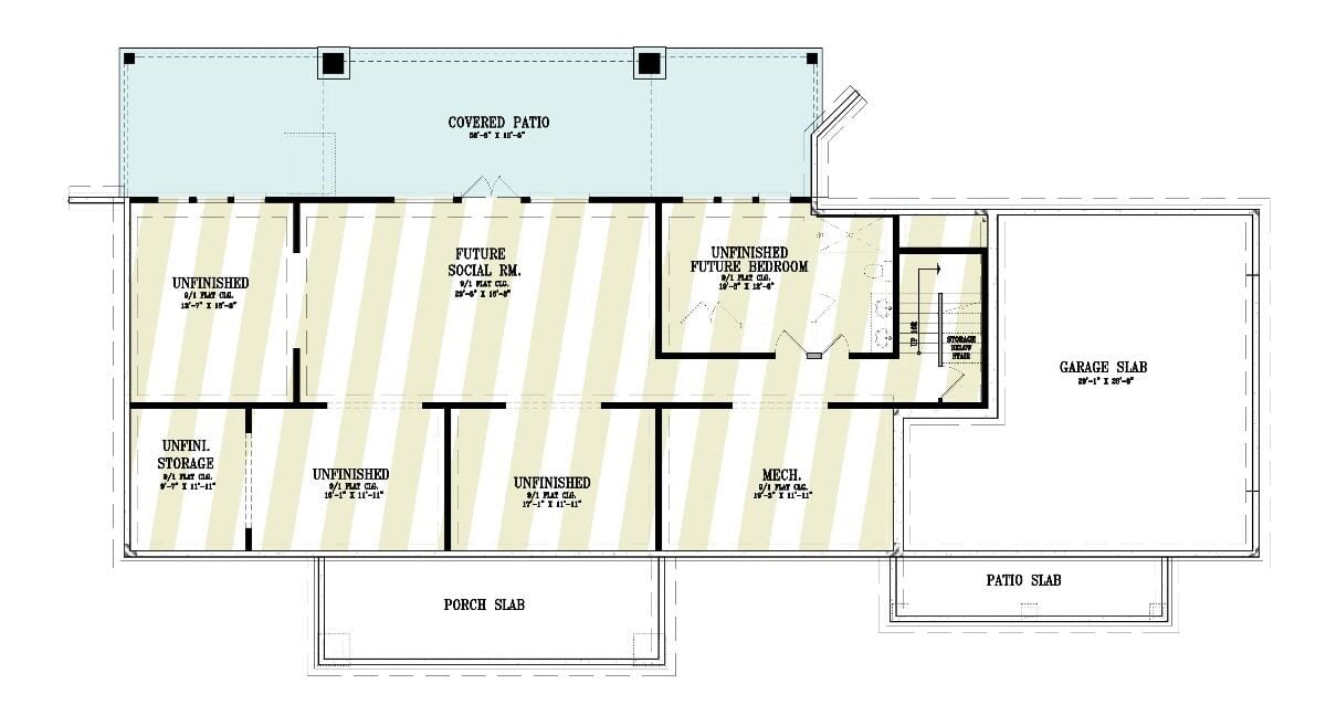
Lower Level Floor Plan
Front-Left View

Front-Right View

Rear View

Living Room

Living Room

Dining Area

Dining Area

Kitchen

Laundry Room

Primary Bedroom

Primary Bathroom
Primary Bathroom

Bonus Room

Bonus Room

Bonus Room

Details
This modern farmhouse showcases a strong, balanced exterior with dark siding, warm wood accents, and prominent gables that give the home a confident, refined presence. Exposed truss details highlight the covered porches, creating clear focal points along the front elevation. Large windows and multiple covered outdoor areas reinforce the home’s connection to everyday living while maintaining a clean, cohesive design.
The main level is organized around open, vaulted living and dining spaces that anchor the home. The kitchen sits at the center with an island and pantry, flowing directly into the dining and living areas for an easy, functional layout. Multiple covered porches extend off the main level, offering flexible outdoor space tied directly to the interior.
The owner’s suite is privately positioned and includes a spacious bedroom, dedicated bath, and walk-in closet. Two additional bedrooms are located on the opposite side of the plan and share a full bath, creating separation without disconnecting from the main living areas.
A bonus level adds adaptable space above, providing a large room that can serve as a recreation area, media room, or secondary living space. Storage areas are incorporated to keep the layout efficient and organized.
The lower level is designed with future flexibility in mind. It includes space allocated for a future social room, an additional bedroom, and extensive unfinished areas that allow for expansion or customization over time. A covered patio connects this level to the outdoors, completing a layout that balances immediate comfort with long-term adaptability.
Pin It!

Garrell Associates Plan A6813-A
