
🔥 Would you like to save this?
Specifications
- Sq. Ft.: 1,499
- Bedrooms: 3
- Bathrooms: 2
- Stories: 2
- Garage: 3
[su_spacer]
In order to come up with the very specific design ideas, we create most designs with the assistance of state-of-the-art AI interior design software. Also, assume links that take you off the site are affiliate links such as links to Amazon. this means we may earn a commission if you buy something.
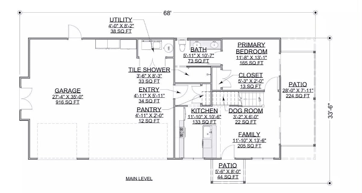
Main Level Floor Plan

Second Level Floor Plan

[su_spacer]
Front-Right View
Right-Rear View

Rear View

Aerial View

Covered Patio

Family Room

Family Room

Kitchen

Primary Bedroom

Primary Bathroom

Bedroom

[su_spacer]
Details
This barndominium-inspired home design delivers a crisp, modern look with a simple profile, clean white exterior, and bold dark roofing and window accents. A covered entry adds definition to the front elevation, while the oversized garage doors give the home a strong, practical presence that fits both residential living and everyday storage needs.
The main level is planned for easy living with an open kitchen and family room layout that keeps the core living space connected. The kitchen includes a center island for prep space and casual seating, along with a walk-in pantry for organized storage.
Nearby, a dedicated utility area supports laundry and day-to-day tasks without taking over the main living space. A separate dog room adds a unique feature for pet owners, keeping supplies and routines contained in one spot.
The primary bedroom is located on the main level for comfort and privacy, with a walk-in closet and a full bath close by. The layout also includes a convenient entry zone that connects the garage to the living areas, creating an easy transition for daily arrivals and storage.
The upper level provides additional flexible space with two secondary bedrooms, a full bathroom, and a large family room that can be used as a media space, game room, or second living area. Multiple attic areas offer extra storage and help keep the home organized without sacrificing living space.
Pin It!
The House Designers Plan THD-11902
🔥 Would you like to save this?
Welcome to This 2,722 Sq. Ft. 3 Bedroom Barndominium-Style Home (Check Out the Floor Plan)
Sq. Ft.: 2,722 | Bedrooms: 3 | Bathrooms: 2.5
3-Bedroom Barndominium-Style Grand Valley Home with Open Living Area and Walkout Basement (Floor Plan)
Sq. Ft.: 1,157 | Bedrooms: 3 | Bathrooms: 2.5
3-Bedroom Alderwood Barndominium with Loft and Wraparound Patio (Floor Plan)
Sq. Ft.: 2,577 | Bedrooms: 3 | Bathrooms: 2.5
Discover the Timeless Charm of This 3-Bedroom Craftsman-Style Family Home (2,227 Sq. Ft. Floor Plan Included)
Sq. Ft.: 2.227 Bedrooms: 3 Bathrooms: 2.5
3-Bedroom Rosaleen Barndominium with Loft and Wraparound Porch (Floor Plan)
Sq. Ft.: 2,178 | Bedrooms: 3 | Bathrooms: 2
