
🔥 Would you like to save this?
Specifications
- Sq. Ft.: 3,054
- Bedrooms: 3
- Bathrooms: 3.5
- Stories: 2
- Garage: 2
[su_spacer]
In order to come up with the very specific design ideas, we create most designs with the assistance of state-of-the-art AI interior design software. Also, assume links that take you off the site are affiliate links such as links to Amazon. this means we may earn a commission if you buy something.
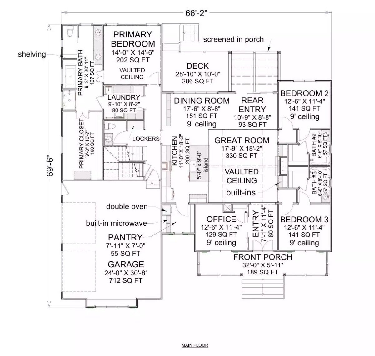
Main Level Floor Plan

Bonus Level Floor Plan

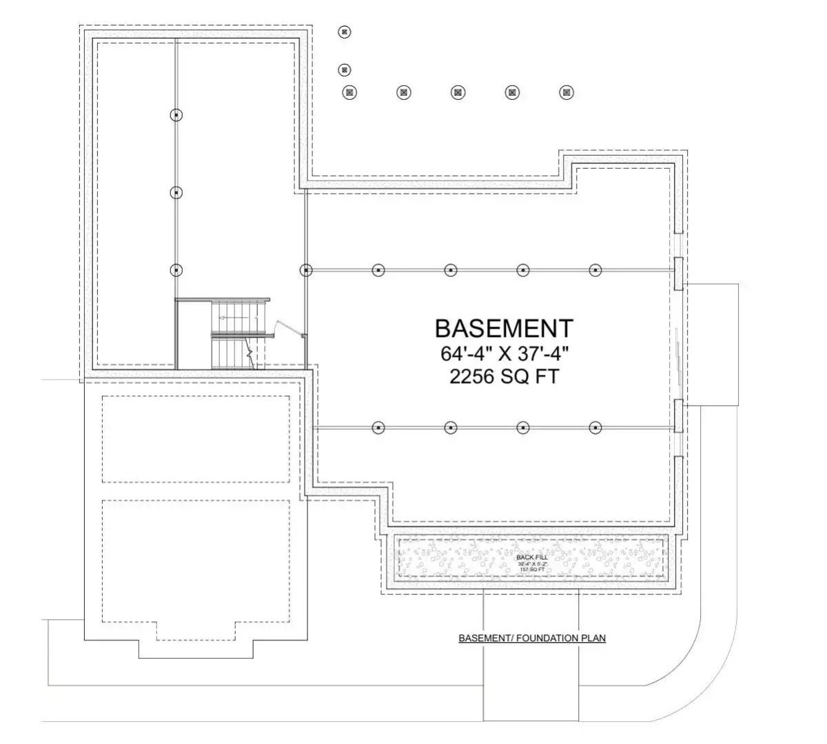
Unfinished Basement
[su_spacer]
Front-Right View

Right View

Rear-Right View

Left View

Front-Left View

Great Room

Great Room

Kitchen

Primary Bedroom

Primary Bathroom

[su_spacer]
Details
This 2,502-square-foot home features a well-planned open floor layout designed for comfortable everyday living. The L-shaped kitchen serves as the central hub, offering a large island, a peninsula with an eating bar, and a butler’s pantry that adds valuable storage and prep space.
A vaulted great room creates a bright and open atmosphere that flows directly into the dining area, making it ideal for both family meals and entertaining. The primary bedroom is located on the main floor and includes a walk-in closet, double vanity, and a separate tub and shower for added privacy and comfort.
Additional bedrooms offer flexibility for guests, family members, or a home office, while a bonus room and first-floor laundry enhance functionality. Outdoor living is supported by a covered front porch, rear deck, and a screened porch or sunroom, providing multiple options for relaxing and enjoying the outdoors.
Pin It!
The House Designers Plan THD-11905
