
🔥 Would you like to save this?
Specifications
- Sq. Ft.: 3,054
- Bedrooms: 3
- Bathrooms: 3.5
Floor Plan

In order to come up with the very specific design ideas, we create most designs with the assistance of state-of-the-art AI interior design software. Also, assume links that take you off the site are affiliate links such as links to Amazon. this means we may earn a commission if you buy something.
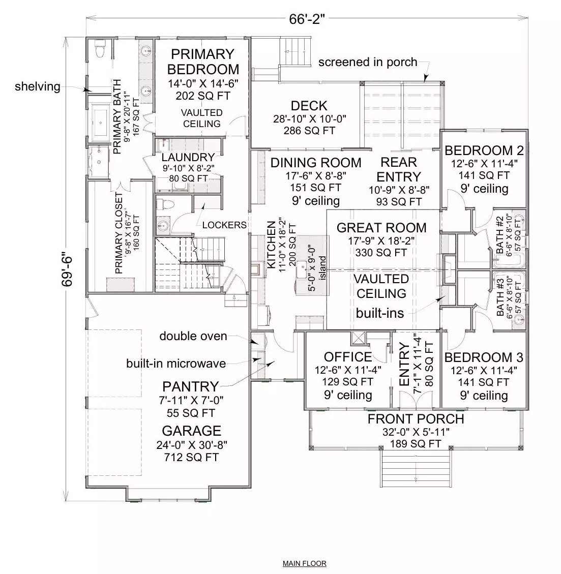
This main floor layout reveals three bedrooms clustered on the right side, each with private bath access. The primary bedroom suite occupies the upper left corner with vaulted ceiling and dedicated bath. The great room anchors the center with vaulted ceiling and built-ins, flowing into the dining room and deck. A spacious kitchen connects to the rear entry, laundry, and pantry with garage access.
Floor Plan

The bonus level displays a generous 430-square-foot open space with 8-foot ceilings measuring 13’6″ by 28’8″. A bathroom with shower sits adjacent to the stairs. Storage areas line the upper right corner. The layout maximizes flexibility for recreation, guests, or office use.
Trend Alert: Bonus rooms above garages have surged in popularity as homeowners seek flexible square footage without expanding their property footprint. The 8-foot ceiling height keeps construction costs manageable while still providing comfortable headroom for most activities.
Floor Plan
Basement foundation plan displays a large open area measuring 2256 square feet with structural column placements throughout. Stairs descend from upper level, with back fill area noted along the rear perimeter wall.
White Board-and-Batten Farmhouse with Steep Gable and Attached Garage

White vertical siding covers the exterior walls. Dark gray shutters frame windows on both levels. A steep gabled roofline creates dramatic angles. Black mulch borders define landscaping beds. Ornamental grasses and rounded shrubs soften the foundation. A two-car garage with dark doors anchors the left side. A covered porch extends from the right wing.
Vaulted Living Room with Stacked Stone Fireplace and Custom Built-ins

Brown leather sofas surround a wooden coffee table. Navy blue cabinets flank a stone fireplace with wood mantel beneath a mounted television.
Open-Concept Kitchen with Navy Island and White Marble Countertops

Navy blue base cabinets contrast with white upper cabinetry and marble-topped island. Wood flooring extends throughout the open layout connecting kitchen to dining area.
Canopy Bed Frame with Geometric Black Metal and Upholstered Headboard

Black metal canopy frames a bed with pale gray upholstered panels and cream bedding. Natural wood bench sits at the foot. Cork-toned flooring anchors the space beneath a textured area rug.
Spa-Inspired Master Bathroom with Freestanding Tub and Glass Shower

Soft gray walls create a calming backdrop for dark charcoal tile flooring arranged in a diagonal pattern. A freestanding white soaking tub sits beneath a horizontal window offering garden views. Glass-enclosed shower features clean white subway tile. Navy vanity cabinetry anchors the far wall with integrated mirror and generous counter space. A floating wood shelf provides organic warmth above the tub alcove.
History Corner: Built-in bathtubs dominated American bathrooms throughout the mid-20th century, making freestanding tubs a luxury reserved for Victorian-era homes. The freestanding tub resurged in popularity during the 2000s as homeowners sought hotel-inspired spa retreats, turning the functional fixture into a sculptural centerpiece.
Pin It

A modern farmhouse exterior features crisp white board-and-batten siding with contrasting dark trim and a welcoming front porch. Below, the main floor plan reveals a 3-bedroom layout spanning 66 feet wide, with a primary suite featuring vaulted ceilings, a great room with built-ins, and a spacious deck off the dining area.
