
Would you like to save this?
Specifications
- Sq. Ft.: 3,395
- Bedrooms: 4
- Bathrooms: 3.5
- Stories: 2
- Garage: 3
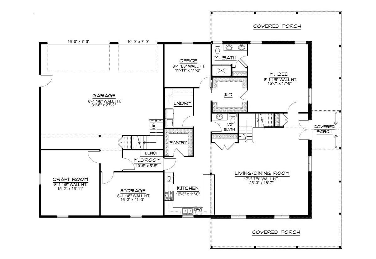
Main Level Floor Plan

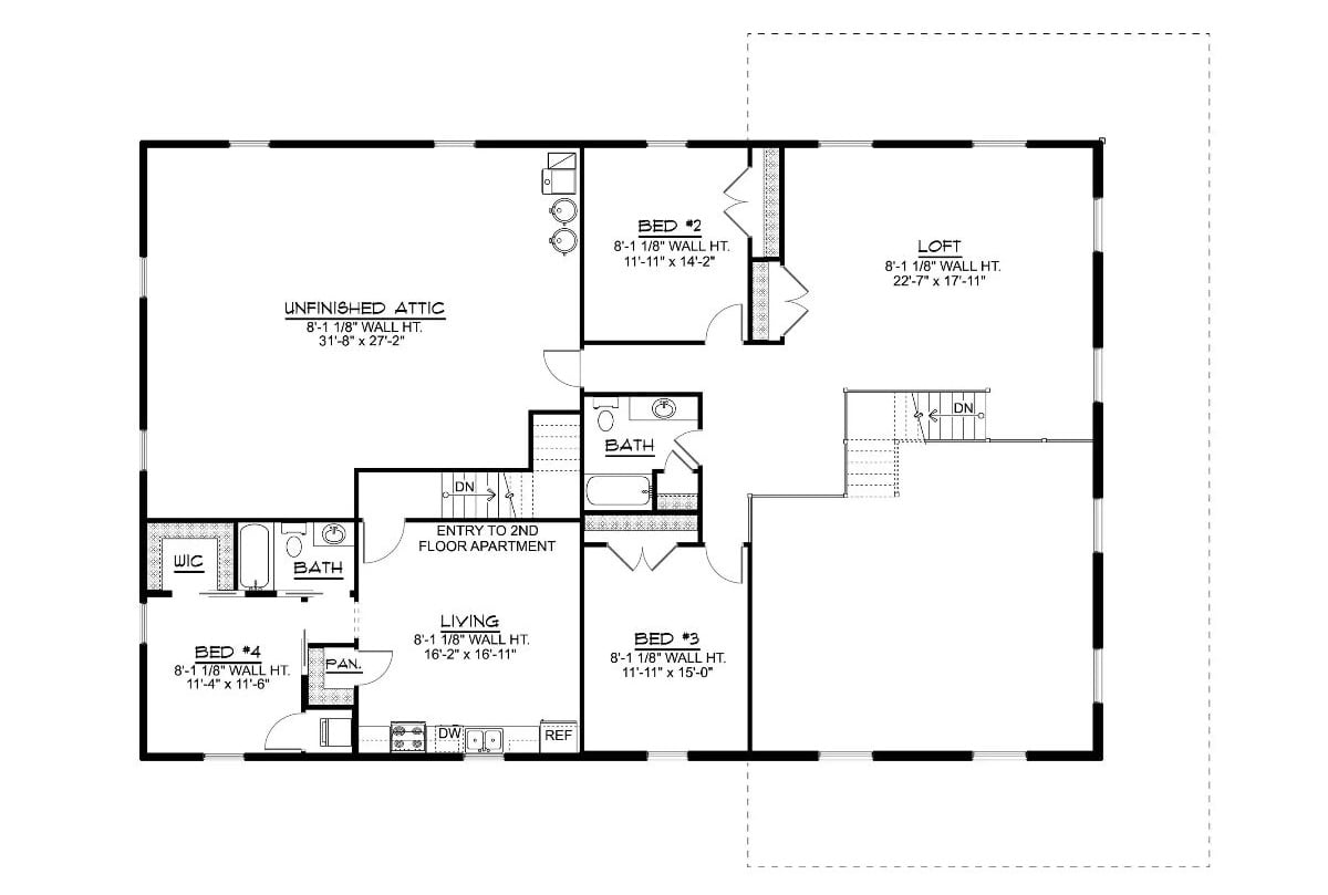
Second Level Floor Plan

๐ฅ Create Your Own Magical Home and Room Makeover
Upload a photo and generate before & after designs instantly.
ZERO designs skills needed. 61,700 happy users!
๐ Try the AI design tool here
Front-Right View

Rear-Right View

Front-Left View

Wraparound Porch

Would you like to save this?
Front View

Entry and Living Room

Dining Area and Kitchen

Kitchen

Kitchen

Living Room

Living Room

Loft

๐ฅ Create Your Own Magical Home and Room Makeover
Upload a photo and generate before & after designs instantly.
ZERO designs skills needed. 61,700 happy users!
๐ Try the AI design tool here
Loft

Loft

Primary Bedroom

Primary Bedroom

Primary Bedroom

Would you like to save this?
Primary Bathroom

Primary Bathroom

Bedroom

Bedroom

Bedroom

Details
This barndominium home pairs a clean, modern profile with a long covered porch that creates an inviting front approach and adds usable outdoor space on multiple sides. A large garage takes up one wing of the home, giving the layout a practical, workshop-ready feel without taking away from the living area.
Inside, the main level is organized for everyday comfort, with a combined living and dining space that stays open to the kitchen for easy flow. A walk-in pantry sits near the kitchen, while a nearby mudroom and laundry area help keep daily routines organized.
The primary bedroom is privately placed and includes a walk-in closet and a full bath. An office adds flexible space for remote work or hobbies.
Upstairs expands the homeโs versatility with multiple bedrooms, a shared bath, and a large loft for extra living space. A separate living area with its own kitchen setup creates strong potential for a second-floor apartment or guest suite, while unfinished attic space offers room to grow or store seasonal items.
Pin It!

The House Designers Plan THD-12180
