
🔥 Would you like to save this?
Specifications
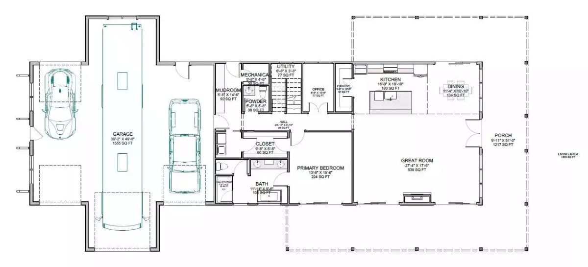
- Sq. Ft.: 2,671
- Bedrooms: 4
- Bathrooms: 2.5
Floor Plan

In order to come up with the very specific design ideas, we create most designs with the assistance of state-of-the-art AI interior design software. Also, assume links that take you off the site are affiliate links such as links to Amazon. this means we may earn a commission if you buy something.
The main floor centers on a great room, kitchen, dining area, and porch across the right wing. The left side holds a primary bedroom with a bath and closet, plus a mudroom, powder room, office, and utility spaces connecting to a three-car garage.
Floor Plan

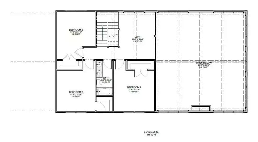
The upper level holds four bedrooms, a loft, and one shared bath. Bedrooms 2 and 3 anchor the left side. An open-below section occupies 851 square feet on the right, with stair access centered between zones.
Floor Plan
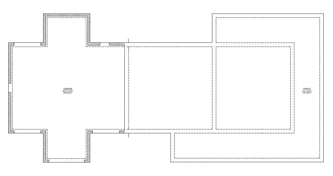
A large garage anchors the left side, with a central living zone and a wraparound porch spanning the right. Four bedrooms and a loft fill the main structure, offering clear circulation between living, sleeping, and outdoor spaces.
In The Details: Garage square footage clocks in at 1,576 square feet, which is substantial enough to house three vehicles alongside workshop or storage space. Paired with a 1,277-square-foot wraparound porch, outdoor living gets equal billing with interior square footage. That balance is a hallmark of barndominium-style design.
Dark Siding and Timber Posts Frame an Outdoor Living Space Built for Real Use

Board-and-batten siding in charcoal pairs with wood posts supporting a wide covered porch fitted with Adirondack chairs and mature shrub landscaping.
Board-and-batten siding in charcoal pairs with wood posts supporting a wide covered porch fitted with Adirondack chairs and mature shrub landscaping.
Soaring Ceilings and a Stone Fireplace Define the Heart of This Barndominium Great Room

Exposed dark timber beams run across the vaulted ceiling above white shiplap walls. Floor-to-ceiling black-framed sliding doors flood the space with natural light. Marble surrounds an arched fireplace opening below a wood mantel. Light hardwood flooring anchors the gray sectional and accent chairs arranged around a glass coffee table.
Common Mistake: Mounting a television directly above a fireplace forces viewers to crane their necks upward, which causes neck strain over time and exposes the screen to heat damage. A better placement puts the TV on an adjacent wall at eye level from the seating position.
Clerestory Windows and a Dark Island Give This Kitchen Serious Architectural Weight

Four gray bucket stools line a dark slate island topped with white quartz. Double-wall ovens flank the range, while a matching hood anchors the backsplash wall. Herringbone tile, stainless appliances, and wood plank flooring keep the palette grounded.
History Corner: Barndominiums trace their roots to agricultural buildings repurposed as living spaces across rural Texas and the Midwest during the late 20th century. Builders adapted steel post-and-beam framing originally designed for livestock facilities, which made large open floor plans with double-height ceilings structurally straightforward and cost-effective to achieve.
Dark Wood and Mountain Art Ground This Bedroom in Natural Character

Espresso-finished wood defines the sleigh bed, with cross-pattern detailing on both the headboard and footboard. White bedding keeps the palette from going heavy. Two nightstands carry matching lamps with glass bases. Floating box shelves in white break up the gray wall. Hardwood floors run beneath a low-pile area rug.
Fun Fact: Sleigh beds originated in early 19th-century Europe, inspired by horse-drawn sleighs popular during the Napoleonic era. The curved or scrolled headboard and footboard design remained fashionable through American Victorian interiors and has since made a strong comeback in farmhouse and barndominium-style homes where wood craftsmanship takes center stage.
Patterned Tile and Matte Black Fixtures Carry This Shower From Functional to Considered

Geometric mosaic tile climbs the shower walls in soft gray with dark accent squares, anchored by a matte black rain head and slide bar. Hexagonal marble floor tile extends into the main space. Glass panels keep sight lines open. A round towel ring, single-hole faucet, and soap dispenser maintain the hardware finish throughout.
Why It Works: Matte black fixtures resist fingerprints and water spots better than polished chrome, making them a practical choice in high-humidity spaces like showers. Consistency across every hardware piece, from the towel ring to the faucet base, gives a bathroom visual cohesion without requiring expensive materials.
Vaulted Loft Sitting Area Floats Above the Main Floor on Open Cable Rails

Cable railing on a loft this open makes the floor below feel like part of the room.
Wood-plank ceiling panels run between dark beams overhead. Two white chairs flank a wire-leg table near black-framed windows that pull in tree views from multiple angles.
Pin It

Outside, dark vertical siding and timber posts define a barndominium with serious presence. Below, the first-floor plan reveals a primary bedroom suite, great room, kitchen, dining area, office, and an attached garage measuring over 1,500 square feet, with stairs leading to an upper loft level.
