
Would you like to save this?
Specifications
- Sq. Ft.: 1,881
- Bedrooms: 3
- Bathrooms: 2.5
- Stories: 1
- Garage: 4
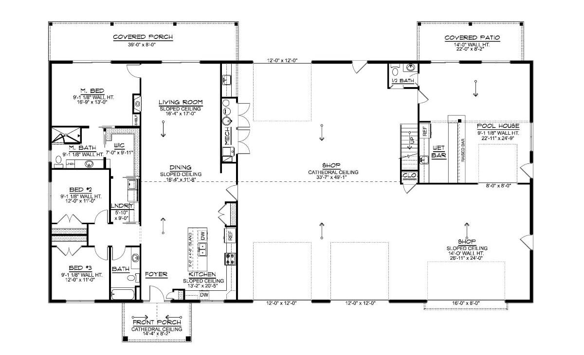
The Floor Plan

Front View

๐ฅ Create Your Own Magical Home and Room Makeover
Upload a photo and generate before & after designs instantly.
ZERO designs skills needed. 61,700 happy users!
๐ Try the AI design tool here
Right View

Left View

Rear View

Pool Area

Would you like to save this?
Covered Patio

Living Room

Living Room

Dining Area

Kitchen

Primary Bedroom

Details
This modern ranch design blends clean farmhouse style with an oversized garage presence, featuring bright siding, bold dark roofing, and a covered entry that adds character without overcomplicating the exterior. Multiple garage doors stretch across the front for a strong, functional look that supports storage, hobbies, and everyday parking.
Inside, the home is planned with the main living spaces grouped together for easy flow. The kitchen, dining area, and living room connect in an open layout with sloped ceilings that help the space feel larger and more comfortable. A central island anchors the kitchen and keeps the layout efficient for prep, serving, and casual meals, while access to the covered porch extends the living space outdoors.
The private living wing includes a primary bedroom with a walk-in closet and en-suite bath, along with two additional bedrooms and a shared full bathroom. A laundry room is placed nearby to support daily routines without disrupting the main living area.
A major highlight of the plan is the expanded shop and pool house zone, designed as a multi-purpose space for projects, entertaining, and storage. A wet bar and half bath add convenience, while the covered patio creates a natural gathering spot connected to the shop area.
Pin It!

The House Designers Plan THD-11913
