
Would you like to save this?
Specifications
- Sq. Ft.: 2,318
- Bedrooms: 3
- Bathrooms: 2.5
- Stories: 1
- Garage: 2
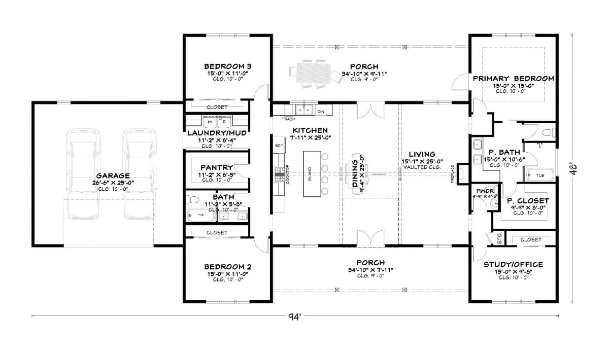
The Floor Plan

Front-Left View

๐ฅ Create Your Own Magical Home and Room Makeover
Upload a photo and generate before & after designs instantly.
ZERO designs skills needed. 61,700 happy users!
๐ Try the AI design tool here
Front-Right View

Left View

Right View

Rear View

Would you like to save this?
Living Room and Dining Area

Kitchen

Primary Bedroom

Primary Bedroom

Primary Bedroom

Primary Bedroom

Primary Bedroom

Covered Patio

๐ฅ Create Your Own Magical Home and Room Makeover
Upload a photo and generate before & after designs instantly.
ZERO designs skills needed. 61,700 happy users!
๐ Try the AI design tool here
Details
This ranch-style home features bright siding, bold gables, and a long covered front porch that creates a clean, welcoming look. Dark trim and a matching garage door add contrast and keep the design crisp and updated.
Inside, the home centers around an open kitchen, dining area, and living room, creating an easy layout for daily routines and entertaining. The kitchen includes a large island and a walk-in pantry, with the main living space opening directly to the front porch for relaxed indoor-outdoor flow.
The primary suite is set on the right side of the home and includes a private bath and a walk-in closet. A study offers a quiet space for working from home or handling daily tasks, along with a convenient powder room for guests.
Two secondary bedrooms are positioned on the opposite side of the plan and share a full bathroom. The laundry and mudroom area sits near the garage entry, giving the home a practical drop zone and added storage right where itโs needed most.
Pin It!

The House Designers Plan THD-12152
