
🔥 Would you like to save this?
Specifications
- Sq. Ft.: 1,674
- Bedrooms: 3
- Bathrooms: 2.5
Floor Plan

In order to come up with the very specific design ideas, we create most designs with the assistance of state-of-the-art AI interior design software. Also, assume links that take you off the site are affiliate links such as links to Amazon. this means we may earn a commission if you buy something.
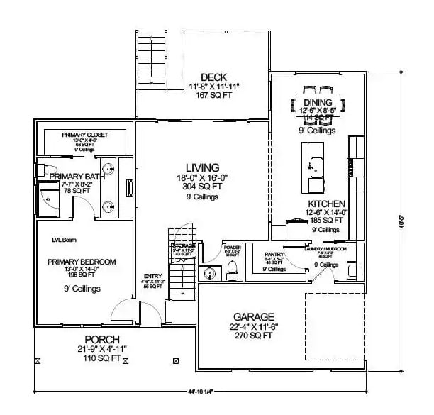
The main floor places the living room at the center, with the kitchen, dining, and garage to the right and the primary bedroom suite to the left. A front porch, rear deck, and storage areas round out the layout.
Floor Plan

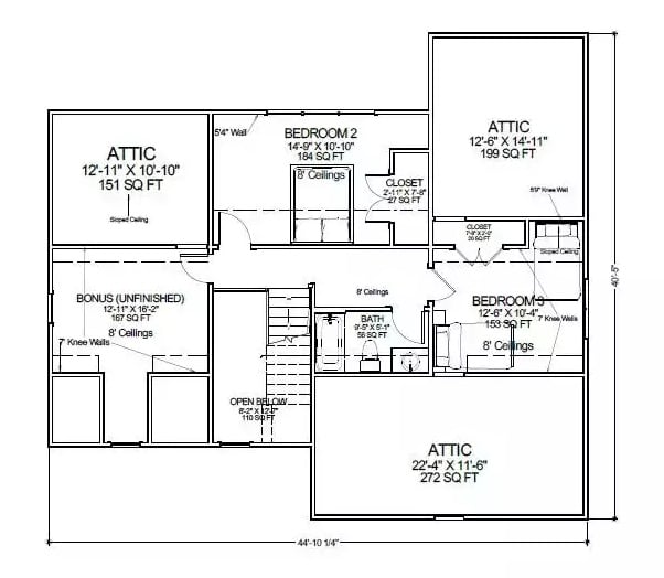
Upper level holds two bedrooms, a shared bath, and an unfinished bonus room. Attic storage wraps three sides. Closets flank each bedroom, and an open stairwell connects to the floor below.
Warm Wood Floors and Built-In Shelves Anchor This Open Living Space
Light hardwood flooring runs wall to wall. Open wood shelves flank a white brick fireplace with a mounted TV above and a ceiling fan overhead.
- Recessed lighting keeps the ceiling clean and uncluttered
- Wood-tone shelves add warmth without heavy cabinetry
- A floor vent signals solid HVAC placement for year-round comfort
Sage Green Cabinets and a Wood Island Make This Kitchen Worth Remembering

Sage green shaker cabinets pair with brass hardware and a patterned tile backsplash. Natural wood tones on the island contrast with white quartz countertops. Glass pendant lights and stainless steel appliances complete the palette.
Worth Knowing: Painting upper and lower cabinets the same color while using a contrasting wood tone on the island is a practical way to add visual depth without committing to two full cabinet colors. Sage green has held strong as a kitchen color choice because it reads as neutral against both warm wood floors and cool white countertops. Brass hardware ties the warm and cool elements together without demanding attention on its own.
Moving from the kitchen, the bedrooms offer their own sense of calm and practicality worth examining closely.
Double Closet Doors and Natural Light Define This Bedroom’s Simple Appeal

Bare hardwood floors in pale oak, beige walls, a white ceiling fan, and double panel closet doors keep this bedroom clean and unfussy.
Gold Hardware and a Round Mirror Give This Bathroom Its Polished Character

Blush walls, marble-look floors, and brass fixtures pair with white cabinetry and an ornate mirror.
Pro Tip: Ornate mirrors with decorative frames work particularly well in bathrooms because they add personality without requiring extra wall space. Brushed brass or antique gold finishes tie the mirror to other metal accents like faucets and cabinet pulls, creating a cohesive look across the room.
Iron Balusters and Wood Treads Carry This Staircase From Bottom to Top

Dark iron balusters rise from wood treads with white risers, framed by a square newel post. A wood handrail runs the full length. Hardwood floors extend into the open living area beyond.
Editor’s Note: Metal balusters paired with wood railings have become a popular alternative to all-wood spindles because they require less maintenance and resist warping over time. Powder-coated iron holds its finish well in high-traffic areas like stairways.
Polished Concrete and White Walls Keep This Two-Car Garage Clean and Functional

Polished concrete floors show natural variation in tone across the slab. White walls stay bare, keeping the space open for two vehicles or a workshop setup. Fluorescent strip lights run along the ceiling near the garage door opener. A door off the side wall leads into the home’s interior. An electrical panel sits mounted just inside that entry.
Designer’s Secret: Sealing a concrete garage floor not only makes it easier to clean but also reduces dust that bare concrete sheds over time. A penetrating sealer works into the surface rather than sitting on top, so it won’t peel or flake under the weight of vehicles. Most homeowners can apply it in a single afternoon without professional help.
Composite Decking and Black Metal Rails Frame a Wooded Backyard View

Two outbuildings sit in a cleared yard edged by trees holding their last autumn leaves. Composite deck boards in warm tan run the full width of the space. Black metal railings with vertical balusters wrap three sides, with a gate centered at the steps.
Style Tip: Composite decking costs more upfront than pressure-treated wood but holds up far better against moisture, UV exposure, and foot traffic over time. Most composite products require little more than occasional soap and water to stay clean. Pairing them with powder-coated aluminum or steel railings keeps maintenance low across the entire deck system.
Pin It

Exterior photo shows a country-style home with board-and-batten siding, a covered front porch, and dormer windows above. Below, the first-floor plan reveals a primary bedroom suite, open living and kitchen layout, attached garage, mudroom, pantry, and staircase leading to upper-level bonus space.
