
🔥 Would you like to save this?
Specifications
- Sq. Ft.: 3,183
- Bedrooms: 3
- Bathrooms: 3
- Stories: 2
- Garage: 2
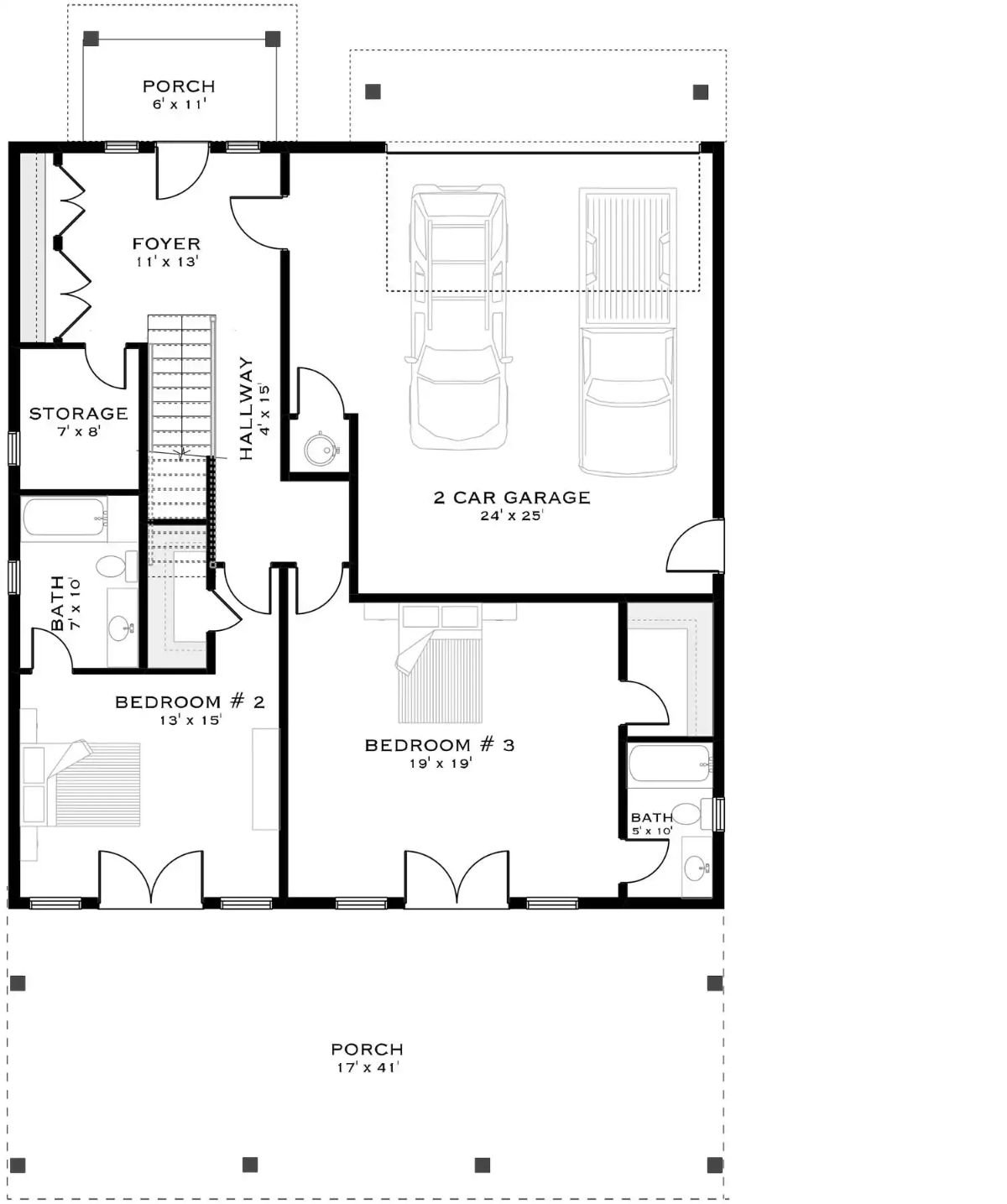
Main Level Floor Plan

In order to come up with the very specific design ideas, we create most designs with the assistance of state-of-the-art AI interior design software. Also, assume links that take you off the site are affiliate links such as links to Amazon. this means we may earn a commission if you buy something.
Second Level Floor Plan

Front View
Rear-Right View

Rear-Left View

Front-Left View

Front-Right View

Dining Area

Kitchen

Details
This contemporary home features a clean, modern exterior with strong horizontal lines, mixed materials, and a balanced two-story profile that feels both current and practical. The design emphasizes simplicity and structure, creating a polished look without unnecessary detail.
The ground level is arranged with two additional bedrooms, each with convenient access to a bathroom, making it comfortable for family or guests. A central hallway connects the rooms to the foyer and garage, keeping circulation simple and efficient. Covered porches on both levels add flexibility and reinforce the home’s focus on functional indoor-outdoor living.
The upper level centers on a large open great room that brings together the kitchen, dining area, and living space for easy everyday living and entertaining. The kitchen is positioned to stay connected to the entire space, while wide openings lead directly to the rear deck, extending the living area outdoors.
A private primary bedroom is tucked just off the main living space and includes an ensuite bathroom and a generous closet. A combined pantry and laundry area, along with a powder room, supports daily routines without interrupting the flow.
Pin It!

The House Designers Plan THD-12223
