
🔥 Would you like to save this?
Specifications
- Sq. Ft.: 2,392
- Bedrooms: 4
- Bathrooms: 2.5
- Stories: 2
- Garage: 2
[su_spacer]
In order to come up with the very specific design ideas, we create most designs with the assistance of state-of-the-art AI interior design software. Also, assume links that take you off the site are affiliate links such as links to Amazon. this means we may earn a commission if you buy something.
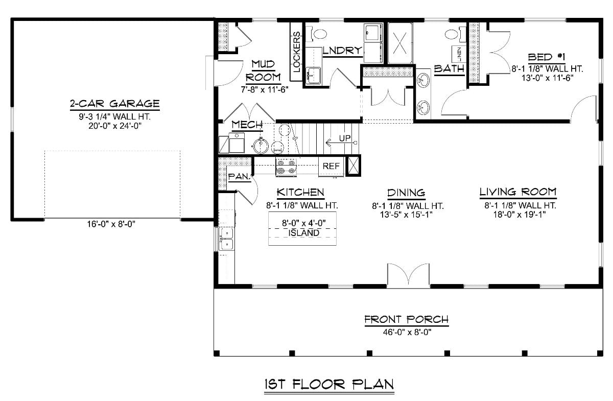
Main Level Floor Plan

Second Level Floor Plan

[su_spacer]
Front View
Rear-Left View

Rear-Right View

Aerial View

Living Room

Dining Area

Kitchen

Kitchen

Bedroom

Bathroom

[su_spacer]
Details
This classic two-story farmhouse design delivers a timeless exterior with clean lines, a metal roof, and wide covered porches on both levels that create a strong indoor-outdoor connection. The attached two-car garage is set slightly apart, giving the front elevation a balanced look while keeping parking and storage convenient.
Inside, the first floor centers around an open living room, dining area, and kitchen, creating a simple layout that works well for daily routines and casual hosting. The kitchen includes a large island, a walk-in pantry, and direct access to the mudroom, where lockers and storage help keep everything organized.
A full laundry room and mechanical space sit nearby for added efficiency, while a main-level bedroom and full bath offer flexibility for guests or single-level living needs.
Upstairs, the second floor is arranged around a central loft that works well as a play space, reading area, or second living room. Three additional bedrooms share a full bathroom, giving the upper level a practical setup for family living. The upstairs porch adds another outdoor option, creating a relaxed spot to unwind while keeping the main gathering spaces uncluttered.
Pin It!

The House Designers Plan THD-12175
🔥 Would you like to save this?
Two-Story 4-Bedroom Farmhouse for a Narrow Lot with a Loft (Floor Plan)
Sq. Ft.: 2,001 | Bedrooms: 4 | Bathrooms: 3.5
Experience the Elegance of The Blarney Farmhouse: A 3,102 Sq. Ft. 4-Bedroom Home with a Balcony and Bonus Room (Explore This Floor Plan)
Sq. Ft.: 3,102 | Bedrooms: 4 | Bathrooms: 3.5
Unveiling this 4-Bedroom Floor Plan Featuring a Gallery, Lodge Room and Optional Walkout Basement
Sq. Ft.: 3,231 Bedrooms: 3-4 Bathrooms: 3.5-4.5

