
🔥 Would you like to save this?
Specifications
- Sq. Ft.: 2,399
- Bedrooms: 3-4
- Bathrooms: 3.5
- Stories: 2
- Garage: 2
[su_spacer]
In order to come up with the very specific design ideas, we create most designs with the assistance of state-of-the-art AI interior design software.
Main Level Floor Plan

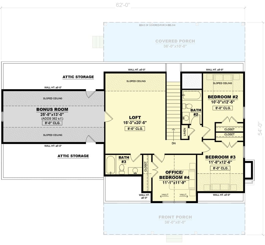
Second Level Floor Plan

Front Garage Option
[su_spacer]
Right View

Left View

Rear View

Living Room

Living Room

Kitchen

[su_spacer]
Details
This inviting farmhouse offers 2,399 square feet of well-designed living space with three to four bedrooms, three full bathrooms, and one half bath, along with a convenient two-car garage. From the moment you enter, the home feels warm and welcoming, with a foyer that leads naturally into an open-concept layout.
The kitchen anchors the main level and flows seamlessly into the dining and living areas, making the space ideal for both everyday living and entertaining. An island adds functionality for casual meals and prep, while the connected dining and living spaces create a comfortable central gathering area.
The primary suite is located on the main floor and serves as a private retreat, complete with a generous walk-in closet and a well-appointed bathroom, set apart from the secondary bedrooms for added privacy.
Upstairs, a flexible loft provides space for a reading area or home office, along with two additional bedrooms and a shared full bathroom. Outdoor living is enhanced by a covered front porch, perfect for relaxing mornings.
The plan also includes an optional finished bonus room and the option for an additional office or bedroom on the second floor, offering plenty of opportunities for future customization.
Pin It!

Architectural Designs Plan 810056RBT
🔥 Would you like to save this?
4-Bedroom Modern Farmhouse with Bonus Room and Double Garage (Floor Plan)
Sq. Ft.: 1,599 | Bedrooms: 2-4 | Bathrooms: 2-3
Explore This Striking 4,377 Sq. Ft. Two-Story 4-Bedroom Modern Farmhouse with Open Living Area and Covered Patio (Includes Floor Plan)
Sq. Ft.: 4,377 | Bedrooms: 4 | Bathrooms: 3.5+
4-Bedroom Two-Story The Paxton Farmhouse for a Narrow Lot with Bonus Room (Floor Plan)
Sq. Ft.: 2,766 | Bedrooms: 4 | Bathrooms: 3.5
Step Inside This 2,397 Sq. Ft. 4 Bedroom Farmhouse with a Bonus Room & Sun Tunnel (Floor Plan Included)
Sq. Ft.: 2,397 | Bedrooms: 4 | Bathrooms: 3
4-Bedroom Modern Farmhouse with Rear and Front Porch (3,052 Sq. Ft. Floor Plan)
Sq. Ft.: 3,052 | Bedrooms: 4 | Bathrooms: 4
