
🔥 Would you like to save this?
Specifications
- Sq. Ft.: 3,190
- Bedrooms: 4
- Bathrooms: 2.5
Floor Plan

In order to come up with the very specific design ideas, we create most designs with the assistance of state-of-the-art AI interior design software. Also, assume links that take you off the site are affiliate links such as links to Amazon. this means we may earn a commission if you buy something.
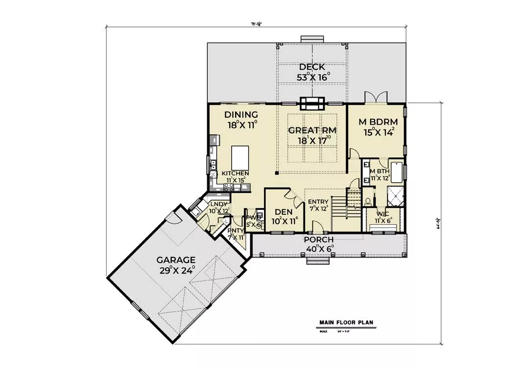
Main floor shows angled garage, wraparound porch leading to entry, den, great room connecting to dining and kitchen, plus master suite.
Floor Plan

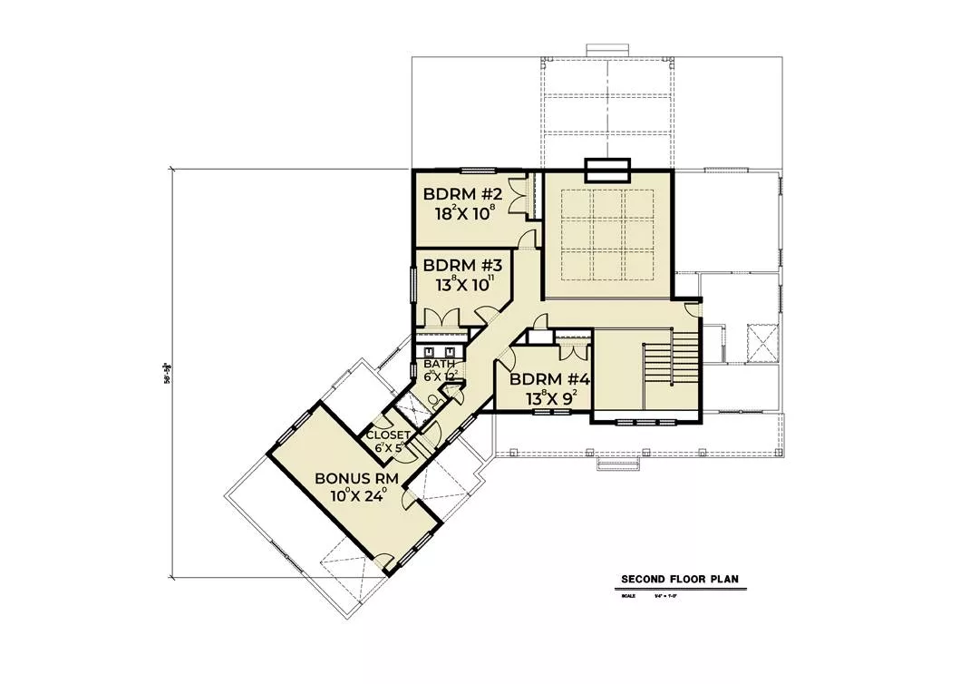
Second floor features four bedrooms clustered around a central hall with shared bath access. Bonus room sits angled at corner. Open loft overlooks first level below. Closets and storage space flank bedroom entries for efficient organization.
Two-Story Foyer with Dark Wood Staircase and Custom Entry Door
Gray walls complement dark wood posts and railings along the carpeted staircase. Rich wood flooring extends throughout the foyer. Natural light floods through transom windows above the handcrafted entry door.
Farmhouse Living Room with Shiplap Fireplace and Vaulted Ceilings

White shiplap surrounds the corner fireplace anchoring this living room. Dark wood floors contrast with pale walls. A gray sectional sits on a patterned rug facing the fireplace. A large farmhouse clock hangs beside decorative ladders and a piano.
Corner Fireplace Placement
Positioning the fireplace in the corner rather than centered on a wall maximizes usable floor space and allows for better furniture arrangement. The white shiplap surround extends from floor to ceiling, drawing the eye upward and emphasizing the height of the vaulted space. This placement creates two distinct zones within the open layout, with the television mounted above the mantel and the piano occupying the adjacent wall without crowding the room.
Open Dining Area with Sliding Glass Doors to Covered Patio

Natural wood dining table seats six on ladder-back chairs beneath a candle-style chandelier. Laminate flooring extends throughout. Stainless steel refrigerator anchors the kitchen zone. Large sliding doors frame views of the backyard.
Kitchen with White Shaker Cabinets and Black Granite Island

Crisp white cabinetry spans the perimeter, topped with black granite counters. A dark gray island seats four on metal stools. Industrial pendant lights hang above. Stainless steel appliances include a double oven and French door refrigerator. Wood-look vinyl flooring runs throughout the space.
Master Bedroom with French Doors Opening to Backyard Patio

Soft blue walls frame a bedroom with dark hardwood floors and French doors leading outdoors. Gray curtains complement the neutral bedding and white shiplap headboard.
Aerial View of Country Home with Wraparound Driveway and Acreage

The home sits on expansive property surrounded by evergreen forests and open fields. A circular driveway provides ample parking space. The dark roof contrasts with light siding. A detached play area occupies the side yard near manicured lawn sections.
Pin It

