
Would you like to save this?
Specifications
- Sq. Ft.: 4,608
- Bedrooms: 4
- Bathrooms: 3.5
- Stories: 2
- Garage: 5
Main Level Floor Plan

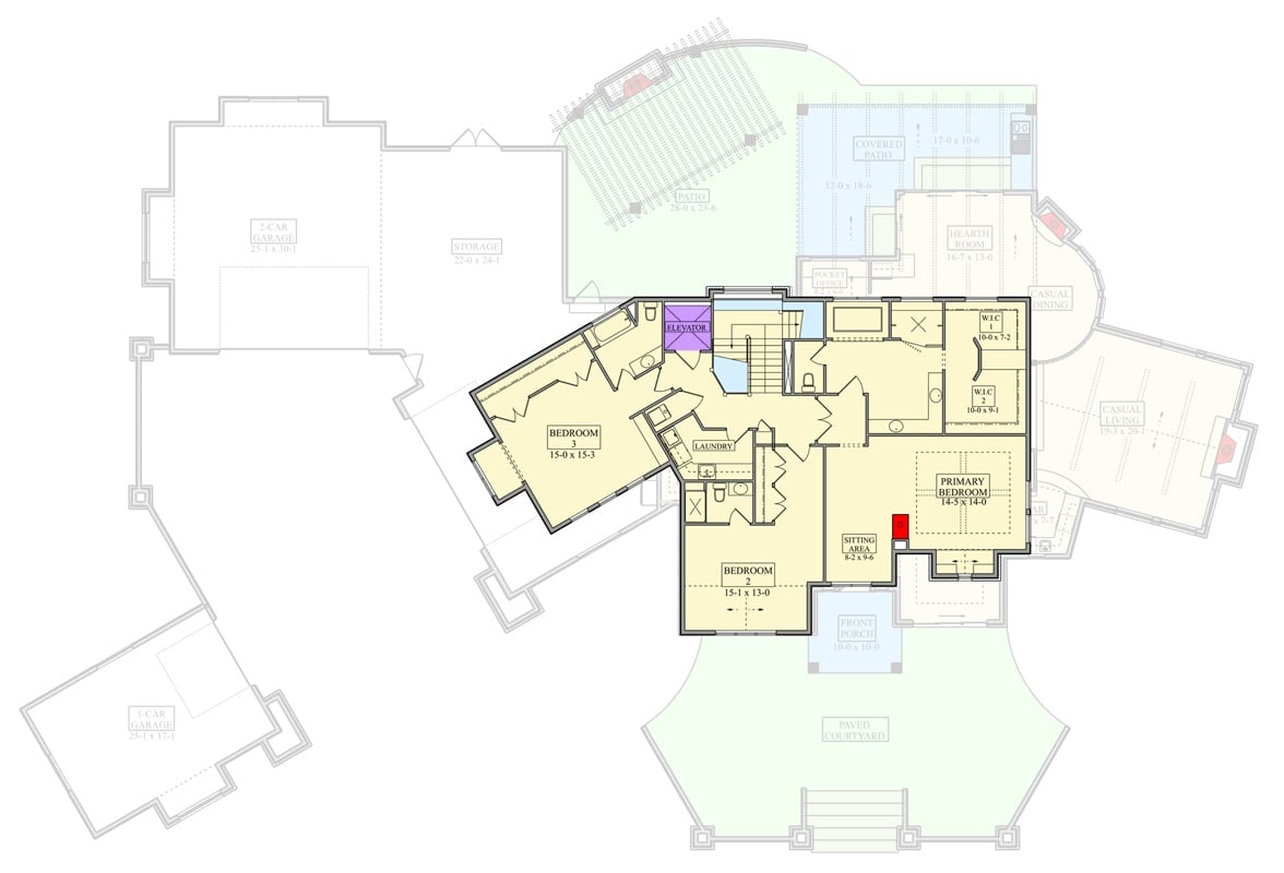
Second Level Floor Plan

๐ฅ Create Your Own Magical Home and Room Makeover
Upload a photo and generate before & after designs instantly.
ZERO designs skills needed. 61,700 happy users!
๐ Try the AI design tool here
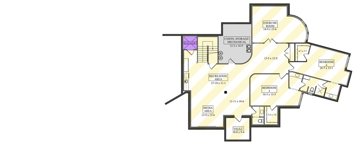
Lower Level Floor Plan

Open-Concept Living

Kitchen

Primary Bedroom

Would you like to save this?
Primary Bathroom

Details
This European-inspired home presents a refined, estate-style exterior with a balanced mix of stone and smooth stucco finishes. Multiple rooflines, arched details, and warm exterior lighting give the faรงade a grand yet inviting presence. A central entry is framed by symmetrical wings, while courtyards and covered patios extend the homeโs livability outdoors and enhance its sense of scale.
Inside, the main level is designed for both everyday comfort and entertaining. Formal and casual living spaces are clearly defined, with the kitchen positioned as a central hub connecting dining areas, a hearth room, and outdoor patios. Service spaces, including pantry areas, laundry, and mudroom, are thoughtfully tucked away to maintain a clean flow.
The primary bedroom suite is located on the main level and includes generous closet space and a private bath. On the upper level, two additional bedrooms share access to bathrooms and a sitting area.
The lower level expands the home further with two more bedrooms, along with recreation, media, and exercise spaces.
Pin It!

Architectural Designs Plan 95332RW
