
Would you like to save this?
Specifications
- Sq. Ft.: 4,267
- Bedrooms: 3-4
- Bathrooms: 4.5
- Stories: 2
- Garage: 3
Main Level Floor Plan

Second Level Floor Plan

๐ฅ Create Your Own Magical Home and Room Makeover
Upload a photo and generate before & after designs instantly.
ZERO designs skills needed. 61,700 happy users!
๐ Try the AI design tool here
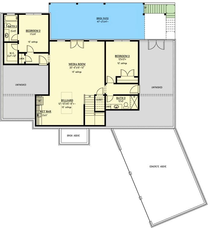
Lower Level Floor Plan

Front Entry

Great Room

Great Room

Would you like to save this?
Great Room

Kitchen

Pantry

Primary Bathroom

Primary Bathroom

Primary Closet

Mudroom

Mudroom

๐ฅ Create Your Own Magical Home and Room Makeover
Upload a photo and generate before & after designs instantly.
ZERO designs skills needed. 61,700 happy users!
๐ Try the AI design tool here
Mudroom

Porch

Rear View

Details
The exterior blends European farmhouse character with a clean, modern edge, featuring a mix of painted brick and vertical siding, steep rooflines, and a prominent arched entry that anchors the front elevation. A three-car garage is integrated into the design with matching materials and dark doors, keeping the overall look cohesive and substantial without feeling heavy.
The main level is organized around a central great room that connects seamlessly to the kitchen and dining area, creating a strong core for daily living and entertaining. The kitchen includes a large island, pantry storage, and direct access to a mudroom and laundry area that links to the garage.
The primary suite is positioned on the main level for privacy and includes a full bath and walk-in closet. A dedicated office sits near the front of the home, while a screened porch and adjacent deck extend the living space outward without interrupting the interior flow.
The second floor adds a private bedroom suite with its own sitting area and bathroom, making it well-suited for guests or extended stays. This level is set apart from the main living areas, offering privacy while maintaining a clear connection through the central stair.
The lower level is designed for recreation and flexible use, featuring a media room, billiards area with a wet bar, and additional bedrooms with nearby bathrooms. Unfinished spaces provide options for storage or future expansion, keeping utility areas separate from finished living space.
Pin It!

Architectural Designs Plan 24426TW
