
🔥 Would you like to save this?
Specifications
- Sq. Ft.: 3,961
- Bedrooms: 4
- Bathrooms: 3
- Stories: 2
- Garage: 3
Main Level Floor Plan

In order to come up with the very specific design ideas, we create most designs with the assistance of state-of-the-art AI interior design software. Also, assume links that take you off the site are affiliate links such as links to Amazon. this means we may earn a commission if you buy something.
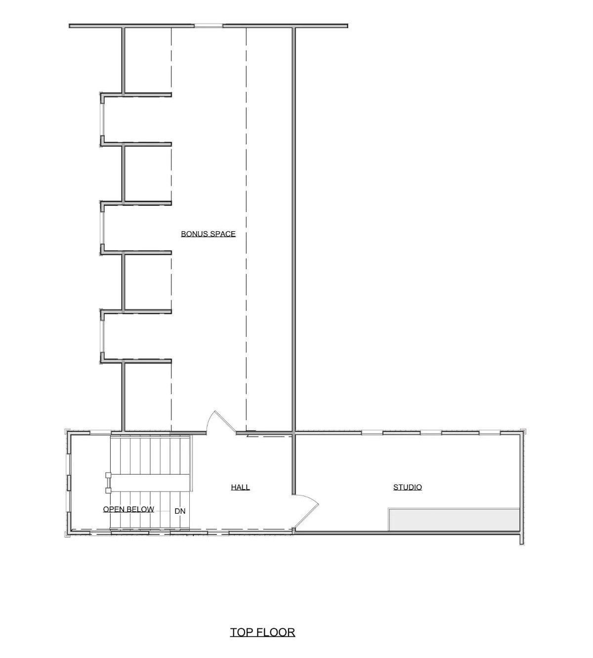
Second Level Floor Plan

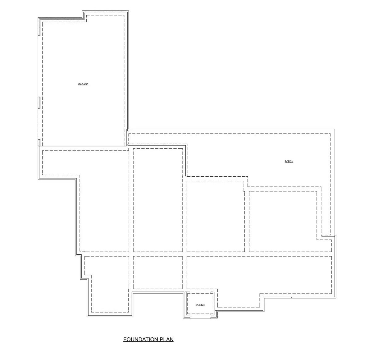
Lower Level Floor Plan
Front View

Rear-Right View

Rear View

Left View

Front-Left View

Front View

Great Room

Kitchen

Primary Bedroom

Primary Bathroom

Details
This European-inspired home features clean white exterior finishes, bold dark accents, and striking half-timber detailing for a distinctive modern look. The arched front entry adds character while keeping the design polished and welcoming.
Inside, the main floor is centered around an open great room that connects directly to the kitchen and oversized back porch for easy everyday living and entertaining. The kitchen includes a large island, a walk-in pantry, and generous built-in storage, with the dining area positioned nearby for smooth flow during meals and gatherings. A separate laundry and mudroom zone off the garage helps keep daily routines organized.
The primary suite is privately placed on the left side of the home and includes a spacious bedroom, a large bathroom, and a dedicated primary closet. On the opposite side, Bedrooms 2 and 3 are grouped with a shared bath layout, along with a guest room or flex room near an additional bath, creating a comfortable setup for visitors or extra living space.
Upstairs, the home offers a large bonus space that can be used as a game room, media area, or second living room. A separate studio adds even more flexibility for hobbies, creative work, or a private home office. The open-to-below design keeps the upper level connected to the main living space while maintaining a bright, open feel.
Pin It!
The House Designers Plan THD-11973
