
🔥 Would you like to save this?
Specifications
- Sq. Ft.: 3,078
- Bedrooms: 3
- Bathrooms: 3.5
- Stories: 1
- Garage: 3
[su_spacer]
In order to come up with the very specific design ideas, we create most designs with the assistance of state-of-the-art AI interior design software. Also, assume links that take you off the site are affiliate links such as links to Amazon. this means we may earn a commission if you buy something.
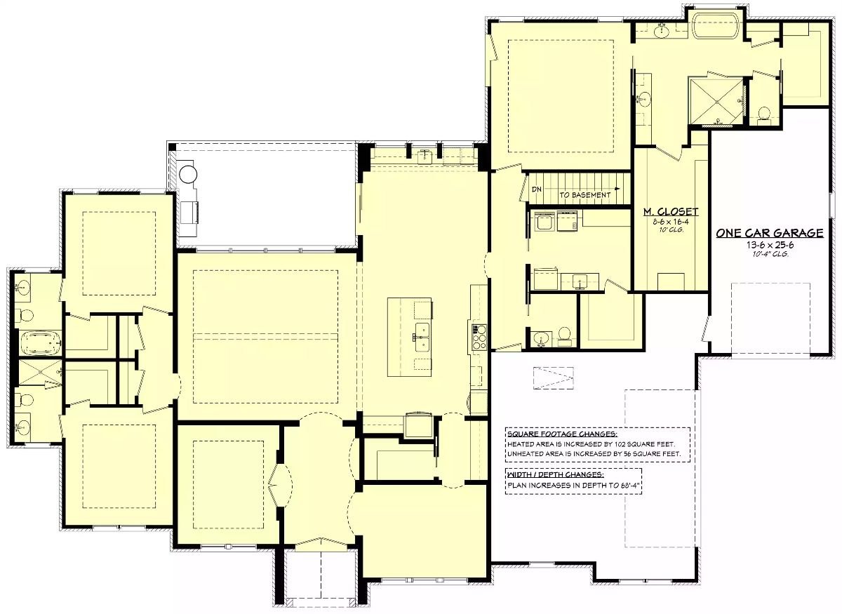
Main Level Floor Plan

Basement Stairs Location

[su_spacer]
Front View
Front Entry

Foyer

Great Room

Great Room

Great Room

Kitchen

Kitchen

Kitchen

Butler’s Pantry

Pantry

Dining Room
Dining Room

Keeping Room

Keeping Room

Primary Bedroom

Primary Closet

Primary Closet

Primary Bathroom

Primary Bathroom

Primary Bathroom

Bedroom

Bathroom
Bedroom

Outdoor Living Space

Pool

Rear View

[su_spacer]
Details
This home features a refined European-style exterior with a light stone finish, dark rooflines, and a dramatic arched entry that creates a strong first impression. Tall windows add a clean, modern touch while bringing in plenty of natural light.
Inside, the layout is built around a spacious great room with a vaulted ceiling and easy connection to the kitchen and keeping room. The kitchen includes a large island with seating, a walk-in pantry, and a butler’s pantry that adds extra storage and serving space for hosting. Nearby, the dining room is positioned close to the kitchen for smooth flow during meals and gatherings.
The rear porch sits just off the main living space, creating a natural extension for entertaining or relaxing outdoors. The keeping room adds a second living area that works well for casual seating, a game space, or a comfortable everyday retreat.
The primary suite is privately placed and includes a spacious bedroom, a large bathroom with a freestanding tub and walk-in shower, and two separate closets for added storage and convenience. The laundry room is close by, keeping daily routines easy and efficient.
Two additional bedrooms are grouped on the opposite side of the home with access to two full bathrooms, creating a comfortable setup for family or guests. A study or flex room near the front entry adds even more versatility for working from home, hobbies, or a quiet reading space.
Garage space is thoughtfully arranged with both a two-car garage and an additional one-car garage, giving extra room for storage, parking, or a workshop area. Multiple storage areas throughout the home help keep everything organized without taking away from the main living spaces.
Pin It!

The House Designers Plan THD-12064
