
🔥 Would you like to save this?
Specifications
- Sq. Ft.: 3,163
- Bedrooms: 4
- Bathrooms: 3.5
Floor Plan

In order to come up with the very specific design ideas, we create most designs with the assistance of state-of-the-art AI interior design software. Also, assume links that take you off the site are affiliate links such as links to Amazon. this means we may earn a commission if you buy something.
Open-concept layout connects kitchen, breakfast nook, and great room, with master suite split from three secondary bedrooms.
Floor Plan

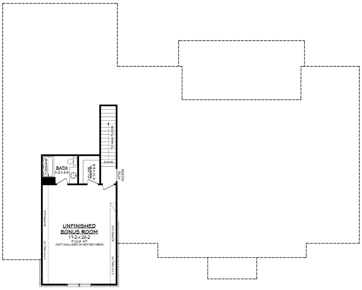
The upper level centers on an unfinished bonus room at 17×23 feet with a 9-foot ceiling. A full bath, closet, and staircase with attic access complete the finished portion.
Warm Wood, Brass Fixtures, and Garden Views Pull Three Rooms Into One
Brass chandelier, wood-beam accents, and brick archway connect dining, living, and sitting areas. Neutral linen sofas anchor the space beneath coffered ceilings with French doors beyond.
Why It Works: Dark wood posts and exposed beams do structural work while doubling as design anchors, giving the open layout a sense of weight and order. Brass hardware on the console cabinet ties the wall sconces and chandelier into a single metallic thread across all three zones.
Cream Sofas, Shiplap Surround, and a Fire That Does the Heavy Lifting

Cream upholstery, wood-plank floors, shiplap fireplace surround, and built-in shelving anchor this living room.
Ask Yourself: Layering seating around a fireplace pulls conversation toward a natural focal point rather than defaulting to the television. Consider whether your own arrangement lets both compete for attention, or if one clearly wins. Giving the fire visual priority often makes a room feel more intentional.
Shiplap Hood, Chevron Tile, and a Dark Island That Anchors the Kitchen

Painted cabinets in warm greige reach ceiling height, framing a shiplap range hood with walnut trim. Chevron backsplash tile adds pattern without noise. Four wood stools pull up to a fluted dark island topped with marble-look quartz.
- Mixing cabinet colors on the island and perimeter adds visual depth without requiring extra materials.
- Fluted panel details on island bases add texture where flat surfaces would feel plain.
- Pendant lights hung in a row over a long island reinforce the kitchen’s central axis.
Exposed Beams, Warm Oak Furniture, and a Floor Mirror That Earns Its Place

Dark ceiling beams contrast with white walls, while light oak furniture, neutral bedding, and an arch mirror anchor this bedroom.
By The Numbers: Recessed lighting paired with exposed beams is a common choice in farmhouse-style primary bedrooms, allowing ambient light without competing with the ceiling’s architectural character. Wood beam installation costs typically range from $1,500 to $5,000, depending on whether beams are solid or hollow box construction. Box beams applied over drywall are the more budget-conscious route and can be finished to match solid wood nearly indistinguishably.
Marble Walls, Globe Chandelier, and a Freestanding Tub Centered on Natural Light

White marble tile climbs the walls beside a soaking tub with matte black fixtures. Geometric floor tile grounds the space. Two vanities share cabinet space along opposite walls, each topped with veined stone.
Pin It

Exterior rendering shows a modern farmhouse with white brick and a metal roof. Below, the floor plan lays out four bedrooms, an open great room, a rear porch, and an attached garage across one level.
