
🔥 Would you like to save this?
Specifications
- Sq. Ft.: 2,233
- Bedrooms: 4
- Bathrooms: 3
Floor Plan

In order to come up with the very specific design ideas, we create most designs with the assistance of state-of-the-art AI interior design software. Also, assume links that take you off the site are affiliate links such as links to Amazon. this means we may earn a commission if you buy something.
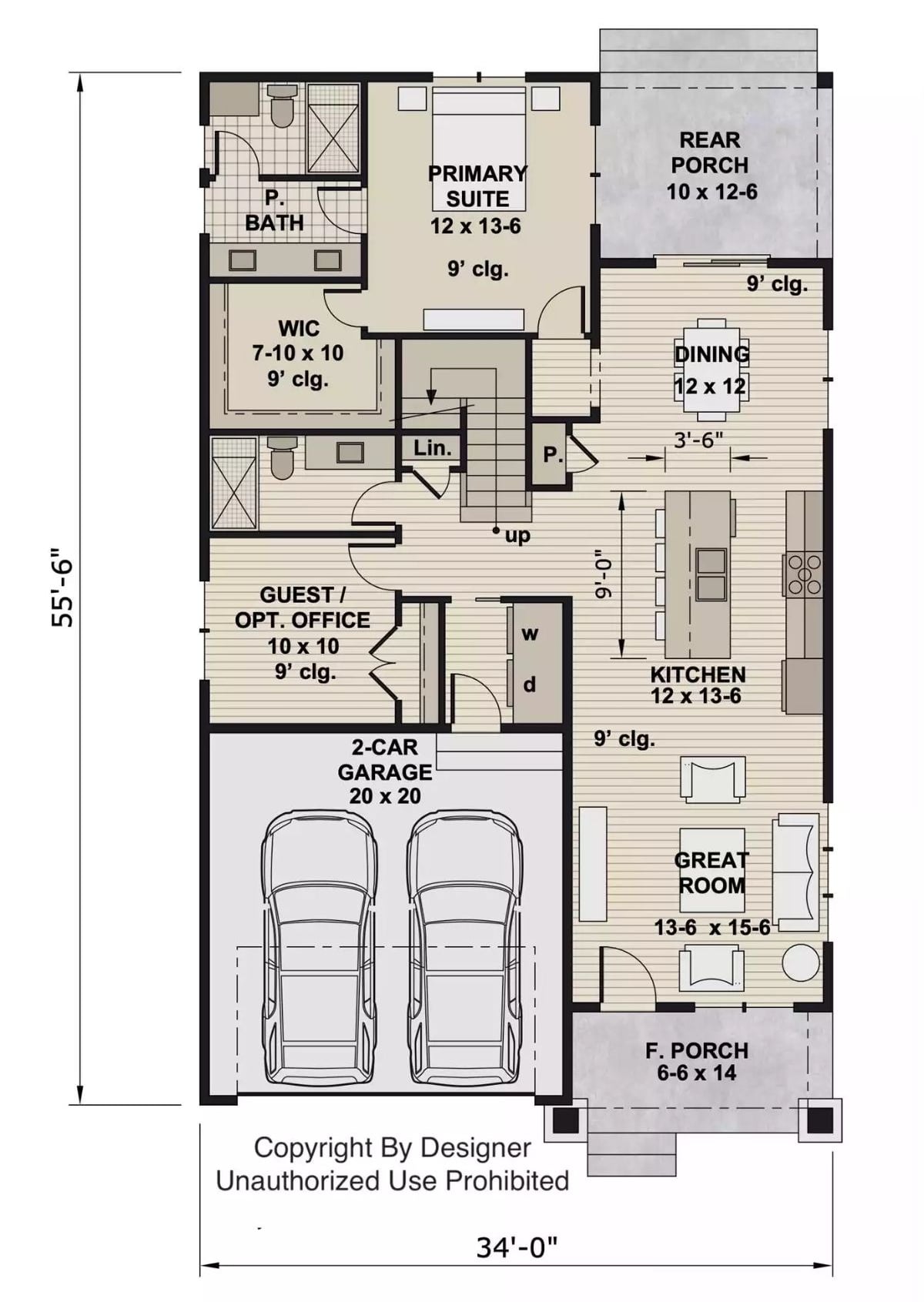
The main floor places the primary suite and guest office at the rear, with kitchen, dining, and great room along the right side. A 2-car garage and front porch anchor the front entry.
Floor Plan

Upper level shows loft, two bedrooms, Jack and Jill bath, and staircase access.
Gray Sofas and Dark Accents Define This Casual Living Room
Gray sofas, a black coffee table, a patterned rug, a wall-mounted TV, and a fiddle-leaf fig anchor this neutral living space.
White Cabinetry and Dark Pendants Set the Tone in This Open Kitchen

Quartz countertops wrap a long island lined with woven barstools. White shaker cabinets pair with subway tile above a stainless steel range hood. Three drum pendants in dark bronze hang overhead. Potted herbs sit on the island. Light hardwood floors connect the kitchen to a casual living area beyond.
Designer’s Secret: Hanging three pendants in a row over a kitchen island works best when each fixture sits roughly 30 to 36 inches above the countertop surface. Drum shades with a dark exterior and lighter interior bounce light downward while keeping the overall palette from feeling too bright. Pairing them with matte black cabinet hardware ties the upper and lower zones together without adding extra color.
Candlelight Chandelier and Dark Dining Set Anchor a Room With a View

Black wood chairs surround a dark rectangular table set with candles and greenery. Light hardwood floors, a geometric rug, and French doors opening to rolling fields complete the space.
Style Math: Pairing dark furniture against light walls and floors follows a contrast ratio that designers often call 60-30-10, where 60 percent of the room stays neutral, 30 percent shifts mid-tone, and 10 percent goes deep or bold. Here, the black dining set handles that final 10 percent. Keeping accessories like candles and a single plant simple lets the furniture do the work without crowding the palette.
Soft Blues and White Dresser Give This Master Bedroom a Calm, Collected Feel

Blue and white bedding layers over carpet beneath recessed lighting, while a white six-drawer dresser holds framed photos against slate walls.
A white six-drawer dresser holds framed photos against slate walls.
Dark Vanity Cabinets and Marble Counters Bring Contrast to a Double Sink Bath

Slate-toned shaker cabinets run the full length of this vanity. Chrome fixtures, wall sconces with white shades, and veined marble countertops complete two undermount sinks with room between them.
- Sconce placement beside each mirror keeps light at face level, reducing shadows
- Undermount sinks allow countertop cleaning without catching on rim edges
- Shaker cabinet doors work with both modern and traditional hardware styles
Dark Walls and Floating Shelves Give This Home Office a Focused, Refined Feel

Charcoal walls anchor three floating shelves styled with books, framed photos, and small decorative objects. A wood desk sits centered on a chevron rug. Leather seating and a floor lamp round out the functional, composed workspace beside a double-hung window.
Ask Yourself: Floating shelves work well in a home office when grouped in rows rather than scattered, since consistent alignment draws the eye across the wall without competing with the desk below. Consider reserving one shelf entirely for functional items like binders or storage boxes.
Loft Living Area Doubles as a Workspace With Room to Spare

Soft white carpet anchors light sofas and a matte black coffee table. Three framed prints line the wall. A desk and office chair occupy a corner near the staircase landing.
Budget Tip: Carpet in shared living spaces tends to cost less per square foot to install than hardwood, making it a practical choice for large upper-floor rooms like lofts. Looped or cut-pile styles in light neutral tones hide light foot traffic well while keeping the space feeling open.
Pin It

Exterior rendering shows a Craftsman cottage with wood garage doors, cedar shake siding, and a covered front porch. The floor plan below reveals a 34-by-55-foot layout with a primary suite, guest room, great room, kitchen with dining space, rear porch, and a 20-by-20 two-car garage with stair access above.
Fun Fact: Craftsman-style homes became widely popular in the early 1900s as a reaction against factory-produced Victorian ornament. Exposed rafter tails, tapered porch columns, and natural wood siding are hallmarks of the style. Today, builders still use these same details to signal handcraft quality in new construction.
